The Agency UK says ..
Are you a young family looking for a modern stylish home in the Harold Wood area? This might be just what you're looking for!
Property Oracle says ..
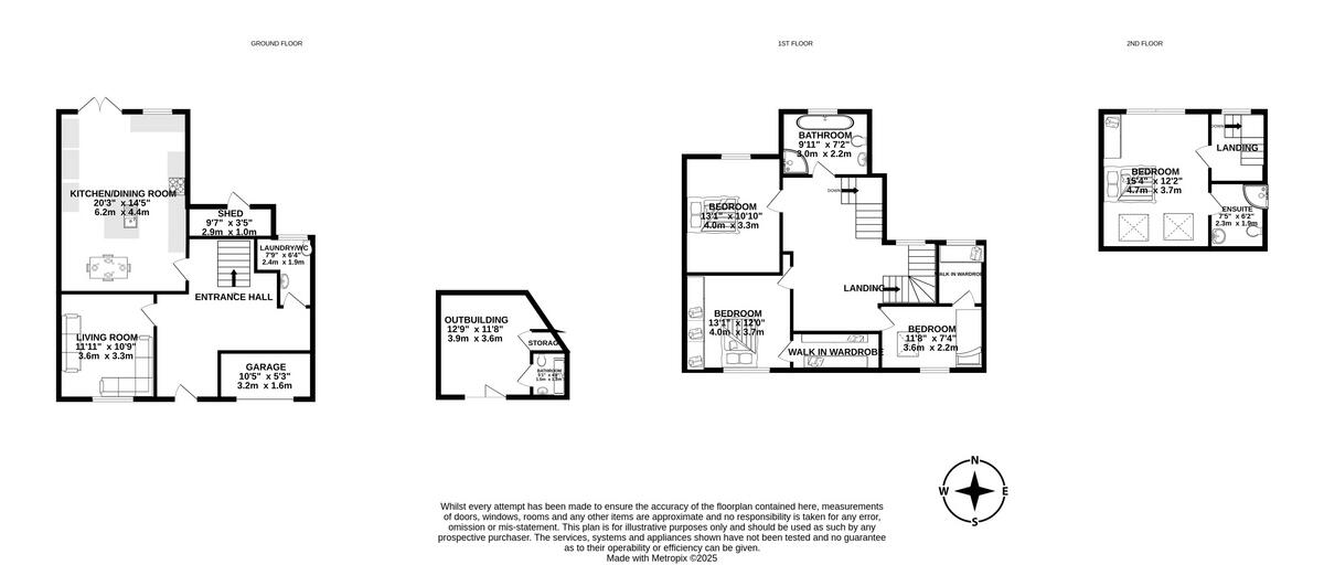
This is a well-presented four-bedroom semi-detached house on Church Road in Harold Wood, Romford. The property benefits from a modern interior, off-street parking, and a garden with a summer house. The house has been recently renovated and is in excellent condition. The property is located within a reasonable distance of local schools and transport links. The asking price is slightly above the average for the area, reflecting the property’s condition and features.
Therefore, we give this property 7 / 10. *Disclaimer: This is our option and does constitute a recommendation or financial advice. Do your own research. *
- Price
- 6
- Condition
- 9
- Location
- 7
- Land
- 7
- Bedrooms
- 4
- Bathrooms
- 2
- Sqft (est)
- 1,399.95
The heatmap indicates the level of crime in the area. The color of the heatmap indicates the crime severity and recency.
Metrics Year-on-Year
- Average area value
- 410,357.00 £Decreased by 11.24 %
- Est sale value
- 543,180.60 £Decreased by 18.49 %
- Average area rental value
- 1,833.00 £/moDecreased by 0.81 %
- Est letting value
- 1,399.95 £/moUnchanged by 0.00 %
- Est rental Yield
- 5.36 %Increased by 11.67 %
- Crime Rate
- 7.00 %Unchanged by 0.00 %
Agent Activity
The Agency UK created the listing.
Nearby Schools
| Name | Type | Ofsted | Distance |
|---|---|---|---|
| Harold Court Primary School | Community School | Good | 0.86 KM |
| Drapers' Academy | Academy Sponsor Led | Good | 1.39 KM |
| Drapers' Maylands Primary School | Free Schools | Good | 1.42 KM |
| Drapers' Pyrgo Priory School | Academy Converter | Good | 1.62 KM |
| Lime Academy Forest Approach | Academy Special Sponsor Led | Good | 1.66 KM |
Images
Nearby Streets
| Name | Average Price | Average Sqft | Distance |
|---|---|---|---|
| Willow Way | £ 525,000 | 0 | 0.00 KM |
| Sidhu Mews | £ 375,000 | 0 | 0.00 KM |
| Hardy Court | £ 0 | 0 | 0.00 KM |
| Retford Road | £ 462,500 | 0 | 0.00 KM |
| Russell Wlison Court | £ 0 | 0 | 0.00 KM |
Nearby Transport
| Name | NLC | TLC | Distance |
|---|---|---|---|
| Harold Wood | 6879 | HRO | 1.92 KM |
| Upminster | 7464 | UPM | 4.61 KM |
| Emerson Park | 7473 | EMP | 4.75 KM |
| Gidea Park | 6877 | GDP | 5.15 KM |
| Brentwood | 6872 | BRE | 5.82 KM |
Nearby Listings
| Address | Price | Type | Score | Distance |
|---|---|---|---|---|
| Church Road, Romford, RM3 | £ 750,000 | BUY | 7 / 10 | 0.00 KM |
| Harold Court House, Church Road, Romford, Essex, RM3 | £ 700,000 | BUY | 5 / 10 | 0.03 KM |
| Church Road, Romford, RM3 | £ 775,000 | BUY | 7 / 10 | 0.04 KM |
| Church Road, Harold Wood, RM3 | £ 600,000 | BUY | 7 / 10 | 0.06 KM |
| Homeway, Romford, RM3 | £ 850,000 | BUY | 6 / 10 | 0.11 KM |
Nearby Properties
| Address | Price | Distance |
|---|---|---|
| 52 Harold Court Road | £ 175,000 | 0.06 KM |
| 50 Harold Court Road | £ 445,000 | 0.07 KM |
| 44 Harold Court Road | £ 465,000 | 0.07 KM |
| 35 Harold Court Road | £ 265,000 | 0.07 KM |
| 12 Church Road | £ 405,000 | 0.11 KM |