Beaconsfield Road, Slough
By Langhams Estate Agents
£ 430,000
Reviews
3 out of 5 stars
Langhams Estate Agents says ..
“Reserve a property at this development by 26th April 2024 and we'll pay your Stamp Duty (up to £5,000) help towards your legal fees (up to £2,000), estate agent fees (up to £10,000) and moving fees.”Over 60's Retirement Living at its best! Located in The Broadway area of Farnha...
Property Oracle says ..
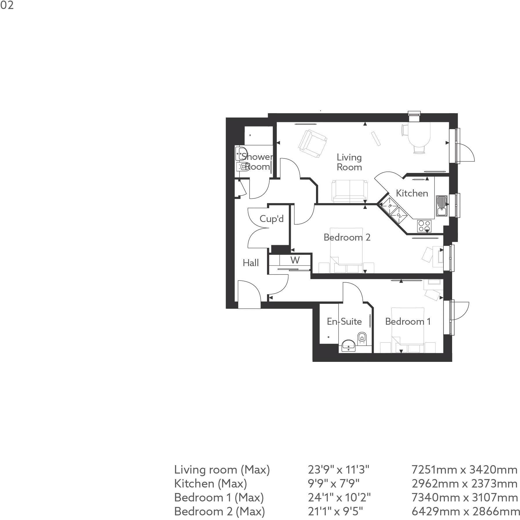
This property is a two-bedroom, two-bathroom retirement property situated in Beaconsfield Road, Slough, within the desirable Farnham Common and Burnham Beeches area of Buckinghamshire. The property is part of a modern development, as evidenced by the high-quality interior and exterior finishes displayed in the photos. The interior presents a modern, well-maintained space with a contemporary design. The photos showcase a well-equipped kitchen, comfortable living area, and tastefully decorated bedrooms, each with access to private patio space. The property also benefits from access to communal gardens, offering additional outdoor space for residents. Transport links are within a reasonable distance to the area including several train stations offering connections to various parts of the country. Several primary schools with good Ofsted ratings are nearby, making it a potentially attractive option for those valuing proximity to good schools. While the photos highlight a high standard of finish and a desirable lifestyle, potential buyers should take into account the smaller plot size relative to comparable properties in the area. The lack of specific square footage data for nearby properties slightly complicates a direct price comparison, but the property seems to be situated within the expected price range for the area, although the price may be at the upper end. Buyers should independently confirm the accuracy of the price per square foot figure and verify the property’s dimensions against the details available.
Therefore, we give this property 6 / 10. *Disclaimer: This is our option and does constitute a recommendation or financial advice. Do your own research. *
- Price
- 7
- Condition
- 9
- Location
- 7
- Land
- 4
- Bedrooms
- 2
- Bathrooms
- 2
- Sqft (est)
- 827.74
The heatmap indicates the level of crime in the area. The color of the heatmap indicates the crime severity and recency.
Metrics Year-on-Year
- Average area value
- 1,040,385.00 £Decreased by 1.22 %
- Est sale value
- 582,728.96 £Increased by 7.15 %
- Average area rental value
- 2,075.00 £/moDecreased by 10.13 %
- Est letting value
- 827.74 £/moUnchanged by 0.00 %
- Est rental Yield
- 2.39 %Decreased by 9.13 %
- Crime Rate
- 39.00 %Unchanged by 0.00 %
Agent Activity
Langhams Estate Agents created the listing.
Nearby Schools
| Name | Type | Ofsted | Distance |
|---|---|---|---|
| Caldicott School | Other Independent School | 0.80 KM | |
| Farnham Common Infant School | Community School | Good | 0.82 KM |
| Farnham Common Junior School | Community School | Good | 0.91 KM |
| Dair House School | Other Independent School | 1.12 KM | |
| St Mary'S Farnham Royal Cofe Primary School | Voluntary Aided School | Good | 1.98 KM |
Images
Nearby Streets
| Name | Average Price | Average Sqft | Distance |
|---|---|---|---|
| Elm Close | £ 1,225,000 | 0 | 0.00 KM |
| Parsonage Lane | £ 995,000 | 0 | 0.00 KM |
| Hamilton Way | £ 0 | 0 | 0.00 KM |
| Purton Court | £ 421,667 | 0 | 0.00 KM |
| Bracken Close | £ 0 | 0 | 0.00 KM |
Nearby Transport
| Name | NLC | TLC | Distance |
|---|---|---|---|
| Burnham | 3176 | BNM | 4.87 KM |
| Slough | 3172 | SLO | 5.30 KM |
| Seer Green | 3061 | SRG | 6.30 KM |
| Beaconsfield | 3047 | BCF | 7.19 KM |
| Windsor And Eton Riverside | 5672 | WNR | 7.62 KM |
Nearby Listings
| Address | Price | Type | Score | Distance |
|---|---|---|---|---|
| Beaconsfield Road, Slough, Farnham Common | £ 380,000 | BUY | 6 / 10 | 0.00 KM |
| Beaconsfield Road Farnham Common SL2 3FQ | £ 295,000 | BUY | 6 / 10 | 0.00 KM |
| Beaconsfield Road, Slough | £ 430,000 | BUY | 6 / 10 | 0.00 KM |
| Beaconsfield Road, Farnham Common, SL2 3FQ | £ 420,000 | BUY | 6 / 10 | 0.04 KM |
| Forge Drive, Farnham Common, Buckinghamshire, SL2 | £ 475,000 | BUY | 6 / 10 | 0.06 KM |
Nearby Properties
| Address | Price | Distance |
|---|---|---|
| 12 Forge Drive | £ 250,000 | 0.04 KM |
| 3 Forge Drive | £ 245,500 | 0.04 KM |
| 24 Forge Drive | £ 335,000 | 0.04 KM |
| 10 Forge Drive | £ 425,000 | 0.04 KM |
| 20 Forge Drive | £ 425,000 | 0.04 KM |