Land To Rear Of, 42-46 Milnthorpe Road, Kendal, Cumbria
By H&H Land & Estates
£ 150,000
H&H Land & Estates says ..
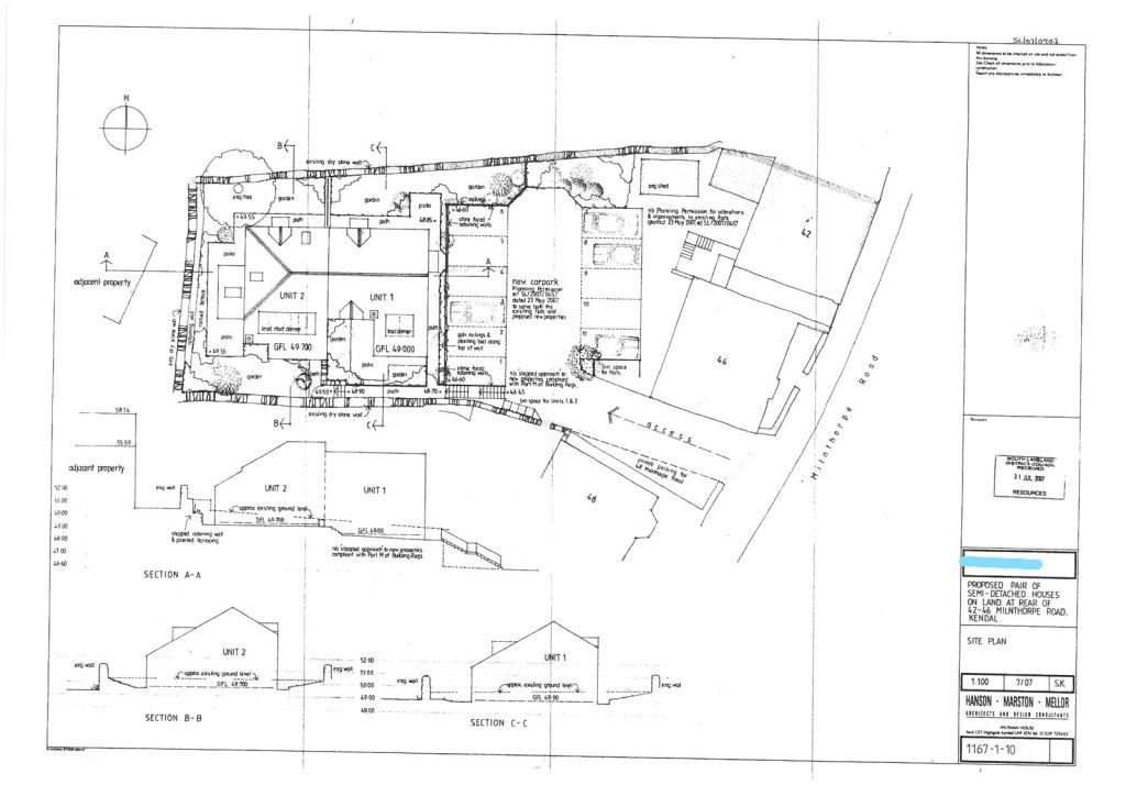
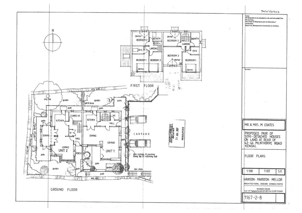
A rare opportunity to purchase a fantastic development site within easy walking distance to Kendal Town Centre, with planning permission for two semi detached three bedroomed houses with local occupancy conditions attached. The land should prove of interest to a builder, developer or speculator. <br /><br /><br /> <b>Directions</b><br />On entering Kendal from the A6 into Kendal, through the traffic lights and continue past the College. The site is approximately 50 yards past the turning to Glebe Road on the left hand side, and will be easily identified by the sale board.<br /><br /><b>Location</b><br />Located in a popular residential area to the South side of Kendal. The property is located just a few minutes walk from Abbot Hall Park, the many amenities available in the town centre and offers easy access to the mainline railway station at Oxenholme, the Lake District National Park and road links to the M6.<br /><br /><b>Outside</b><br />Access and parking<br />A right of access to the building site will be provided across the vendors retained land opening onto Milnthorpe Road, as shaded red on the sale plan. The vendor will also provide an additional right for vehicular parking over their retained ground, if required and subject to contract.<br /><br /><b>Services</b><br />Planning permission (Planning Application No: SL/2007/0903) was granted on 6th October 2007 and a material start was made to the development in 2010. On 6th October 2010 South Lakeland District Council confirmed that the material start had commenced in writing. A copy of this letter can be provided on request.<br /><br />The planning consent is subject to local occupancy and other conditions.<br /><br />The "material start" means that development commenced before the expiration of the initial three years from the date of the planning consent originally being granted.<br /><br />Local Occupancy Condition - <br /><br />The dwelling houses will have a local occupancy clause which states the following -<br />Occupation of the property is limited to those who have lived in the area for the last three years, are moving to work and live in the area, or who currently work in the area. The property cannot be used as a second home or holiday letting accommodation. <br /><br />The 'area' is defined as the administrative areas of the District (SLDC), Barrow in Furness Burough Council, Shap Parish Council, Shap Rural Parish Council, Orton and Tebay Parish Council, Lancaster City Council excluding the parishes of Overton, Cockerham, Thurnham, Ellel and Over Wyresdale.<br /><br />Sale Plan <br />The sale plan has been prepared by the Selling Agent for the convenient of the prospective purchasers. it is deemed to be correct but any error, omission or mis-statement shall not affect the sale. Purchasers must satisfy themselves as to accuracy.<br /><br />
- Bedrooms
- 0
- Bathrooms
- 0
The heatmap indicates the level of crime in the area. The color of the heatmap indicates the crime severity and recency.
Metrics Year-on-Year
- Average area value
- 603,889.00 £Increased by 40.02 %
- Average area rental value
- 1,340.00 £/moIncreased by 1.44 %
- Est rental Yield
- 2.66 %Decreased by 27.72 %
- Crime Rate
- 16.00 %Unchanged by 0.00 %
Agent Activity
H&H Land & Estates created the listing.
Nearby Schools
| Name | Type | Ofsted | Distance |
|---|---|---|---|
| Kendal College | Further Education | Good | 0.27 KM |
| Kirkbie Kendal School | Academy Converter | Good | 0.51 KM |
| Dean Gibson Catholic Primary School, Kendal | Academy Converter | 0.68 KM | |
| Vicarage Park Cofe Primary School | Voluntary Controlled School | Good | 0.74 KM |
| South Lakes Academy | Other Independent Special School | Good | 0.81 KM |
Images
Nearby Streets
| Name | Average Price | Average Sqft | Distance |
|---|---|---|---|
| Riverside Place | £ 0 | 0 | 0.00 KM |
| Nether Street | £ 0 | 0 | 0.00 KM |
| Wilson Street | £ 225,000 | 0 | 0.00 KM |
| Cross Lane | £ 220,000 | 0 | 0.00 KM |
| Howard Street | £ 275,000 | 0 | 0.00 KM |
Nearby Transport
| Name | NLC | TLC | Distance |
|---|---|---|---|
| Kendal | 1976 | KEN | 1.52 KM |
| Oxenholme Lake District | 2090 | OXN | 3.06 KM |
| Burneside (Cumbria) | 1975 | BUD | 4.59 KM |
Nearby Listings
| Address | Price | Type | Score | Distance |
|---|---|---|---|---|
| Land To Rear Of, 42-46 Milnthorpe Road, Kendal, Cumbria | £ 150,000 | BUY | Unknown | 0.00 KM |
| Milnthorpe Road, Kendal, LA9 | £ 205,000 | BUY | 6 / 10 | 0.04 KM |
| 2 South Road, Kendal | £ 400,000 | BUY | 6 / 10 | 0.07 KM |
| West Street, Kendal, LA9 | £ 300,000 | BUY | 7 / 10 | 0.09 KM |
| Milnthorpe Road, Kendal, LA9 5AS | £ 160,000 | BUY | 6 / 10 | 0.10 KM |
Nearby Properties
| Address | Price | Distance |
|---|---|---|
| 40 Milnthorpe Road | £ 141,100 | 0.01 KM |
| 52 Milnthorpe Road | £ 60,000 | 0.01 KM |
| 34 Milnthorpe Road | £ 95,000 | 0.01 KM |
| 3 Milnthorpe Road | £ 161,000 | 0.08 KM |
| 1 Milnthorpe Road | £ 133,500 | 0.08 KM |