Mulberry Close, Beaufort Street SW3
By Aylesford International
£ 798,000
Reviews
2 out of 5 stars
Aylesford International says ..
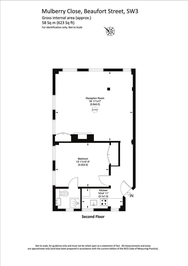
A very well-arranged, spacious, and bright one bedroom flat at the rear of a purpose built apartment block close to the river Thames, with a peaceful green aspect over local gardens.
Property Oracle says ..
This one-bedroom flat in Mulberry Close, Chelsea Riverside, presents a mixed bag of attributes. The location is a significant strength, offering access to the Thames, green spaces, and highly-rated schools. The interior appears well-maintained, but lacks high-end finishes or significant features to command a premium price. A notable weakness is the complete absence of private outdoor space, which is a common desirable feature for properties in this price range, particularly in London. The asking price of £798,000 requires further analysis to ascertain the value proposition. While the price may be competitive considering other listings in the area, the limited information provided about the average price per square foot in the immediate vicinity hinders accurate assessment. Overall, it’s a functional and reasonably presented property in an excellent location; however, the lack of outdoor space and the need for further detailed comparative market data prevents a higher overall assessment.
Therefore, we give this property 5 / 10. *Disclaimer: This is our option and does constitute a recommendation or financial advice. Do your own research. *
- Price
- 7
- Condition
- 6
- Location
- 7
- Land
- 1
- Bedrooms
- 1
- Bathrooms
- 1
- Sqft (est)
- 623.00
The heatmap indicates the level of crime in the area. The color of the heatmap indicates the crime severity and recency.
Metrics Year-on-Year
- Average area value
- 1,261,667.00 £Decreased by 38.96 %
- Est sale value
- 1,054,739.00 £Increased by 38.32 %
- Average area rental value
- 2,446.00 £/moDecreased by 13.51 %
- Est letting value
- 1,869.00 £/moIncreased by 200.00 %
- Est rental Yield
- 2.33 %Increased by 42.07 %
- Crime Rate
- 6.00 %Unchanged by 0.00 %
Agent Activity
Aylesford International created the listing.
Nearby Schools
| Name | Type | Ofsted | Distance |
|---|---|---|---|
| Cameron Vale School | Other Independent School | 0.17 KM | |
| Park Walk Primary School | Community School | Good | 0.35 KM |
| The Hampshire School Chelsea | Other Independent School | 0.41 KM | |
| Chelsea Open Air Nursery School & Children'S Centre | Children's Centre | 0.53 KM | |
| Ashburnham Community School | Community School | Outstanding | 0.55 KM |
Images
Nearby Streets
| Name | Average Price | Average Sqft | Distance |
|---|---|---|---|
| Paultons Square | £ 4,950,000 | 0 | 0.00 KM |
| Dovehouse Street | £ 0 | 0 | 0.00 KM |
| Edith Yard | £ 580,000 | 0 | 0.00 KM |
| Milborne Grove | £ 0 | 0 | 0.00 KM |
| Netherton Grove | £ 0 | 0 | 0.00 KM |
Nearby Transport
| Name | NLC | TLC | Distance |
|---|---|---|---|
| Imperial Wharf | 9586 | IMW | 1.35 KM |
| Clapham Junction | 5595 | CLJ | 2.27 KM |
| West Brompton | 8875 | WBP | 2.33 KM |
| Wandsworth Town | 5576 | WNT | 2.96 KM |
| Battersea Park | 5420 | BAK | 3.12 KM |
Nearby Listings
| Address | Price | Type | Score | Distance |
|---|---|---|---|---|
| Mulberry Close, Beaufort Street SW3 | £ 798,000 | BUY | 5 / 10 | 0.00 KM |
| Beaufort House, 38 Beaufort Street, London, SW3 | £ 1,350,000 | BUY | 6 / 10 | 0.04 KM |
| Beaufort House, Beaufort Street, Chelsea, London | £ 1,695,000 | BUY | Unknown | 0.04 KM |
| Beaufort Street, London | £ 1,400,000 | BUY | 8 / 10 | 0.04 KM |
| Kings Road, Chelsea, London, SW3 | £ 650,000 | BUY | 6 / 10 | 0.06 KM |
Nearby Properties
| Address | Price | Distance |
|---|---|---|
| 15 Paultons Square | £ 4,250,000 | 0.07 KM |
| 20 Paultons Square | £ 5,200,000 | 0.07 KM |
| 1a Paultons Square | £ 1,160,000 | 0.07 KM |
| 7 Paultons Square | £ 1,840,000 | 0.07 KM |
| 21 Paultons Square | £ 6,400,001 | 0.07 KM |