MA
Clive Road, Aldershot, Hampshire, GU12
By Mackenzie Smith
£ 365,000
Reviews
3 out of 5 stars
Mackenzie Smith says ..
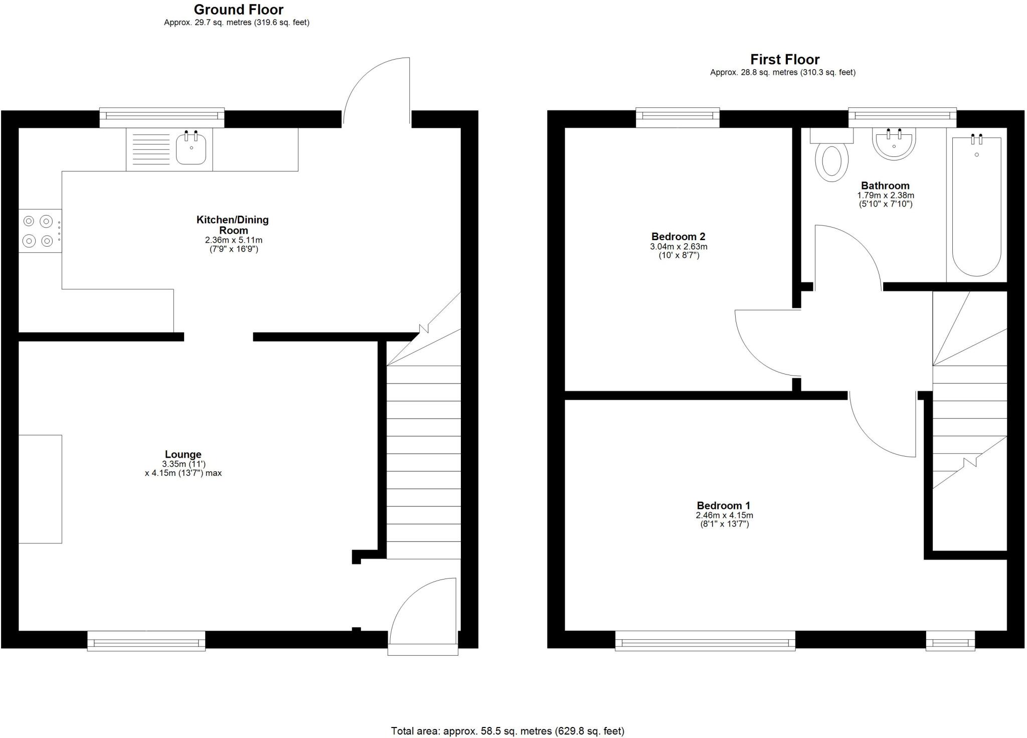
This end-terrace family home features a welcoming entrance hall and two good-sized double bedrooms, offering practical and spacious living areas throughout.
Property Oracle says ..
Therefore, we give this property 7 / 10. *Disclaimer: This is our option and does constitute a recommendation or financial advice. Do your own research. *
- Price
- 6
- Condition
- 8
- Location
- 7
- Land
- 7
- Bedrooms
- 2
- Bathrooms
- 0
- Sqft (est)
- 629.69
The heatmap indicates the level of crime in the area. The color of the heatmap indicates the crime severity and recency.
Metrics Year-on-Year
- Average area value
- 336,995.00 £Increased by 12.55 %
- Est sale value
- 286,508.95 £Increased by 43.53 %
- Average area rental value
- 1,032.00 £/moDecreased by 12.32 %
- Est letting value
- 629.69 £/moUnchanged by 0.00 %
- Est rental Yield
- 3.67 %Decreased by 22.25 %
- Crime Rate
- 7.00 %Unchanged by 0.00 %
from 299,429.00 £
from 199,611.73 £
from 1,177.00 £/mo
from 629.69 £/mo
from 4.72 %
from 7.00 %
Agent Activity
Mackenzie Smith created the listing.
Nearby Schools
| Name | Type | Ofsted | Distance |
|---|---|---|---|
| Maple Vue Children'S Centre | Children's Centre | 0.43 KM | |
| Alderwood School | Community School | Good | 0.45 KM |
| St Michael'S Church Of England Controlled Junior School | Voluntary Controlled School | Requires improvement | 1.03 KM |
| Park Primary School | Community School | Good | 1.19 KM |
| St Michael'S Church Of England Controlled Infant School | Voluntary Controlled School | Outstanding | 1.29 KM |
Images
Nearby Streets
| Name | Average Price | Average Sqft | Distance |
|---|---|---|---|
| Needhams Place | £ 0 | 0 | 0.00 KM |
| St Marys Close | £ 0 | 0 | 0.00 KM |
| Hop Kiln Villas | £ 0 | 0 | 0.00 KM |
| Mount Pleasant Road | £ 315,000 | 0 | 0.00 KM |
| Newport Road | £ 307,778 | 0 | 0.00 KM |
Nearby Transport
| Name | NLC | TLC | Distance |
|---|---|---|---|
| Aldershot | 5623 | AHT | 1.47 KM |
| Ash | 5641 | ASH | 3.77 KM |
| North Camp | 5636 | NCM | 3.80 KM |
| Ash Vale | 5547 | AHV | 4.07 KM |
| Farnborough (Main) | 5521 | FNB | 5.80 KM |
Nearby Listings
| Address | Price | Type | Score | Distance |
|---|---|---|---|---|
| Clive Road, Aldershot, Hampshire, GU12 | £ 365,000 | BUY | 7 / 10 | 0.00 KM |
| Clive Road, Aldershot, Hampshire, GU12 | £ 435,000 | BUY | 7 / 10 | 0.02 KM |
| Holly Road, Aldershot, Hampshire, GU12 | £ 415,000 | BUY | 6 / 10 | 0.14 KM |
| Roberts Road, Aldershot, Hampshire, GU12 | £ 300,000 | BUY | 6 / 10 | 0.14 KM |
| Roberts Road, Aldershot, Hampshire | £ 375,000 | BUY | 6 / 10 | 0.16 KM |
Nearby Properties
| Address | Price | Distance |
|---|---|---|
| 9 Clive Road | £ 222,000 | 0.02 KM |
| 4 Clive Road | £ 355,000 | 0.02 KM |
| 12 Clive Road | £ 290,000 | 0.02 KM |
| 3 Clive Road | £ 336,500 | 0.02 KM |
| 7 Clive Road | £ 66,000 | 0.03 KM |