Henshaws Estate Agents says ..
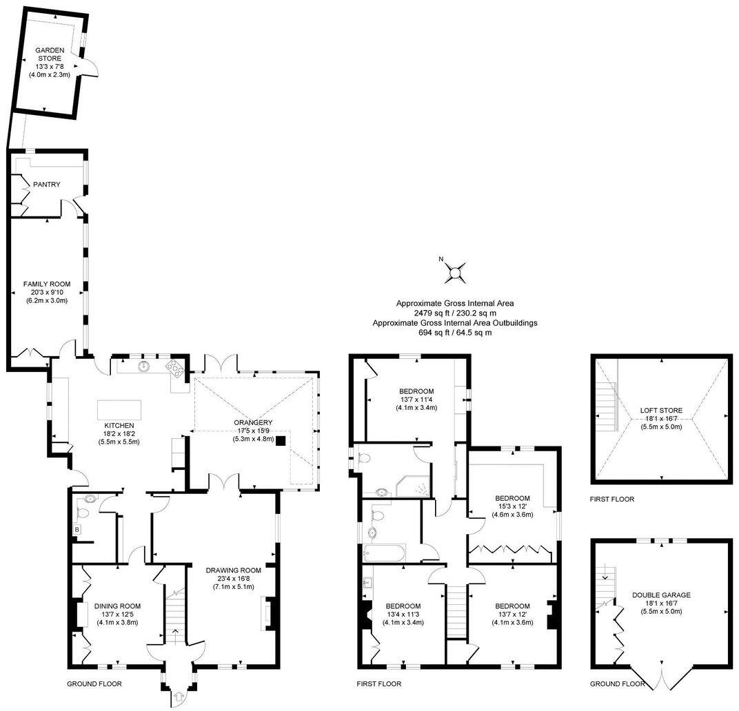
Coming to the market for the first time in 45 years this sublime double fronted period house offers superb family accommodation following sympathetic extensions and refurbishment.The house is set well back from the road down a short drive then through an arched beech hedge to a symmetrical gravel...
Property Oracle says ..
Therefore, we give this property 8 / 10. *Disclaimer: This is our option and does constitute a recommendation or financial advice. Do your own research. *
- Price
- 7
- Condition
- 8
- Location
- 9
- Land
- 9
- Bedrooms
- 4
- Bathrooms
- 2
- Sqft (est)
- 2,685.38
The heatmap indicates the level of crime in the area. The color of the heatmap indicates the crime severity and recency.
Metrics Year-on-Year
- Average area value
- 1,206,061.00 £Decreased by 2.53 %
- Est sale value
- 2,470,549.60 £Increased by 91.67 %
- Average area rental value
- 2,978.00 £/moDecreased by 21.32 %
- Est letting value
- 5,370.76 £/moIncreased by 100.00 %
- Est rental Yield
- 2.96 %Decreased by 19.35 %
- Crime Rate
- 28.00 %Unchanged by 0.00 %
from 1,237,332.00 £
from 1,288,982.40 £
from 3,785.00 £/mo
from 2,685.38 £/mo
from 3.67 %
from 28.00 %
Agent Activity
Henshaws Estate Agents created the listing.
Nearby Schools
| Name | Type | Ofsted | Distance |
|---|---|---|---|
| Cranmore School | Other Independent School | 0.85 KM | |
| The Raleigh School | Academy Converter | Outstanding | 1.68 KM |
| Glenesk School | Other Independent School | 2.25 KM | |
| Ripley Court School | Other Independent School | 5.13 KM | |
| Shere Cofe Aided Infant School | Voluntary Aided School | Good | 5.50 KM |
Images
Nearby Streets
| Name | Average Price | Average Sqft | Distance |
|---|---|---|---|
| Fulkes Cottage | £ 0 | 0 | 0.00 KM |
| Mount Pleasant | £ 665,000 | 0 | 0.00 KM |
| Meadows Reach | £ 762,500 | 0 | 0.00 KM |
| Allingham Meadow | £ 995,000 | 0 | 0.00 KM |
| Walnut Tree Gardens | £ 0 | 0 | 0.00 KM |
Nearby Transport
| Name | NLC | TLC | Distance |
|---|---|---|---|
| Horsley | 5562 | HSY | 2.41 KM |
| Effingham Junction | 5642 | EFF | 4.57 KM |
| Clandon | 5555 | CLA | 5.36 KM |
| Gomshall | 5298 | GOM | 5.70 KM |
| Bookham | 5626 | BKA | 8.10 KM |
Nearby Listings
| Address | Price | Type | Score | Distance |
|---|---|---|---|---|
| West Horsley | £ 1,595,000 | BUY | 8 / 10 | 0.00 KM |
| Off The Street, West Horsley | £ 875,000 | BUY | 7 / 10 | 0.07 KM |
| Off The Street, West Horsley | £ 800,000 | BUY | 7 / 10 | 0.07 KM |
| Off The Street, West Horsley | £ 1,275,000 | BUY | 7 / 10 | 0.07 KM |
| The Street, West Horsley | £ 800,000 | BUY | 7 / 10 | 0.08 KM |
Nearby Properties
| Address | Price | Distance |
|---|---|---|
| 145 The Street | £ 581,000 | 0.12 KM |
| 139 The Street | £ 250,000 | 0.12 KM |
| 129 The Street | £ 885,000 | 0.12 KM |
| 127 The Street | £ 670,000 | 0.12 KM |
| 135 The Street | £ 250,000 | 0.12 KM |