Connaught Road, Brookwood, Woking, Surrey, GU24
By Seymours Estate Agents
£ 349,950
Reviews
3 out of 5 stars
Seymours Estate Agents says ..
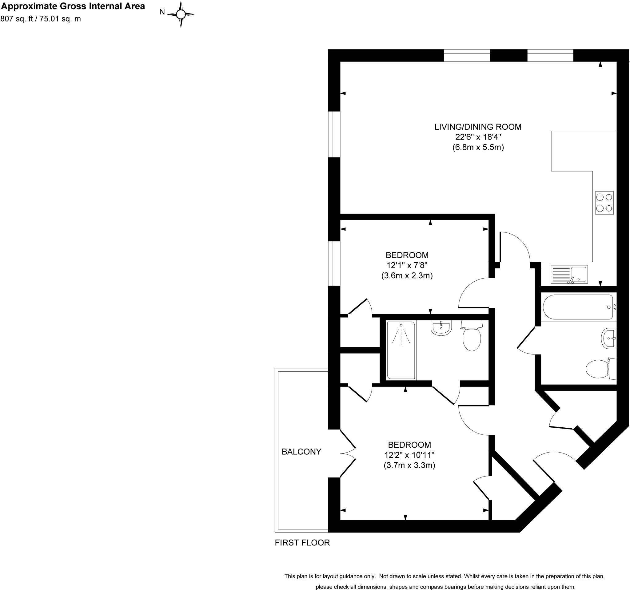
This first floor apartment is offered to the market in excellent condition and is ideally located for those who commute, as Brookwood Mainline Station is a short walk away and offers easy access to London Waterloo. The apartment is one of the larger on the development and offers accommodatio...
Property Oracle says ..
The property is a 2-bedroom, 2-bathroom flat located on Connaught Road in Brookwood, Woking, Surrey. It’s a modern flat with 807.40 sqft of living space and benefits from a balcony. The flat appears to be in excellent condition, with a modern kitchen and bathrooms. The décor is contemporary and neutral. The location is good, with Brookwood train station being nearby, providing convenient access to London and other parts of the UK. There are also several schools within a reasonable distance, including Brookwood Primary School which is rated ‘Good’ by Ofsted. The proximity to Brookwood station is a significant advantage, making the property attractive to commuters. The lack of plot size suggests that there is no garden. Considering the average price per sqft in the area is £581, and this property is listed at £349,950, the price seems reasonable, especially given its modern condition and convenient location. The average house price in the area is significantly higher (£1,203,835), suggesting that this flat offers good value for money compared to other properties in the area. Nearby comparable properties support this assessment, with similar flats selling for around £325,000.
Therefore, we give this property 6 / 10. *Disclaimer: This is our option and does constitute a recommendation or financial advice. Do your own research. *
- Price
- 8
- Condition
- 9
- Location
- 8
- Land
- 1
- Bedrooms
- 2
- Bathrooms
- 2
- Sqft (est)
- 807.40
The heatmap indicates the level of crime in the area. The color of the heatmap indicates the crime severity and recency.
Metrics Year-on-Year
- Average area value
- 1,790,000.00 £Increased by 94.05 %
- Est sale value
- 294,701.00 £Increased by 26.30 %
- Average area rental value
- 2,186.00 £/moDecreased by 33.31 %
- Est letting value
- 0.00 £/moDecreased by 100.00 %
- Est rental Yield
- 1.47 %Decreased by 65.49 %
- Crime Rate
- 31.00 %Unchanged by 0.00 %
Agent Activity
Seymours Estate Agents created the listing.
Nearby Schools
| Name | Type | Ofsted | Distance |
|---|---|---|---|
| Brookwood & Pirbright Sure Start Children'S Centre | Children's Centre | 0.45 KM | |
| Brookwood Primary School | Academy Sponsor Led | Good | 0.62 KM |
| Knowl Hill School | Other Independent Special School | Good | 1.29 KM |
| Pirbright Village Primary School | Academy Converter | 1.43 KM | |
| The Knaphill Lower School | Academy Converter | 1.81 KM |
Images
Nearby Streets
| Name | Average Price | Average Sqft | Distance |
|---|---|---|---|
| Riverside Close | £ 895,000 | 0 | 0.00 KM |
| St John's Court | £ 0 | 0 | 0.00 KM |
| Bakersgate | £ 0 | 0 | 0.00 KM |
| Guernsey Way | £ 0 | 0 | 0.00 KM |
| Gloucester Close | £ 735,000 | 0 | 0.00 KM |
Nearby Transport
| Name | NLC | TLC | Distance |
|---|---|---|---|
| Brookwood | 5687 | BKO | 0.21 KM |
| Worplesdon | 5686 | WPL | 6.31 KM |
| Wanborough | 5639 | WAN | 7.48 KM |
| Bagshot | 5681 | BAG | 8.73 KM |
| Woking | 5685 | WOK | 9.03 KM |
Nearby Listings
| Address | Price | Type | Score | Distance |
|---|---|---|---|---|
| Connaught Road, Brookwood, Woking, Surrey, GU24 | £ 315,000 | BUY | 6 / 10 | 0.00 KM |
| Connaught Road, Brookwood, Woking, Surrey, GU24 | £ 349,950 | BUY | 6 / 10 | 0.00 KM |
| Brookwood | £ 400,000 | BUY | 5 / 10 | 0.01 KM |
| Connaught Place, 126 Connaught Road, Woking, Surrey, GU24 | £ 325,000 | BUY | 6 / 10 | 0.03 KM |
| Connaught Place, Connaught Road, Brookwood, GU24 | £ 339,950 | BUY | 6 / 10 | 0.04 KM |
Nearby Properties
| Address | Price | Distance |
|---|---|---|
| 130 Connaught Road | £ 185,000 | 0.01 KM |
| 110b Connaught Road | £ 240,000 | 0.06 KM |
| 110a Connaught Road | £ 192,500 | 0.06 KM |
| 110c Connaught Road | £ 380,000 | 0.07 KM |
| 8 Sheets Heath Lane | £ 240,000 | 0.09 KM |