Frailey Hill, Woking, Surrey, GU22
By Seymours Estate Agents
£ 425,000
Reviews
3 out of 5 stars
Seymours Estate Agents says ..
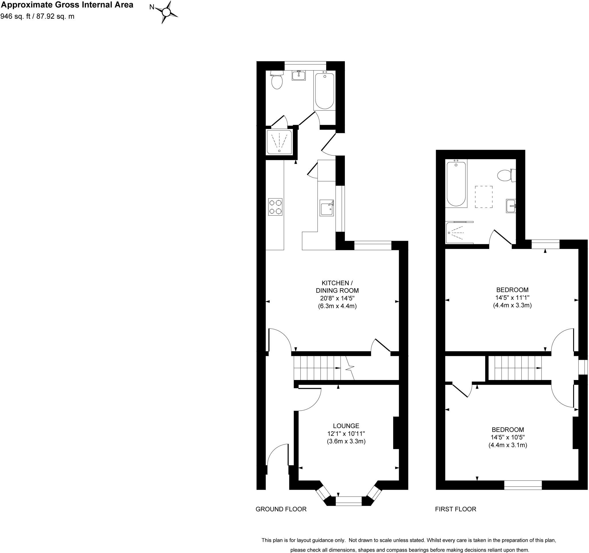
Immaculately presented here with this stunning period semi-detached house boasting two bedrooms, two reception rooms, and two bathrooms including an en-suite to the main room. This immaculately presented is ideal for a first-time buyer and has been finished to an excellent standard, making it a t...
Property Oracle says ..
This property is a 2 bedroom, 2 bathroom semi-detached house located in Pyrford, Woking. The property has recently undergone a full refurbishment resulting in a modern interior. The location is convenient with nearby schools and transportation links. The property benefits from a rear garden. While the list price is below the average for the area, the smaller size of the property and land compared to the average should be considered.
Therefore, we give this property 7 / 10. *Disclaimer: This is our option and does constitute a recommendation or financial advice. Do your own research. *
- Price
- 7
- Condition
- 9
- Location
- 8
- Land
- 6
- Bedrooms
- 2
- Bathrooms
- 2
- Sqft (est)
- 726.67
- Lot (est)
- 946.00
The heatmap indicates the level of crime in the area. The color of the heatmap indicates the crime severity and recency.
Metrics Year-on-Year
- Average area value
- 892,500.00 £Increased by 16.14 %
- Est sale value
- 316,101.45 £Decreased by 43.36 %
- Average area rental value
- 2,580.00 £/moDecreased by 9.03 %
- Est letting value
- 726.67 £/moDecreased by 50.00 %
- Est rental Yield
- 3.47 %Decreased by 21.67 %
- Crime Rate
- 24.00 %Unchanged by 0.00 %
Agent Activity
Seymours Estate Agents created the listing.
Nearby Schools
| Name | Type | Ofsted | Distance |
|---|---|---|---|
| New Monument Primary Academy | Academy Converter | Good | 0.56 KM |
| Greenfield School | Other Independent School | 0.73 KM | |
| St Dunstan'S Catholic Primary School, Woking | Voluntary Aided School | Outstanding | 1.01 KM |
| The Park School | Academy Special Sponsor Led | 1.30 KM | |
| Maybury Primary School | Academy Converter | 1.38 KM |
Images
Nearby Streets
| Name | Average Price | Average Sqft | Distance |
|---|---|---|---|
| Oak Lane | £ 600,000 | 0 | 0.00 KM |
| Kent Road | £ 0 | 0 | 0.00 KM |
| Hidcote Close | £ 0 | 0 | 0.00 KM |
| Monument Mews | £ 0 | 0 | 0.00 KM |
| Littlemoor Gardens | £ 0 | 0 | 0.00 KM |
Nearby Transport
| Name | NLC | TLC | Distance |
|---|---|---|---|
| Woking | 5685 | WOK | 2.05 KM |
| West Byfleet | 5684 | WBY | 4.12 KM |
| Worplesdon | 5686 | WPL | 6.14 KM |
| Byfleet And New Haw | 5689 | BFN | 7.03 KM |
| Clandon | 5555 | CLA | 7.71 KM |
Nearby Listings
| Address | Price | Type | Score | Distance |
|---|---|---|---|---|
| Frailey Hill, Woking, Surrey, GU22 | £ 425,000 | BUY | 7 / 10 | 0.00 KM |
| Frailey Hill, Woking, Surrey, GU22 | £ 425,000 | BUY | 7 / 10 | 0.00 KM |
| Frailey Hill, Woking | £ 450,000 | BUY | 7 / 10 | 0.03 KM |
| College Road, Woking, Surrey, GU22 | £ 230,000 | BUY | Unknown | 0.09 KM |
| Princess Gardens, Woking | £ 550,000 | BUY | Unknown | 0.11 KM |
Nearby Properties
| Address | Price | Distance |
|---|---|---|
| 51 Frailey Hill | £ 136,500 | 0.00 KM |
| 12 Frailey Hill | £ 219,000 | 0.00 KM |
| 35 Frailey Hill | £ 257,250 | 0.00 KM |
| 11 Frailey Hill | £ 229,950 | 0.00 KM |
| 19 Frailey Hill | £ 440,000 | 0.00 KM |