Commercial Street, Morley
By JM Catley
£ 144,950
JM Catley says ..
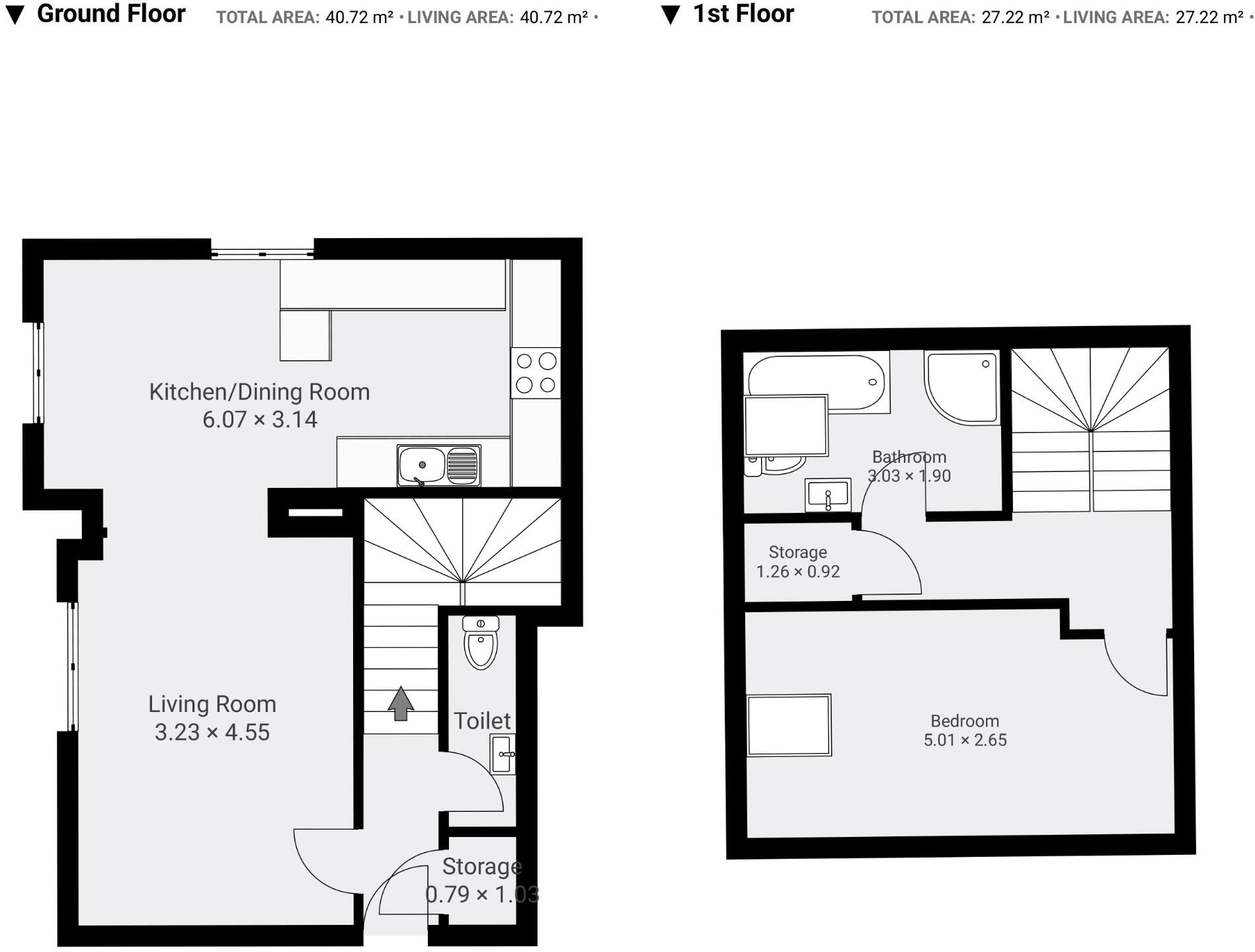
A stunning duplex apartment bursting with original features.
- Bedrooms
- 1
- Bathrooms
- 1
- Sqft (est)
- 589.65
The heatmap indicates the level of crime in the area. The color of the heatmap indicates the crime severity and recency.
Metrics Year-on-Year
- Average area value
- 244,722.00 £Increased by 16.59 %
- Est sale value
- 169,229.55 £Increased by 8.71 %
- Average area rental value
- 958.00 £/moIncreased by 6.33 %
- Est letting value
- 589.65 £/moUnchanged by 0.00 %
- Est rental Yield
- 4.70 %Decreased by 8.74 %
- Crime Rate
- 32.00 %Unchanged by 0.00 %
from 209,901.00 £
from 155,667.60 £
from 901.00 £/mo
from 589.65 £/mo
from 5.15 %
from 32.00 %
Agent Activity
JM Catley created the listing.
Nearby Schools
| Name | Type | Ofsted | Distance |
|---|---|---|---|
| Morley North Children'S Centre | Children's Centre | 0.25 KM | |
| Queenswood School | Other Independent School | Good | 0.29 KM |
| Morley South Children'S Centre | Children's Centre | 0.42 KM | |
| Seven Hills Primary School | Community School | Good | 0.50 KM |
| The Morley Academy | Academy Converter | Outstanding | 0.89 KM |
Images
Nearby Streets
| Name | Average Price | Average Sqft | Distance |
|---|---|---|---|
| Merlyn Rees Avenue | £ 0 | 0 | 0.00 KM |
| Windsor Court | £ 0 | 0 | 0.00 KM |
| Siegen Close | £ 0 | 0 | 0.00 KM |
| Chapel Hill | £ 0 | 0 | 0.00 KM |
| Bank Street | £ 185,000 | 0 | 0.00 KM |
Nearby Transport
| Name | NLC | TLC | Distance |
|---|---|---|---|
| Morley | 8504 | MLY | 1.07 KM |
| Cottingley | 8505 | COT | 2.75 KM |
| Batley | 8484 | BTL | 4.78 KM |
| Dewsbury | 8326 | DEW | 7.06 KM |
| Burley Park | 8500 | BUY | 7.71 KM |
Nearby Listings
| Address | Price | Type | Score | Distance |
|---|---|---|---|---|
| Commercial Street, Morley | £ 144,950 | BUY | Unknown | 0.00 KM |
| Commercial Street, Morley | £ 139,950 | BUY | 6 / 10 | 0.00 KM |
| Commercial Street, Morley, Leeds | £ 135,000 | BUY | 5 / 10 | 0.00 KM |
| Commercial Street, Morley | £ 134,950 | BUY | Unknown | 0.01 KM |
| Flat 2, Commercial Street, Morley, Leeds, West Yorkshire | £ 125,000 | BUY | 6 / 10 | 0.02 KM |
Nearby Properties
| Address | Price | Distance |
|---|---|---|
| 21 Albion Street | £ 160,000 | 0.00 KM |
| 23 Albion Street | £ 144,000 | 0.00 KM |
| 18 Marshall Street | £ 81,000 | 0.05 KM |
| 4 Marshall Street | £ 65,000 | 0.11 KM |
| 11 Hardy Court | £ 133,000 | 0.14 KM |