Maggs & Allen says ..
A two double-bedroom Victorian home located in a quiet cul-de-sac directly opposite Eastville Park. This property boasts generous proportions, two distinct reception rooms, and a sizeable rear garden. Furthermore, it is offered to the market with no onward chain.
Property Oracle says ..
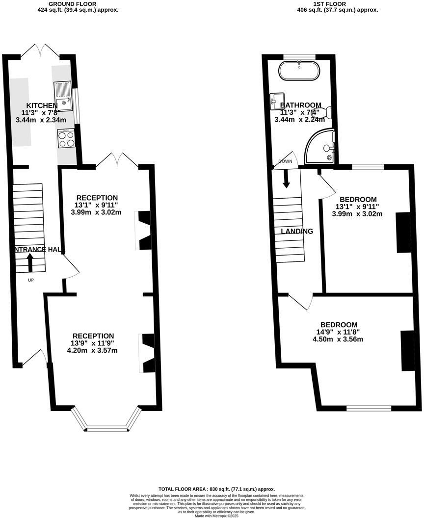
This is a two-bedroom terraced house in Eastville, Bristol. The property offers a blend of traditional features and modern updates, particularly in the kitchen and bathroom. While the interior is generally in good order, some rooms could benefit from redecoration to enhance their appeal. The garden, while present, requires some landscaping to maximize its potential. The location is convenient, with access to schools and transportation. The asking price of £350,000 seems fair given the property’s size, location, and condition, aligning with the local market trends.
Therefore, we give this property 6 / 10. *Disclaimer: This is our option and does constitute a recommendation or financial advice. Do your own research. *
- Price
- 7
- Condition
- 7
- Location
- 7
- Land
- 6
- Bedrooms
- 2
- Bathrooms
- 1
- Sqft (est)
- 829.90
The heatmap indicates the level of crime in the area. The color of the heatmap indicates the crime severity and recency.
Metrics Year-on-Year
- Average area value
- 347,495.00 £Increased by 4.36 %
- Est sale value
- 366,815.80 £Increased by 12.18 %
- Average area rental value
- 1,189.00 £/moDecreased by 23.64 %
- Est letting value
- 829.90 £/moUnchanged by 0.00 %
- Est rental Yield
- 4.11 %Decreased by 26.74 %
- Crime Rate
- 11.00 %Unchanged by 0.00 %
Agent Activity
Maggs & Allen created the listing.
Nearby Schools
| Name | Type | Ofsted | Distance |
|---|---|---|---|
| May Park Primary School | Academy Sponsor Led | 0.52 KM | |
| Colston'S School | Other Independent School | 0.85 KM | |
| Whitehall Primary School | Community School | Outstanding | 0.97 KM |
| The Limes Nursery School | Local Authority Nursery School | Good | 1.01 KM |
| The Limes Nursery School & Children'S Centre | Children's Centre | 1.05 KM |
Images
Nearby Streets
| Name | Average Price | Average Sqft | Distance |
|---|---|---|---|
| Coombe Road | £ 0 | 0 | 0.00 KM |
| Park Avenue | £ 330,000 | 0 | 0.00 KM |
| Shaw Road | £ 430,000 | 0 | 0.00 KM |
| Broma Place | £ 0 | 0 | 0.00 KM |
| Gordon Road | £ 0 | 0 | 0.00 KM |
Nearby Transport
| Name | NLC | TLC | Distance |
|---|---|---|---|
| Stapleton Road | 3250 | SRD | 1.58 KM |
| Lawrence Hill | 3225 | LWH | 2.10 KM |
| Filton Abbey Wood | 3235 | FIT | 3.68 KM |
| Montpelier | 3203 | MTP | 3.97 KM |
| Bristol Temple Meads | 3231 | BRI | 4.11 KM |
Nearby Listings
| Address | Price | Type | Score | Distance |
|---|---|---|---|---|
| Gloster Avenue | Eastville | £ 350,000 | BUY | 6 / 10 | 0.00 KM |
| Gloster Avenue, Bristol | £ 325,000 | BUY | 5 / 10 | 0.02 KM |
| Herbert Crescent, Bristol, BS5 6QB, GB | £ 275,000 | BUY | 5 / 10 | 0.05 KM |
| Fishponds Road, Eastville, Bristol | £ 350,000 | BUY | 5 / 10 | 0.05 KM |
| Fishponds Road, Eastville, Bristol | £ 175,000 | BUY | Unknown | 0.06 KM |
Nearby Properties
| Address | Price | Distance |
|---|---|---|
| 12 Gloster Avenue | £ 206,000 | 0.02 KM |
| 13 Gloster Avenue | £ 124,500 | 0.02 KM |
| 9 Gloster Avenue | £ 200,000 | 0.02 KM |
| 3 Gloster Avenue | £ 139,000 | 0.02 KM |
| 10 Gloster Avenue | £ 267,000 | 0.02 KM |