13 Hartwell Road, Roade, NN7
By Howkins & Harrison LLP
£ 275,000
Reviews
3 out of 5 stars
Howkins & Harrison LLP says ..
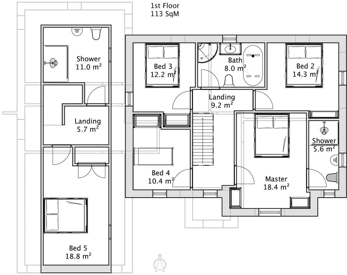
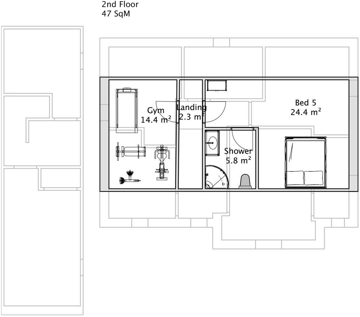
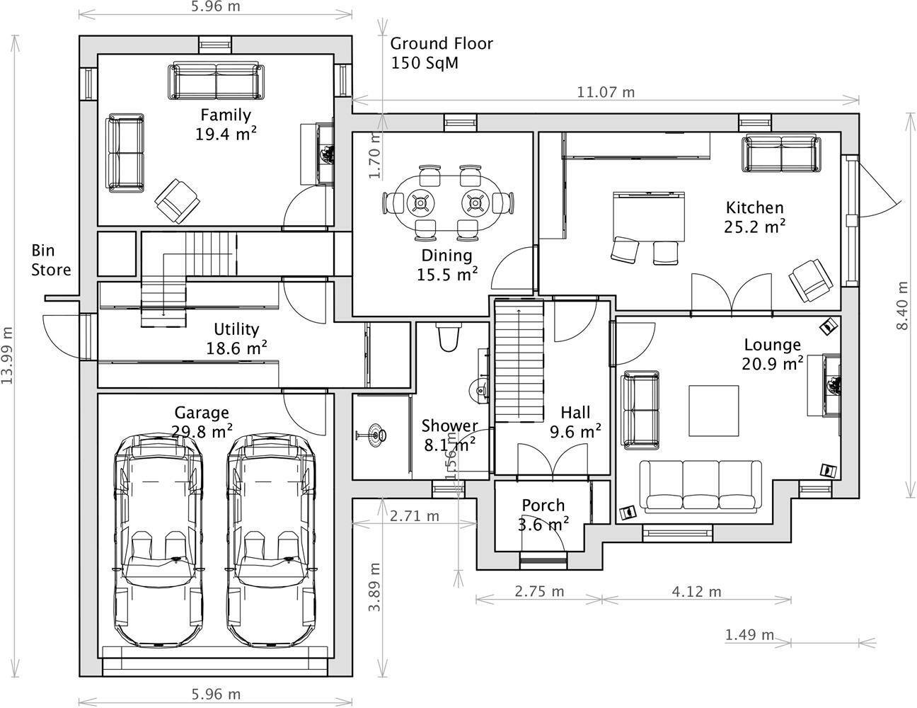
A rare opportunity to acquire one of a pair of building plots to construct a substantial, bespoke, family home with full planning permission, granted by West Northants Council on 4th July 2024 under reference 2024/1544/FULL. Plot 2 being 310 sq mts / 3,336 sq ft. The plot is accessible, level, we...
Property Oracle says ..
This listing presents a building plot with approved plans for a substantial, bespoke family home in Roade, Northamptonshire. The location offers a balance between village life and accessibility to the larger town of Northampton. Roade Primary School, rated ‘Good’ by Ofsted, is conveniently located nearby, making it an attractive option for families. The approved plans depict a well-designed property with a notable plot size, offering ample space for the house and potential garden. While there is no existing structure, the architectural renderings suggest a high-quality build, once completed. The listed price seems consistent with the overall market trends in the area for new builds, although a detailed comparison with construction costs and comparable new homes in the area would be beneficial for a fully informed decision. The property’s overall desirability hinges on its location in the established village of Roade, its size and potential design; while the lack of any actual structure necessitates a reliance on projected quality and costs.
Therefore, we give this property 7 / 10. *Disclaimer: This is our option and does constitute a recommendation or financial advice. Do your own research. *
- Price
- 7
- Condition
- 8
- Location
- 7
- Land
- 6
- Bedrooms
- 0
- Bathrooms
- 0
- Sqft (est)
- 1,614.59
The heatmap indicates the level of crime in the area. The color of the heatmap indicates the crime severity and recency.
Metrics Year-on-Year
- Average area value
- 367,306.00 £Decreased by 14.19 %
- Est sale value
- 941,305.97 £Increased by 53.83 %
- Average area rental value
- 1,200.00 £/moIncreased by 1.95 %
- Est letting value
- 1,614.59 £/moUnchanged by 0.00 %
- Est rental Yield
- 3.92 %Increased by 18.79 %
- Crime Rate
- 7.00 %Unchanged by 0.00 %
Agent Activity
Howkins & Harrison LLP created the listing.
Nearby Schools
| Name | Type | Ofsted | Distance |
|---|---|---|---|
| Roade Primary School | Community School | Good | 0.07 KM |
| Roade Library And Children'S Centre | Children's Centre | 0.39 KM | |
| Ashton Cofe Primary School | Voluntary Controlled School | Good | 1.91 KM |
| Stoke Bruerne Church Of England Primary School | Voluntary Controlled School | Good | 3.32 KM |
| Woodland View Primary School | Academy Converter | 3.56 KM |
Images
Nearby Streets
| Name | Average Price | Average Sqft | Distance |
|---|---|---|---|
| Manor Close | £ 425,000 | 0 | 0.00 KM |
| The Close | £ 270,000 | 0 | 0.00 KM |
| Orchard Way | £ 285,000 | 0 | 0.00 KM |
| Quarry Way | £ 440,000 | 0 | 0.00 KM |
| Swan Lane | £ 127,500 | 0 | 0.00 KM |
Nearby Transport
| Name | NLC | TLC | Distance |
|---|---|---|---|
| Northampton | 1069 | NMP | 8.99 KM |
Nearby Listings
| Address | Price | Type | Score | Distance |
|---|---|---|---|---|
| 13 Hartwell Road, Roade, NN7 | £ 275,000 | BUY | 7 / 10 | 0.00 KM |
| Manor Close, Roade, NN7 | £ 425,000 | BUY | 6 / 10 | 0.16 KM |
| The Leys, Roade, Northampton | £ 250,000 | BUY | 5 / 10 | 0.31 KM |
| The Gravel, Roade, Northampton | £ 545,000 | BUY | 7 / 10 | 0.31 KM |
| The Leys, Roade, Northamptonshire NN7 | £ 290,000 | BUY | 7 / 10 | 0.31 KM |
Nearby Properties
| Address | Price | Distance |
|---|---|---|
| 7 Hartwell Road | £ 415,000 | 0.06 KM |
| 9 Hartwell Road | £ 307,500 | 0.06 KM |
| 16 Hartwell Road | £ 134,950 | 0.06 KM |
| 14 Hartwell Road | £ 337,000 | 0.07 KM |
| 1 South View | £ 375,000 | 0.08 KM |