eXp UK says ..
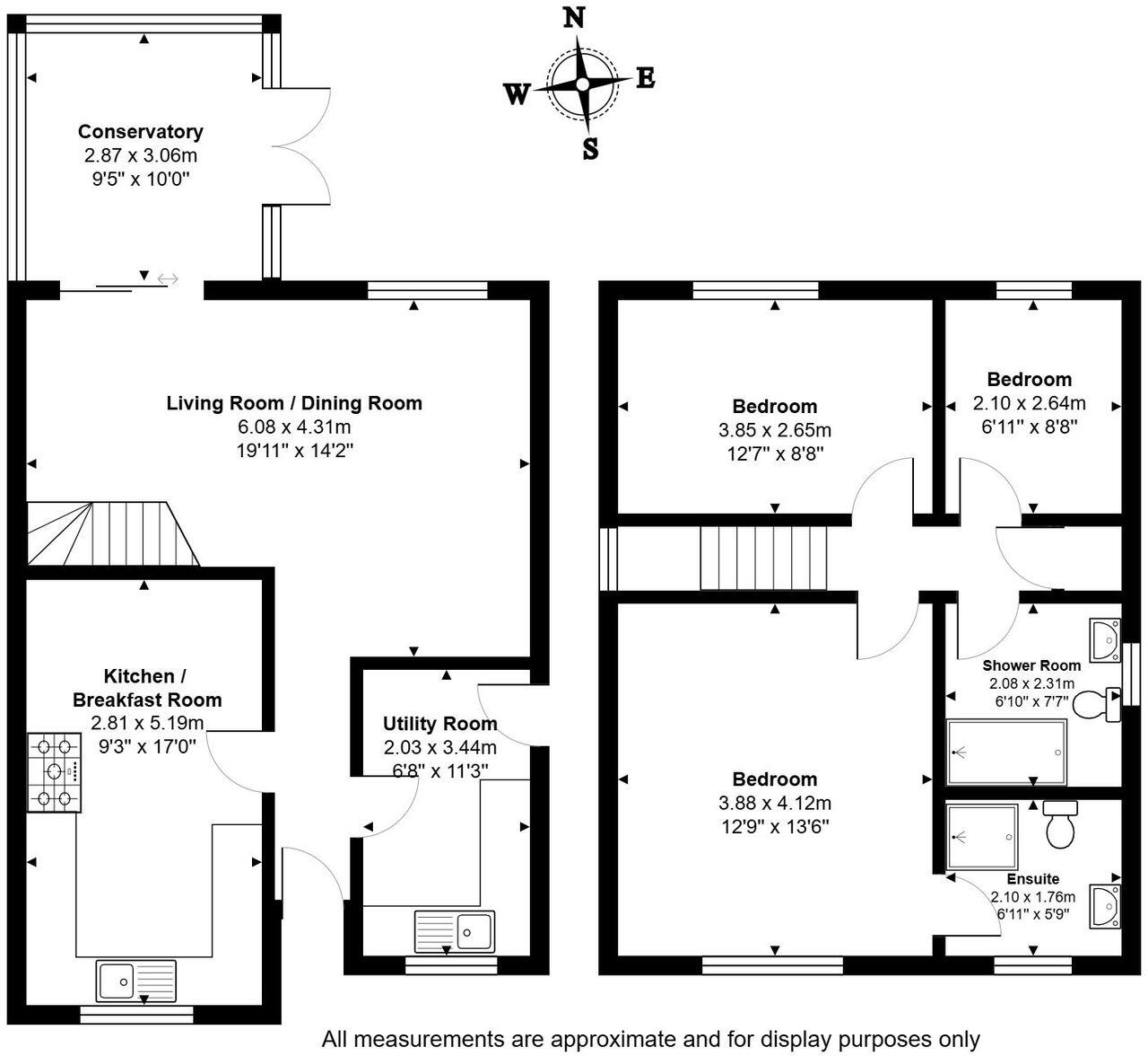
Quote HJ0930 To View** This spacious and well-appointed three-bedroom family home is ideally located within walking distance of both open countryside and a range of village amenities. Perfectly positioned for commuters, the A5 is easily accessible, offering excellent transport links. The accom...
Property Oracle says ..
This three-bedroom detached house in West Felton, Shropshire is listed at £295,000. The property benefits from a conservatory and a garden with a shed. The interior appears to be in reasonable condition, although some updating may be desirable to enhance its modern appeal. The kitchen and bathrooms seem functional but could benefit from some modernisation. The location is close to West Felton Cofe Primary School (0.55km), which is rated as “Good” by Ofsted. While the plot size is not specified, the presence of a garden and shed suggests some outdoor space. Compared to the average house price of £231,277 and average price per sqft of £226 in the area, the listed price seems slightly higher, potentially reflecting the property’s features and condition. However, nearby comparable properties show a wider range of prices, making a definitive statement about value difficult without more detailed information on the size of the plot and the specifics of the property’s condition.
Therefore, we give this property 6 / 10. *Disclaimer: This is our option and does constitute a recommendation or financial advice. Do your own research. *
- Price
- 6
- Condition
- 7
- Location
- 7
- Land
- 6
- Bedrooms
- 3
- Bathrooms
- 2
- Sqft (est)
- 1,039.15
The heatmap indicates the level of crime in the area. The color of the heatmap indicates the crime severity and recency.
Metrics Year-on-Year
- Average area value
- 243,278.00 £Decreased by 3.15 %
- Est sale value
- 325,253.95 £Increased by 28.81 %
- Average area rental value
- 1,186.00 £/moIncreased by 12.42 %
- Est letting value
- 1,039.15 £/moUnchanged by 0.00 %
- Est rental Yield
- 5.85 %Increased by 16.07 %
- Crime Rate
- 106.00 %Unchanged by 0.00 %
Agent Activity
eXp UK created the listing.
Nearby Schools
| Name | Type | Ofsted | Distance |
|---|---|---|---|
| West Felton Cofe Primary School | Voluntary Controlled School | Good | 0.55 KM |
| Kinnerley Church Of England Controlled Primary School | Voluntary Controlled School | Good | 4.72 KM |
| Whittington Cofe (Va) Primary School | Voluntary Aided School | Good | 6.70 KM |
| Packwood Haugh School | Other Independent School | 7.54 KM | |
| St John The Baptist Cofe (Controlled) Primary School And Nursery | Voluntary Controlled School | Good | 7.92 KM |
Images
Nearby Streets
| Name | Average Price | Average Sqft | Distance |
|---|---|---|---|
| The Wheatlands | £ 0 | 0 | 0.00 KM |
| Springfield Gardens | £ 319,950 | 0 | 0.00 KM |
| School Road | £ 475,000 | 0 | 0.00 KM |
| Bishops Close | £ 245,000 | 0 | 0.00 KM |
| The Croft | £ 0 | 0 | 0.00 KM |
Nearby Listings
| Address | Price | Type | Score | Distance |
|---|---|---|---|---|
| West Felton, Oswestry, SY11 4EN | £ 295,000 | BUY | 6 / 10 | 0.00 KM |
| Tedsmore Lane, West Felton, Oswestry, Shropshire, SY11 4EN | £ 500,000 | BUY | 7 / 10 | 0.00 KM |
| West Felton, Oswestry, Shropshire, SY11 | £ 120,000 | BUY | 6 / 10 | 0.00 KM |
| Fox Lane, West Felton, Oswestry | £ 325,000 | BUY | 6 / 10 | 0.09 KM |
| West Felton, Oswestry, Shropshire, SY11 | £ 475,000 | BUY | 7 / 10 | 0.11 KM |
Nearby Properties
| Address | Price | Distance |
|---|---|---|
| 4 Pradoe View | £ 249,995 | 0.15 KM |
| 8 Pradoe View | £ 280,000 | 0.15 KM |
| 15 Alma Close | £ 210,000 | 0.16 KM |
| 10 Alma Close | £ 320,000 | 0.16 KM |
| 9 Alma Close | £ 260,000 | 0.16 KM |