Winkworth says ..
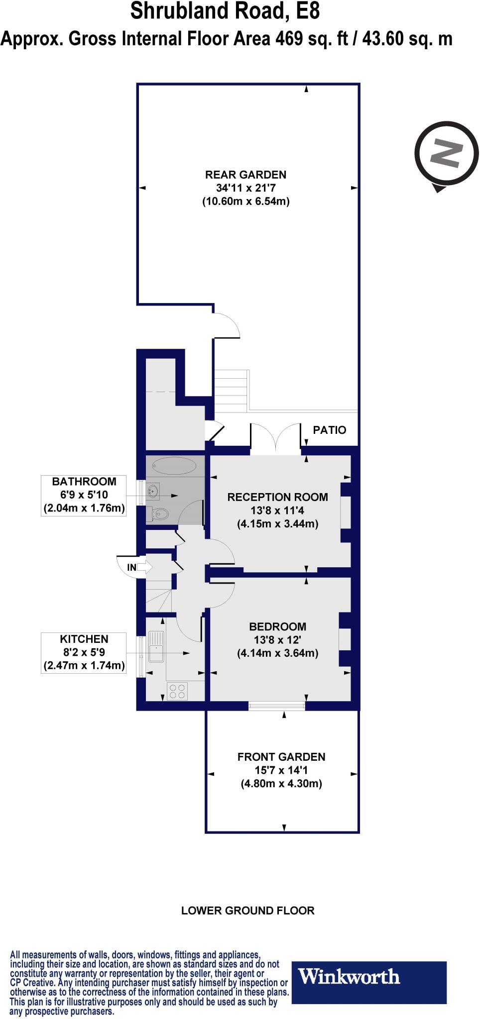
Set within a characterful period semi-detached property, shared with just one other flat, the property has its own entrance, large private south facing rear garden with separate side access and a generous own front garden. The property offers well-proportioned accommodation throughout,...
Property Oracle says ..
This ground floor flat in Hackney offers a blend of modern living and access to green spaces. The property features a well-maintained garden, a modern kitchen and bathroom. While generally in good condition, some areas could benefit from updates. Located in a desirable area with good transport links and schools.
Therefore, we give this property 7 / 10. *Disclaimer: This is our option and does constitute a recommendation or financial advice. Do your own research. *
- Price
- 7
- Condition
- 7
- Location
- 8
- Land
- 7
- Bedrooms
- 1
- Bathrooms
- 1
- Sqft (est)
- 1,380.33
The heatmap indicates the level of crime in the area. The color of the heatmap indicates the crime severity and recency.
Metrics Year-on-Year
- Average area value
- 1,266,250.00 £Increased by 109.04 %
- Est sale value
- 1,205,028.09 £Increased by 4.30 %
- Average area rental value
- 3,273.00 £/moIncreased by 14.32 %
- Est letting value
- 2,760.66 £/moDecreased by 33.33 %
- Est rental Yield
- 3.10 %Decreased by 45.33 %
- Crime Rate
- 2.00 %Unchanged by 0.00 %
Agent Activity
Winkworth created the listing.
Nearby Schools
| Name | Type | Ofsted | Distance |
|---|---|---|---|
| Queensbridge Primary School | Community School | Outstanding | 0.32 KM |
| Mapledene Children'S Centre | Children's Centre | 0.34 KM | |
| St. Paul'S With St. Michael'S Cofe Primary School | Voluntary Aided School | Outstanding | 0.40 KM |
| The Bridge Academy | Academy Sponsor Led | Good | 0.57 KM |
| Sebright School | Community School | Outstanding | 0.62 KM |
Images
Nearby Streets
| Name | Average Price | Average Sqft | Distance |
|---|---|---|---|
| Shrubland Road | £ 1,650,000 | 0 | 0.00 KM |
| Holly Street | £ 0 | 0 | 0.00 KM |
| St. Philip's Road | £ 0 | 0 | 0.00 KM |
| Nursery Lane | £ 0 | 0 | 0.00 KM |
| Boat Lane | £ 440,000 | 0 | 0.00 KM |
Nearby Transport
| Name | NLC | TLC | Distance |
|---|---|---|---|
| Haggerston | 1022 | HGG | 0.74 KM |
| Dalston Junction | 1443 | DLJ | 1.07 KM |
| Hoxton | 1023 | HOX | 1.10 KM |
| London Fields | 6966 | LOF | 1.26 KM |
| Dalston Kingsland | 1429 | DLK | 1.29 KM |
Nearby Listings
| Address | Price | Type | Score | Distance |
|---|---|---|---|---|
| London Fields, London, E8 | £ 625,000 | BUY | 7 / 10 | 0.00 KM |
| Shrubland Road, Hackney, E8 | £ 1,650,000 | BUY | 6 / 10 | 0.02 KM |
| Shrubland Road, Hackney, E8 | £ 450,000 | BUY | Unknown | 0.08 KM |
| Brownlow Road, London Fields, London, E8 | £ 2,000,000 | BUY | 6 / 10 | 0.10 KM |
| Brownlow Road, London Fields, London, E8 | £ 1,850,000 | BUY | Unknown | 0.10 KM |
Nearby Properties
| Address | Price | Distance |
|---|---|---|
| 46 Albion Drive | £ 885,000 | 0.07 KM |
| 70 Albion Drive | £ 1,400,000 | 0.07 KM |
| 25a Albion Drive | £ 572,555 | 0.07 KM |
| 56a Albion Drive | £ 475,500 | 0.07 KM |
| 44 Albion Drive | £ 1,290,000 | 0.07 KM |