Prestbury, SK10
Specialist Property Solutions logo

Prestbury, SK10

By Specialist Property Solutions

£ 2,195,000

Reviews

3 out of 5 stars

Specialist Property Solutions says ..

LOCATION, LUXURY, LIFESTYLE....OPEN DAY SUNDAY 19TH OCTOBER 2 - 4PM.....Strictly appointment only!!!

Property Oracle says ..

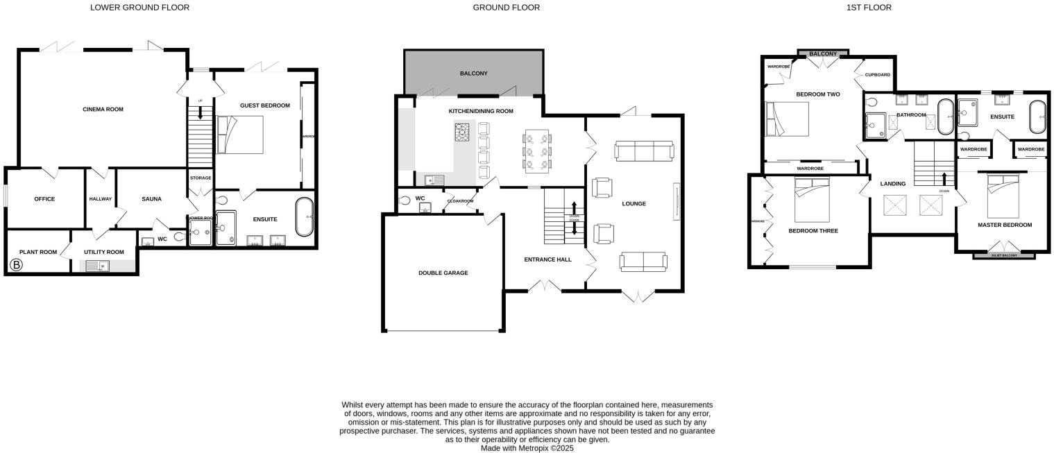
This detached property on Butley Lanes, Prestbury, offers four bedrooms and four bathrooms across 2,225 sqft. The house is in excellent condition, featuring modern interiors, a well-equipped kitchen, and stylish bathrooms, including a sauna. The property benefits from a well-maintained garden with a patio area, perfect for outdoor living. Located in a sought-after area of Cheshire East, it is conveniently located near schools and transportation. However, the asking price of £2,195,000 appears high compared to the local average, with a price per square foot of £986 against an average of £703 in Prestbury.

Therefore, we give this property 7 / 10. *Disclaimer: This is our option and does constitute a recommendation or financial advice. Do your own research. *

Price
6
Condition
9
Location
8
Land
7
Bedrooms
4
Bathrooms
4
Sqft (est)
2,225.00

The heatmap indicates the level of crime in the area. The color of the heatmap indicates the crime severity and recency.

Metrics Year-on-Year

Average area value
1,007,500.00 £
Decreased by 19.91 %
from 1,257,931.00 £
Est sale value
1,564,175.00 £
Increased by 15.82 %
from 1,350,575.00 £
Average area rental value
2,733.00 £/mo
Decreased by 61.29 %
from 7,061.00 £/mo
Est letting value
2,225.00 £/mo
Decreased by 66.67 %
from 6,675.00 £/mo
Est rental Yield
3.26 %
Decreased by 51.63 %
from 6.74 %
Crime Rate
14.00 %
Unchanged by 0.00 %
from 14.00 %

Agent Activity

  • Specialist Property Solutions created the listing.

Nearby Schools

NameTypeOfstedDistance
Prestbury Cofe Primary SchoolVoluntary Aided SchoolGood0.51 KM
Upton Priory SchoolAcademy ConverterGood2.72 KM
The King'S School In MacclesfieldOther Independent School2.84 KM
The Fallibroome AcademyAcademy ConverterOutstanding3.14 KM
Bollinbrook Cofe (A) Primary SchoolVoluntary Aided SchoolRequires improvement3.14 KM

Images

Gallery Gallery Gallery Gallery Gallery Gallery White Lodge, Prestbury, Cheshire SK10 4HU Gallery Gallery Gallery Gallery Gallery Gallery Gallery Gallery Gallery Gallery Gallery Gallery Gallery Gallery Gallery Gallery Gallery Gallery Gallery Gallery Gallery Gallery Gallery Gallery Gallery Gallery Gallery Gallery Gallery Gallery

Nearby Streets

NameAverage PriceAverage SqftDistance
Legh Road £ 850,00000.00 KM
Peters Close £ 000.00 KM
Springfields £ 1,274,97500.00 KM
Pearl Street £ 525,00000.00 KM
Waterbank £ 3,000,00000.00 KM

Nearby Transport

NameNLCTLCDistance
Prestbury2875PRB0.43 KM
Adlington (Cheshire)2939ADC3.20 KM
Macclesfield2871MAC4.97 KM
Poynton2874PYT6.35 KM
Bramhall2944BML7.46 KM

Nearby Listings

AddressPriceTypeScoreDistance
Prestbury, SK10 £ 2,195,000BUY7 / 100.00 KM
Butley Lanes, Prestbury, Macclesfield, Cheshire, SK10 £ 325,000BUYUnknown0.07 KM
Butley Lanes, Prestbury, Macclesfield £ 1,295,000BUY7 / 100.07 KM
Brocklehurst Drive, Prestbury £ 1,250,000BUYUnknown0.09 KM
Brocklehurst Drive, Prestbury, Macclesfield £ 1,295,000BUY7 / 100.12 KM

Nearby Properties

AddressPriceDistance
3b Butley Lanes £ 860,0000.07 KM
30 Butley Lanes £ 245,5000.07 KM
9 Butley Lanes £ 665,0000.07 KM
24 Butley Lanes £ 485,0000.07 KM
5 Butley Lanes £ 1,500,0000.07 KM