Moat Hall, Thorner Lane, Scarcroft, Leeds, West Yorkshire
By Fine & Country
£ 2,975,000
Reviews
4 out of 5 stars
Fine & Country says ..
Fine & Country take great pleasure in offering to the market Moat Hall, an impressive and substantial detached family residence boasting beautifully presented accommodation coupled with fantastic views over open countryside.
Property Oracle says ..
Moat Hall is an equestrian facility situated in Scarcroft, Leeds. The property benefits from a tranquil location in the countryside, yet remains within reasonable proximity to Leeds and its amenities. The surrounding area features a mix of properties, with some higher-value homes nearby, suggesting a desirable location. The presence of several primary schools within a few kilometers radius is a positive factor for families. However, the lack of readily available public transportation might be a consideration for some buyers.
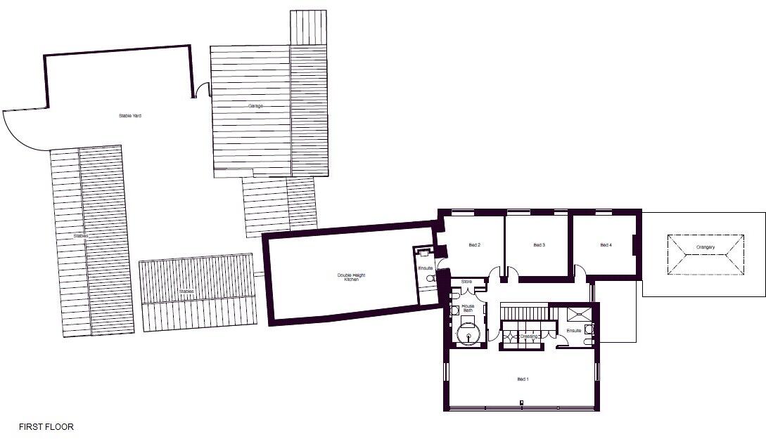
The property itself appears to be in excellent condition. Images reveal a modern, well-maintained interior with high-quality finishes and fixtures. The extension is seamlessly integrated with the original structure, creating a spacious and contemporary living environment. The extensive grounds are a key feature, providing ample space for equestrian activities and outdoor recreation.
Given the property’s condition, location, and significant land size, the list price of £2,975,000 appears to be in line with the high-end market in the area, although a lack of comparable properties with precise square footage data makes a definitive price-per-square-foot comparison difficult. The average price in the area is considerably lower, but this is not unexpected given that Moat Hall is a unique equestrian property with substantial land and high-quality renovations.
Therefore, we give this property 8 / 10. *Disclaimer: This is our option and does constitute a recommendation or financial advice. Do your own research. *
- Price
- 7
- Condition
- 10
- Location
- 7
- Land
- 10
- Bedrooms
- 4
- Bathrooms
- 3
- Sqft (est)
- 5,275.00
- Lot (est)
- 5,275.00
The heatmap indicates the level of crime in the area. The color of the heatmap indicates the crime severity and recency.
Metrics Year-on-Year
- Average area value
- 638,145.00 £Decreased by 11.86 %
- Est sale value
- 2,183,850.00 £Increased by 21.41 %
- Average area rental value
- 2,478.00 £/moIncreased by 57.03 %
- Est letting value
- 5,275.00 £/mo
- Est rental Yield
- 4.66 %Increased by 77.86 %
- Crime Rate
- 0.00 %
Agent Activity
Fine & Country created the listing.
Nearby Schools
| Name | Type | Ofsted | Distance |
|---|---|---|---|
| Thorner Church Of England Primary School | Academy Converter | 2.08 KM | |
| Bardsey Primary School | Foundation School | Good | 2.30 KM |
| Fieldhead Carr Primary School | Community School | Good | 4.40 KM |
| Collingham Lady Elizabeth Hastings Church Of England Voluntary Aided Primary School | Voluntary Aided School | Good | 4.63 KM |
| Shadwell Primary School | Community School | Outstanding | 4.75 KM |
Images
Nearby Streets
| Name | Average Price | Average Sqft | Distance |
|---|---|---|---|
| Eltofts Bridleway | £ 5,950,000 | 0 | 0.00 KM |
| The Croft | £ 0 | 0 | 0.00 KM |
| Manor Park | £ 0 | 0 | 0.00 KM |
| Woodlands Close | £ 0 | 0 | 0.00 KM |
| Cornmill Close | £ 0 | 0 | 0.00 KM |
Nearby Transport
| Name | NLC | TLC | Distance |
|---|---|---|---|
| Cross Gates | 8473 | CRG | 7.55 KM |
Nearby Listings
| Address | Price | Type | Score | Distance |
|---|---|---|---|---|
| Moat Hall, Thorner Lane, Scarcroft, Leeds, West Yorkshire | £ 2,975,000 | BUY | 8 / 10 | 0.00 KM |
| Thorner Lane, Scarcroft, LS14 | £ 1,395,000 | BUY | 7 / 10 | 0.34 KM |
| Manor Farm Barn, Thorner Lane | £ 975,000 | BUY | 7 / 10 | 0.37 KM |
| Rowley View Cottage, Wetherby Road, Scarcroft, Leeds, West Yorkshire | £ 330,000 | BUY | 6 / 10 | 1.07 KM |
| Wetherby Road, Leeds, LS14 3BB | £ 330,000 | BUY | 6 / 10 | 1.09 KM |
Nearby Properties
| Address | Price | Distance |
|---|---|---|
| 49 Thorner Lane | £ 505,000 | 0.44 KM |
| Oaklands Manor | £ 1,087,861 | 0.49 KM |
| Rose Cottage | £ 585,000 | 0.49 KM |
| Oaklands Manor Cottage | £ 535,000 | 0.49 KM |
| 25 The Meadow | £ 635,000 | 0.91 KM |