Cornmill View, Horsforth, Leeds, West Yorkshire, LS18
By Hardisty & co
£ 185,000
Reviews
3 out of 5 stars
Hardisty & co says ..
Great opportunity - ideal for first time buyers. Located in prime position, in central horsforth - quiet yet convenient with woodland outlook and only a short walking distance to the vast array of amenities on New Road Side, Town Street and the train station. The location also provides excellent ...
Property Oracle says ..
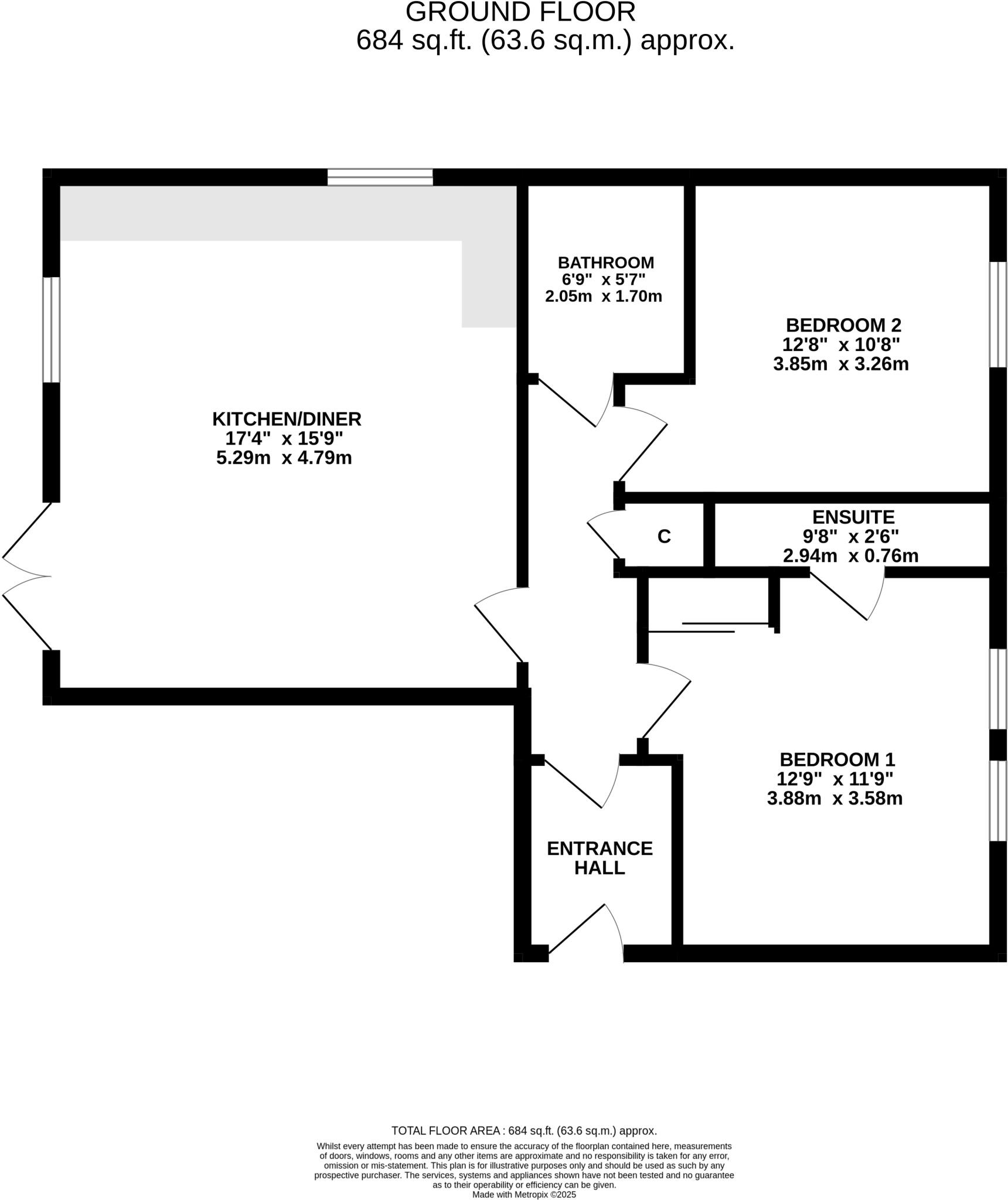
This two-bedroom, two-bathroom apartment in Cornmill View, Horsforth, offers modern and well-maintained accommodation. The open-plan living area and kitchen are bright and spacious, with patio doors leading to a small external patio area. The property benefits from a convenient location in Horsforth, a popular suburb of Leeds, with good access to local amenities, schools, and transport links, including several train stations within a reasonable distance. The apartment’s condition appears excellent, with modern fixtures and fittings throughout. However, a key drawback is the lack of significant outdoor space. The property’s price point seems competitive within the Horsforth market, although a direct comparison with similar properties in Cornmill View would be necessary for a more precise valuation. The absence of plot size data limits a full analysis of value for money. Overall, this apartment is suitable for first-time buyers, professionals, or investors seeking a modern and well-located property in Horsforth.
Therefore, we give this property 6 / 10. *Disclaimer: This is our option and does constitute a recommendation or financial advice. Do your own research. *
- Price
- 7
- Condition
- 8
- Location
- 7
- Land
- 2
- Bedrooms
- 2
- Bathrooms
- 2
- Sqft (est)
- 684.58
The heatmap indicates the level of crime in the area. The color of the heatmap indicates the crime severity and recency.
Metrics Year-on-Year
- Average area value
- 389,660.00 £Decreased by 2.80 %
- Est sale value
- 277,939.48 £Increased by 42.96 %
- Average area rental value
- 1,475.00 £/moIncreased by 31.70 %
- Est letting value
- 684.58 £/mo
- Est rental Yield
- 4.54 %Increased by 35.52 %
- Crime Rate
- 12.00 %Unchanged by 0.00 %
Agent Activity
Hardisty & co created the listing.
Nearby Schools
| Name | Type | Ofsted | Distance |
|---|---|---|---|
| Hawksworth Wood Children'S Centre | Children's Centre | 0.51 KM | |
| Hawksworth Wood Primary School | Community School | Good | 0.54 KM |
| Abbey Grange Church Of England Academy | Academy Converter | Good | 1.03 KM |
| Lighthouse School Leeds | Free Schools Special | Good | 1.22 KM |
| Iveson Primary School | Foundation School | Good | 1.60 KM |
Images
Nearby Streets
| Name | Average Price | Average Sqft | Distance |
|---|---|---|---|
| Tan House Hill | £ 270,000 | 0 | 0.00 KM |
| A6120 | £ 0 | 0 | 0.00 KM |
| Ring Road Horsforth | £ 0 | 0 | 0.00 KM |
| Broad Lane | £ 177,473 | 0 | 0.00 KM |
| Millstone Way | £ 0 | 0 | 0.00 KM |
Nearby Transport
| Name | NLC | TLC | Distance |
|---|---|---|---|
| Kirkstall Forge | 6544 | KLF | 1.41 KM |
| Horsforth | 8499 | HRS | 1.95 KM |
| Headingley | 8498 | HDY | 3.24 KM |
| Bramley (West Yorkshire) | 8496 | BLE | 3.99 KM |
| Burley Park | 8500 | BUY | 5.12 KM |
Nearby Listings
| Address | Price | Type | Score | Distance |
|---|---|---|---|---|
| Cornmill View, Horsforth, Leeds, West Yorkshire, LS18 | £ 185,000 | BUY | 6 / 10 | 0.00 KM |
| Cornmill View, Horsforth, Leeds, West Yorkshire, LS18 | £ 170,000 | BUY | 6 / 10 | 0.00 KM |
| Flat 10, Murray Court, Cornmill View, Horsforth, Leeds, West Yorkshire | £ 180,000 | BUY | 6 / 10 | 0.03 KM |
| Cornmill View, Horsforth, Leeds | £ 165,000 | BUY | 7 / 10 | 0.05 KM |
| Flat 12, Horsforth Mill, Low Lane, Horsforth, Leeds, West Yorkshire | £ 250,000 | BUY | 6 / 10 | 0.05 KM |
Nearby Properties
| Address | Price | Distance |
|---|---|---|
| 402 Low Lane | £ 255,000 | 0.11 KM |
| 400 Low Lane | £ 225,000 | 0.11 KM |
| 398 Low Lane | £ 71,000 | 0.11 KM |
| 23 Paradise Grove | £ 113,000 | 0.17 KM |
| 15 Paradise Grove | £ 226,000 | 0.17 KM |