Meadowbrook Rise, Hasingden Road, Blackburn
By Crown Estate & Letting Agents
£ 189,950
Reviews
3 out of 5 stars
Crown Estate & Letting Agents says ..
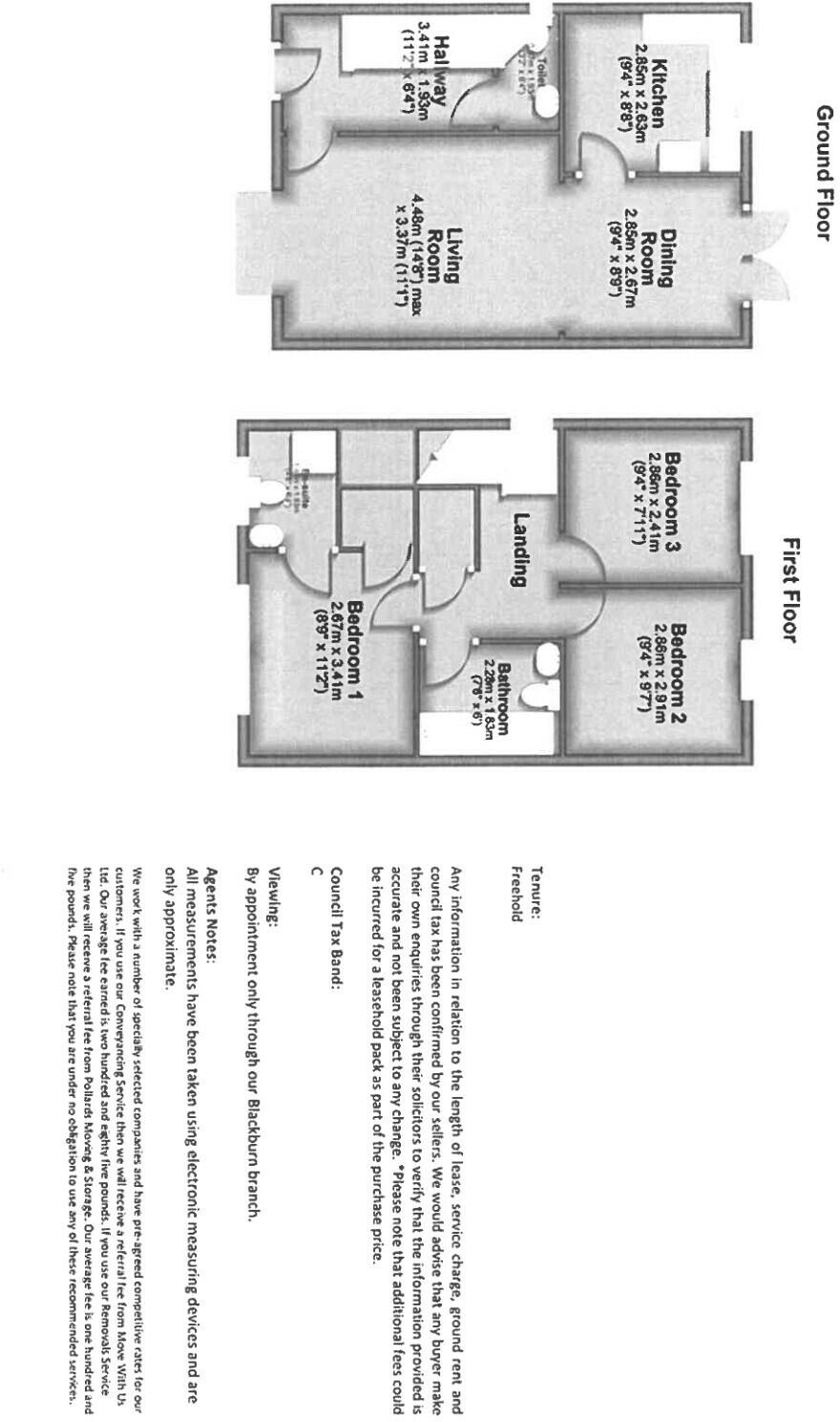
Tucked away on a popular development, this stunning three bedroom detached home is welcomed to the market. This modern home has undergone further improvements in recent years to create a stylish home.
Property Oracle says ..
This detached property on Meadowbrook Rise in Blackburn presents a well-maintained, modern living space suitable for families. Its location offers proximity to schools and transportation, while the house itself boasts updated interiors and a pleasant garden. The asking price appears justified given the property’s condition and features, making it a potentially attractive option for buyers in the area.
Therefore, we give this property 7 / 10. *Disclaimer: This is our option and does constitute a recommendation or financial advice. Do your own research. *
- Price
- 8
- Condition
- 9
- Location
- 7
- Land
- 7
- Bedrooms
- 3
- Bathrooms
- 1
The heatmap indicates the level of crime in the area. The color of the heatmap indicates the crime severity and recency.
Metrics Year-on-Year
- Average area value
- 132,488.00 £Decreased by 0.15 %
- Average area rental value
- 740.00 £/moIncreased by 16.90 %
- Est rental Yield
- 6.70 %Increased by 17.13 %
- Crime Rate
- 1.00 %Unchanged by 0.00 %
Agent Activity
Crown Estate & Letting Agents created the listing.
Nearby Schools
| Name | Type | Ofsted | Distance |
|---|---|---|---|
| Crosshill Special School | Academy Special Converter | 0.17 KM | |
| Blackburn Central High School | Academy Converter | 0.21 KM | |
| St Mary'S And St Joseph'S Roman Catholic Primary School Blackburn | Voluntary Aided School | Good | 0.43 KM |
| Audley Infant School | Community School | Good | 0.67 KM |
| Audley Junior School | Community School | Good | 0.67 KM |
Images
Nearby Streets
| Name | Average Price | Average Sqft | Distance |
|---|---|---|---|
| St Annes Close | £ 150,000 | 0 | 0.00 KM |
| Walton Crescent | £ 325,000 | 0 | 0.00 KM |
| Fairhaven Road | £ 0 | 0 | 0.00 KM |
| Durham Close | £ 0 | 0 | 0.00 KM |
| Arnold Close | £ 265,000 | 0 | 0.00 KM |
Nearby Transport
| Name | NLC | TLC | Distance |
|---|---|---|---|
| Blackburn | 2737 | BBN | 1.42 KM |
| Mill Hill (Lancs) | 2750 | MLH | 3.43 KM |
| Darwen | 2576 | DWN | 4.37 KM |
| Ramsgreave And Wilpshire | 2734 | RGW | 4.84 KM |
| Cherry Tree | 2573 | CYT | 5.28 KM |
Nearby Listings
| Address | Price | Type | Score | Distance |
|---|---|---|---|---|
| Meadowbrook Rise, Hasingden Road, Blackburn | £ 189,950 | BUY | 7 / 10 | 0.00 KM |
| Meadowbrook Rise, Blackburn, Lancashire, BB2 | £ 215,000 | BUY | 6 / 10 | 0.00 KM |
| Meadowbrook Rise, Grimshaw Park, Blackburn, Lancashire, BB2 | £ 270,000 | BUY | 6 / 10 | 0.04 KM |
| Meadowbrook Rise, Nr Royal Blackburn, Blackburn, Lancashire, BB2 | £ 200,000 | BUY | 6 / 10 | 0.04 KM |
| Meadowbrook Rise, Blackburn, Lancashire, BB2 | £ 209,995 | BUY | Unknown | 0.04 KM |
Nearby Properties
| Address | Price | Distance |
|---|---|---|
| 140 Haslingden Road | £ 102,500 | 0.10 KM |
| 146 Haslingden Road | £ 85,000 | 0.10 KM |
| 148 Haslingden Road | £ 127,000 | 0.10 KM |
| 142 Haslingden Road | £ 100,000 | 0.10 KM |
| 17 Old Bank Lane | £ 140,000 | 0.18 KM |