Wilmslow Road, Alderley Edge, Cheshire, SK9
By Savills
£ 2,500,000
Reviews
3 out of 5 stars
Savills says ..
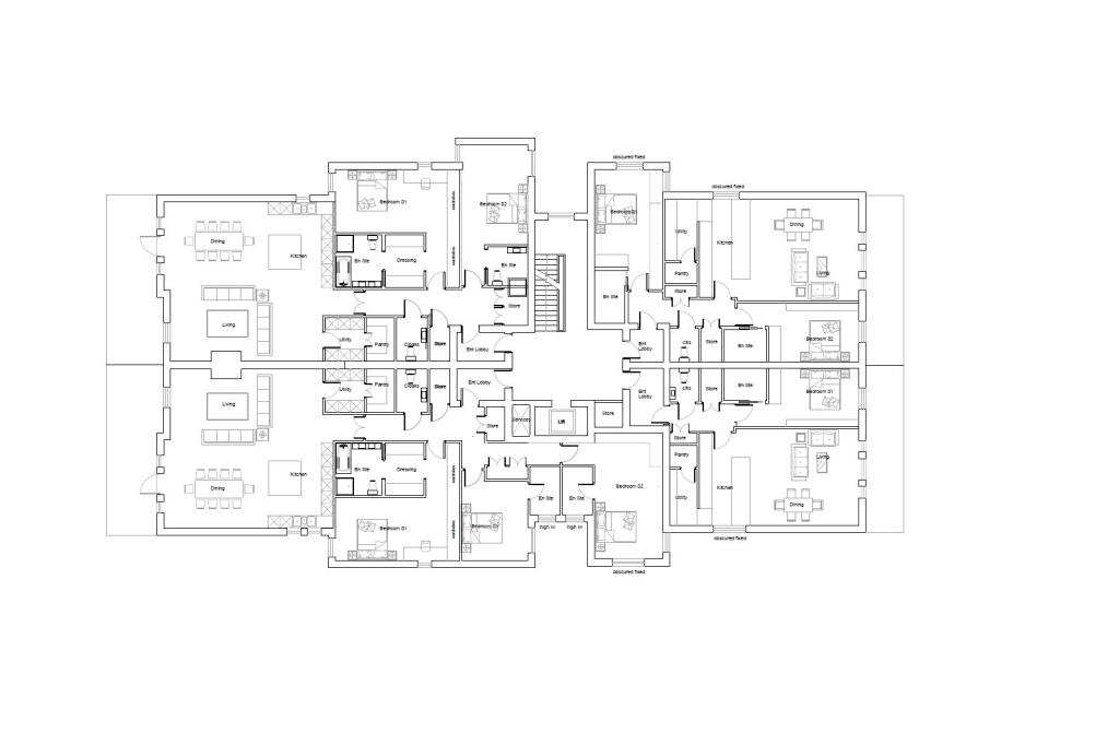
A rare opportunity to acquire a prime 0.47 acre site for redevelopment with planning granted for a landmark scheme of 14 apartments, 0.3 miles from the village centre. No Chain.
Property Oracle says ..
This property is a plot on Wilmslow Road, Alderley Edge, Cheshire. The listing is handled by Savills. The location is very desirable, with proximity to good schools and transportation. Based on architectural drawings, the property is either new construction or a recent development and appears to be in excellent condition. The asking price of £2,500,000 seems high compared to the local average. The property includes some garden or landscaped areas, but the exact plot size is not specified.
Therefore, we give this property 6 / 10. *Disclaimer: This is our option and does constitute a recommendation or financial advice. Do your own research. *
- Price
- 3
- Condition
- 9
- Location
- 8
- Land
- 6
- Bedrooms
- 0
- Bathrooms
- 0
The heatmap indicates the level of crime in the area. The color of the heatmap indicates the crime severity and recency.
Metrics Year-on-Year
- Average area value
- 430,000.00 £Decreased by 45.17 %
- Average area rental value
- 4,000.00 £/moIncreased by 70.00 %
- Est rental Yield
- 11.16 %Increased by 210.00 %
- Crime Rate
- 15.00 %Unchanged by 0.00 %
Agent Activity
Savills created the listing.
Nearby Schools
| Name | Type | Ofsted | Distance |
|---|---|---|---|
| Alderley Edge School For Girls | Other Independent School | 0.29 KM | |
| Alderley Edge Community Primary School | Community School | Outstanding | 0.46 KM |
| The Ryleys School | Other Independent School | 0.96 KM | |
| Ashdene Primary School | Community School | Outstanding | 1.66 KM |
| St Anne'S Fulshaw C Of E Primary School | Voluntary Controlled School | Good | 1.76 KM |
Images
Nearby Streets
| Name | Average Price | Average Sqft | Distance |
|---|---|---|---|
| Fairfield Gardens | £ 0 | 0 | 0.00 KM |
| Greystoke Drive | £ 0 | 0 | 0.00 KM |
| Orme Street | £ 350,000 | 0 | 0.00 KM |
| Oakfield Close | £ 0 | 0 | 0.00 KM |
| Marlborough Avenue | £ 1,000,000 | 0 | 0.00 KM |
Nearby Transport
| Name | NLC | TLC | Distance |
|---|---|---|---|
| Alderley Edge | 2760 | ALD | 0.39 KM |
| Wilmslow | 2774 | WML | 2.46 KM |
| Styal | 2868 | SYA | 4.58 KM |
| Handforth | 2767 | HTH | 5.06 KM |
| Chelford (Cheshire) | 2764 | CEL | 6.35 KM |
Nearby Listings
| Address | Price | Type | Score | Distance |
|---|---|---|---|---|
| Wilmslow Road, Alderley Edge, Cheshire, SK9 | £ 2,500,000 | BUY | 6 / 10 | 0.00 KM |
| The Oaks, Horseshoe Lane, Alderley Edge | £ 375,000 | BUY | 7 / 10 | 0.03 KM |
| Horseshoe Lane, Alderley Edge | £ 450,000 | BUY | 8 / 10 | 0.05 KM |
| Hurst Lea Court, Alderley Edge | £ 410,000 | BUY | 7 / 10 | 0.14 KM |
| Hurst Lea Court, Alderley Edge | £ 324,000 | BUY | Unknown | 0.14 KM |
Nearby Properties
| Address | Price | Distance |
|---|---|---|
| Dodge Fold | £ 895,000 | 0.06 KM |
| Hyggelig | £ 495,000 | 0.06 KM |
| Bridge Cottage | £ 560,000 | 0.06 KM |
| 5 Woodleigh Court | £ 239,500 | 0.14 KM |
| 6 Hurstlea Court | £ 333,000 | 0.18 KM |