FO
Beverley Gardens, Wembley Park, Wembley, HA9
By Foxtons
£ 799,950
Reviews
3 out of 5 stars
Foxtons says ..
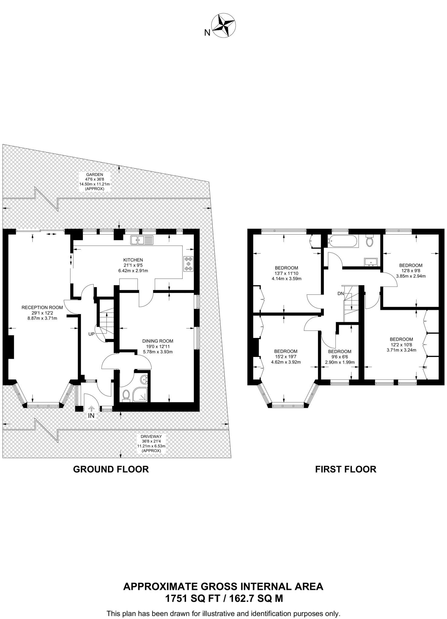
located in the sought after Barn Hill estate. This wonderfully 5 bedroom house features a superb double reception room, contemporary kitchen with additional dining room, good sized garden and off street parking.
Property Oracle says ..
Therefore, we give this property 6 / 10. *Disclaimer: This is our option and does constitute a recommendation or financial advice. Do your own research. *
- Price
- 6
- Condition
- 7
- Location
- 7
- Land
- 7
- Bedrooms
- 5
- Bathrooms
- 2
- Sqft (est)
- 1,751.29
- Lot (est)
- 1,748.06
The heatmap indicates the level of crime in the area. The color of the heatmap indicates the crime severity and recency.
Metrics Year-on-Year
- Average area value
- 626,246.00 £Increased by 2.14 %
- Est sale value
- 1,057,779.16 £Increased by 5.78 %
- Average area rental value
- 2,336.00 £/moIncreased by 26.00 %
- Est letting value
- 3,502.58 £/moIncreased by 100.00 %
- Est rental Yield
- 4.48 %Increased by 23.42 %
- Crime Rate
- 1.00 %Unchanged by 0.00 %
from 613,151.00 £
from 999,986.59 £
from 1,854.00 £/mo
from 1,751.29 £/mo
from 3.63 %
from 1.00 %
Agent Activity
Foxtons created the listing.
Nearby Schools
| Name | Type | Ofsted | Distance |
|---|---|---|---|
| Sinai Jewish Primary School | Voluntary Aided School | Good | 0.76 KM |
| Ark Academy | Academy Sponsor Led | Outstanding | 0.90 KM |
| Jfs | Voluntary Aided School | Special Measures | 0.94 KM |
| Preston Manor School | Academy Converter | Good | 0.97 KM |
| Michaela Community School | Free Schools | Outstanding | 1.24 KM |
Images
Nearby Streets
| Name | Average Price | Average Sqft | Distance |
|---|---|---|---|
| Wilson Drive | £ 0 | 0 | 0.00 KM |
| May Lane | £ 0 | 0 | 0.00 KM |
| Page Close | £ 0 | 0 | 0.00 KM |
| Hillside Gardens | £ 775,000 | 0 | 0.00 KM |
| Olympic Square | £ 425,000 | 0 | 0.00 KM |
Nearby Transport
| Name | NLC | TLC | Distance |
|---|---|---|---|
| Wembley Stadium | 1509 | WCX | 2.07 KM |
| North Wembley | 1422 | NWB | 2.53 KM |
| Wembley Central | 1423 | WMB | 2.70 KM |
| South Kenton | 1453 | SOK | 2.77 KM |
| Stonebridge Park | 1454 | SBP | 3.32 KM |
Nearby Listings
| Address | Price | Type | Score | Distance |
|---|---|---|---|---|
| Beverley Gardens, Wembley Park, Wembley, HA9 | £ 799,950 | BUY | 6 / 10 | 0.00 KM |
| Barn Hill Estate | £ 799,950 | BUY | 6 / 10 | 0.01 KM |
| Beverley Gardens, Wembley | £ 795,000 | BUY | 7 / 10 | 0.07 KM |
| Beverley Gardens, Wembley | £ 795,000 | BUY | 7 / 10 | 0.07 KM |
| Beverley Gardens, Wembley, HA9 | £ 675,000 | BUY | 6 / 10 | 0.07 KM |
Nearby Properties
| Address | Price | Distance |
|---|---|---|
| 67 Beverley Gardens | £ 435,000 | 0.05 KM |
| 63 Beverley Gardens | £ 444,250 | 0.05 KM |
| 81 Beverley Gardens | £ 249,950 | 0.05 KM |
| 77 Beverley Gardens | £ 303,000 | 0.05 KM |
| 65 Beverley Gardens | £ 86,000 | 0.05 KM |