Fir Tree House, Mill Road, Fen Drayton, CB24
By Lennon James Property
£ 1,200,000
Reviews
3 out of 5 stars
Lennon James Property says ..
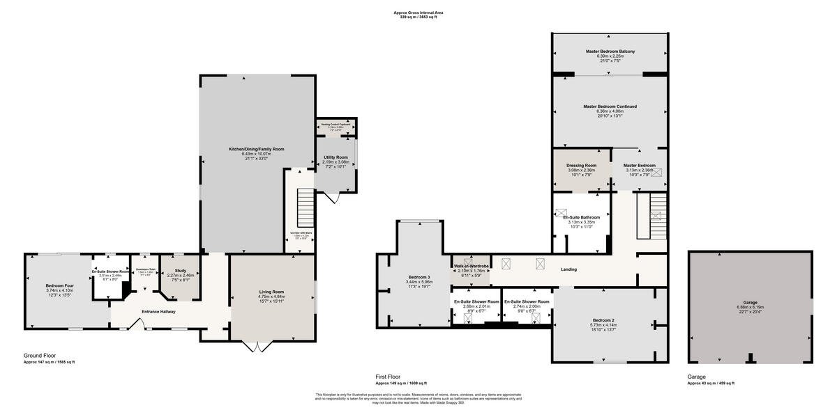
FIR TREE HOUSE is an EXPANSIVE & LUXURIOUS MODERN MASTERPIECE, a 3,653 sq ft ARCHITECTURALLY DESIGNED DETACHED EXECUTIVE home NESTLED in the heart of the PICTURESQUE CAMBRIDGESHIRE COUNTRYSIDE. This EXCEPTIONAL FOUR DOUBLE BEDROOM, FOUR BATHROOM home redefines CONTEMPORARY LIVING
Property Oracle says ..
Fir Tree House is a detached property located on Mill Road in Fen Drayton, Cambridgeshire. The house features four bedrooms and four bathrooms, with a total square footage of 2,817.35 sqft. The property is listed for £1,200,000 by Lennon James Property. The house is modern and well-presented, with a large garden and a detached garage. The location is suitable for those seeking a village lifestyle within commuting distance of Cambridge. The property is in close proximity to Fen Drayton Primary School. The price is relatively high for the area, but reflects the size and condition of the property.
Therefore, we give this property 7 / 10. *Disclaimer: This is our option and does constitute a recommendation or financial advice. Do your own research. *
- Price
- 6
- Condition
- 9
- Location
- 7
- Land
- 8
- Bedrooms
- 4
- Bathrooms
- 4
- Sqft (est)
- 2,817.35
The heatmap indicates the level of crime in the area. The color of the heatmap indicates the crime severity and recency.
Metrics Year-on-Year
- Average area value
- 342,500.00 £Decreased by 20.84 %
- Est sale value
- 983,255.15 £Decreased by 7.67 %
- Average area rental value
- 1,692.00 £/moIncreased by 17.66 %
- Est letting value
- 2,817.35 £/moUnchanged by 0.00 %
- Est rental Yield
- 5.93 %Increased by 48.62 %
- Crime Rate
- 0.00 %
Agent Activity
Lennon James Property created the listing.
Nearby Schools
| Name | Type | Ofsted | Distance |
|---|---|---|---|
| Fen Drayton Primary School | Community School | Good | 1.29 KM |
| Fenstanton And Hilton Primary School | Community School | Requires improvement | 1.53 KM |
| Holywell Cofe Primary School | Voluntary Controlled School | Outstanding | 4.22 KM |
| St Ives Child And Family Zone | Children's Centre | 4.28 KM | |
| Eastfield Infant And Nursery School | Community School | Good | 4.35 KM |
Images
Nearby Streets
| Name | Average Price | Average Sqft | Distance |
|---|---|---|---|
| Cambridge Road | £ 500,000 | 0 | 0.00 KM |
| Oak Tree Road | £ 525,000 | 0 | 0.00 KM |
| Littlemoor | £ 299,999 | 0 | 0.00 KM |
| New Barns Lane | £ 0 | 0 | 0.00 KM |
| Park Lane | £ 875,000 | 0 | 0.00 KM |
Nearby Listings
| Address | Price | Type | Score | Distance |
|---|---|---|---|---|
| Mill Road, Fen Drayton, Cambridge | £ 795,000 | BUY | 7 / 10 | 0.00 KM |
| Mill Road, Fen Drayton, Cambridge, Cambridgeshire, CB24 | £ 900,000 | BUY | 7 / 10 | 0.00 KM |
| Fir Tree House, Mill Road, Fen Drayton, CB24 | £ 1,200,000 | BUY | 7 / 10 | 0.00 KM |
| Fir Tree House, Mill Road, Fen Drayton, CB24 | £ 1,100,000 | BUY | 7 / 10 | 0.00 KM |
| 43 Middleton Way, Fen Drayton, Cambridge, Cambridgeshire, CB24 | £ 325,000 | BUY | Unknown | 0.63 KM |
Nearby Properties
| Address | Price | Distance |
|---|---|---|
| 28 Apple Tree Close | £ 349,995 | 0.70 KM |
| 29 Apple Tree Close | £ 349,995 | 0.70 KM |
| 16 Oak Tree Road | £ 250,000 | 0.82 KM |
| 24 Oak Tree Road | £ 490,000 | 0.83 KM |
| 23 Oak Tree Road | £ 330,000 | 0.83 KM |