CL
St. Georges Road, Stoke, Coventry
By Cloud9 Estates Ltd
£ 140,000
Cloud9 Estates Ltd says ..
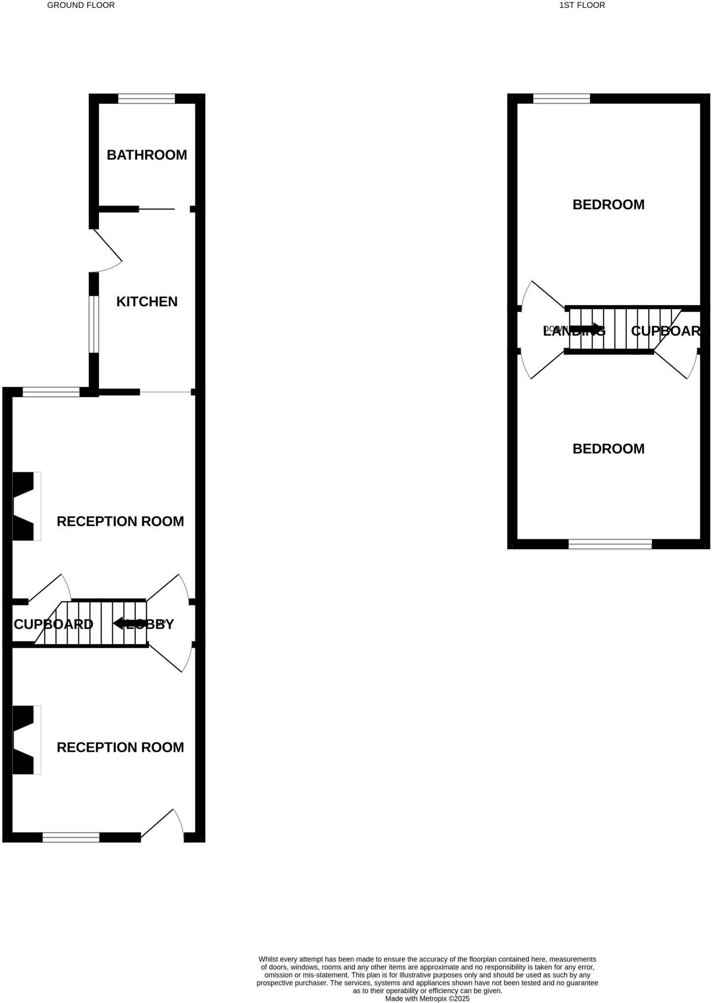
AFFORDING NO UPWARD CHAIN is this Two Bedroomed Mid-Terraced dwelling situated in Stoke to the East of the City centre. Investors to expect £900 pcm Being an ideal first-time purchase/investment opportunity and benefitting from Gas Central Heating and Double Glazing in brief the property co...
- Bedrooms
- 2
- Bathrooms
- 1
The heatmap indicates the level of crime in the area. The color of the heatmap indicates the crime severity and recency.
Metrics Year-on-Year
- Average area value
- 234,977.00 £Increased by 10.88 %
- Average area rental value
- 1,065.00 £/moDecreased by 1.11 %
- Est rental Yield
- 5.44 %Decreased by 10.82 %
- Crime Rate
- 8.00 %Unchanged by 0.00 %
from 211,917.00 £
from 1,077.00 £/mo
from 6.10 %
from 8.00 %
Agent Activity
Cloud9 Estates Ltd marked this listing as sold.
Cloud9 Estates Ltd created the listing.
Nearby Schools
| Name | Type | Ofsted | Distance |
|---|---|---|---|
| Gosford Park Children'S Centre | Children's Centre | 0.15 KM | |
| Gosford Park Primary School | Community School | Good | 0.15 KM |
| Summit School | Other Independent Special School | 0.47 KM | |
| Blue Coat Church Of England School And Music College | Academy Converter | Good | 0.68 KM |
| Southfields Primary School | Community School | Good | 0.68 KM |
Images
Nearby Streets
| Name | Average Price | Average Sqft | Distance |
|---|---|---|---|
| Sky Blue Way | £ 0 | 0 | 0.00 KM |
| Vernon Close | £ 0 | 0 | 0.00 KM |
| Spring Close | £ 0 | 0 | 0.00 KM |
| St Michael's Road | £ 0 | 0 | 0.00 KM |
| Parkfield Close | £ 0 | 0 | 0.00 KM |
Nearby Transport
| Name | NLC | TLC | Distance |
|---|---|---|---|
| Coventry | 1030 | COV | 2.58 KM |
| Coventry Arena | 7416 | CAA | 4.71 KM |
| Canley | 1129 | CNL | 6.34 KM |
| Bedworth | 1165 | BEH | 8.60 KM |
Nearby Listings
| Address | Price | Type | Score | Distance |
|---|---|---|---|---|
| St. Georges Road, Coventry, West Midlands, CV1 | £ 165,000 | BUY | 5 / 10 | 0.00 KM |
| St. Georges Road, Stoke, Coventry | £ 140,000 | BUY | Unknown | 0.00 KM |
| St. Georges Road, Coventry | £ 165,000 | BUY | Unknown | 0.00 KM |
| St Georges Road, Stoke, Coventry | £ 225,000 | BUY | 5 / 10 | 0.00 KM |
| St. Georges Road, Coventry * FULLY LET AT £1620pcm * | £ 220,000 | BUY | 5 / 10 | 0.04 KM |
Nearby Properties
| Address | Price | Distance |
|---|---|---|
| 41 St Georges Road | £ 185,000 | 0.00 KM |
| 89 St Georges Road | £ 97,000 | 0.00 KM |
| 75 St Georges Road | £ 98,500 | 0.00 KM |
| 103 St Georges Road | £ 20,400 | 0.00 KM |
| 9 St Georges Road | £ 115,000 | 0.00 KM |