Compton Dundon, Somerton
HO

Compton Dundon, Somerton

By holland & odam

£ 625,000

Reviews

4 out of 5 stars

holland & odam says ..

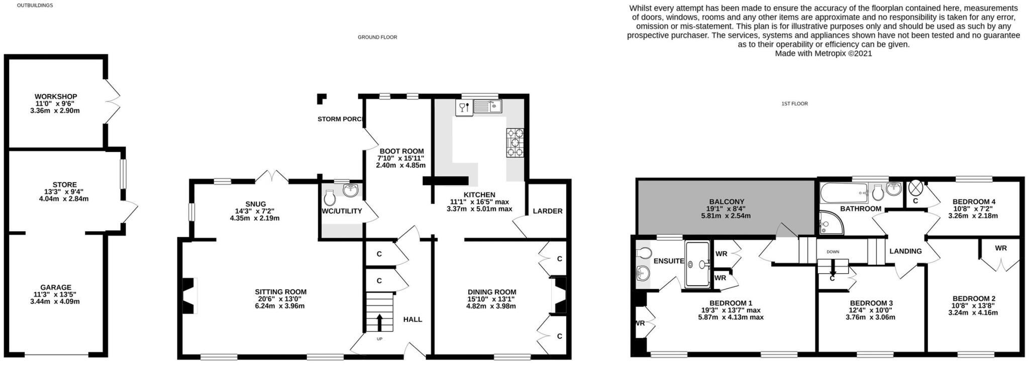
A beautifully presented former farmhouse, constructed of Blue Lias natural stone with annexe potential, set in a generous and well-established half-acre plot. Wheal Eliza is a charming semi-detached former farmhouse that seamlessly combines character and comfort. Offering spacious and versatile a...

Property Oracle says ..

Therefore, we give this property 8 / 10. *Disclaimer: This is our option and does constitute a recommendation or financial advice. Do your own research. *

Price
8
Condition
8
Location
7
Land
9
Bedrooms
0
Bathrooms
0
Sqft (est)
2,028.03

The heatmap indicates the level of crime in the area. The color of the heatmap indicates the crime severity and recency.

Metrics Year-on-Year

Average area value
1,000,000.00 £
Increased by 113.64 %
from 468,087.00 £
Est sale value
861,912.75 £
Increased by 66.02 %
from 519,175.68 £
Average area rental value
1,063.00 £/mo
Decreased by 28.32 %
from 1,483.00 £/mo
Est letting value
0.00 £/mo
from 0.00 £/mo
Est rental Yield
1.28 %
Decreased by 66.32 %
from 3.80 %
Crime Rate
0.00 %
from 0.00 %

Agent Activity

  • holland & odam created the listing.

Nearby Schools

NameTypeOfstedDistance
Compton Dundon SchoolOther Independent Special SchoolGood1.46 KM
Avalon SchoolCommunity Special SchoolGood3.25 KM
Street BuildingChildren's Centre Linked Site3.33 KM
Millfield SchoolOther Independent School3.33 KM
Brookside Community Primary SchoolAcademy ConverterGood3.39 KM

Images

Front Elevation Garden Bedroom Kitchen Kitchen Sitting Room Sitting Room Fireplace Dining Room Snug Boot Room Garage Utility Room Hallway Master Bedroom Master En-suite Balcony Bedroom Bathroom Garden Rear Elevation Rear Elevation Patio Garden Garden Rear Garden Greenhouse Rear Garden Photo 28 Photo 29 Front Elevation Garage Garden Plot Garden Garden Garden Garden Location

Nearby Streets

NameAverage PriceAverage SqftDistance
Home Field Close £ 000.00 KM

Nearby Listings

AddressPriceTypeScoreDistance
Compton Dundon, Somerton £ 625,000BUY8 / 100.00 KM
Castlebrook, Compton Dundon, Somerton £ 400,000BUY7 / 100.06 KM
Compton Dundon, Somerton £ 450,000BUY6 / 100.06 KM
Eco-home plot in Compton Dundon, Somerton £ 500,000BUY7 / 100.10 KM
Eco-home plot in Compton Dundon, Somerton £ 300,000BUY6 / 100.10 KM

Nearby Properties

AddressPriceDistance
Metcalfe House £ 435,0000.07 KM
Compton House £ 320,0000.07 KM
Crosslands £ 350,0000.07 KM
Compton Randle £ 650,0000.14 KM
Brook Barn Cottage £ 266,5000.14 KM