Julie Philpot says ..
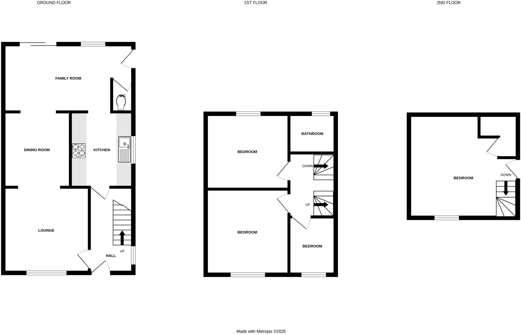
OPEN DAY SATURDAY 26 JULY - 13.00 - 15.00 - CALL TO BOOK YOUR VIEWING APPT TIME A substantially extended semi detached family home in a popular location with a delightful, sunny, private and large rear garden plus parking to the front and rear. The accommodation provides large and flexible living...
Property Oracle says ..
Therefore, we give this property 7 / 10. *Disclaimer: This is our option and does constitute a recommendation or financial advice. Do your own research. *
- Price
- 7
- Condition
- 6
- Location
- 8
- Land
- 8
- Bedrooms
- 4
- Bathrooms
- 1
- Sqft (est)
- 1,333.00
The heatmap indicates the level of crime in the area. The color of the heatmap indicates the crime severity and recency.
Metrics Year-on-Year
- Average area value
- 450,680.00 £Increased by 2.66 %
- Est sale value
- 627,843.00 £Increased by 11.61 %
- Average area rental value
- 1,290.00 £/moIncreased by 8.77 %
- Est letting value
- 1,333.00 £/moUnchanged by 0.00 %
- Est rental Yield
- 3.43 %Increased by 5.86 %
- Crime Rate
- 15.00 %Unchanged by 0.00 %
from 438,987.00 £
from 562,526.00 £
from 1,186.00 £/mo
from 1,333.00 £/mo
from 3.24 %
from 15.00 %
Agent Activity
Julie Philpot created the listing.
Nearby Schools
| Name | Type | Ofsted | Distance |
|---|---|---|---|
| Crackley Hall School | Other Independent School | 0.45 KM | |
| Park Hill Junior School | Community School | Good | 1.13 KM |
| Kenilworth School And Sixth Form | Academy Converter | 1.44 KM | |
| St Nicholas Cofe Primary School | Voluntary Controlled School | Good | 1.70 KM |
| Thorns Community Infant School | Community School | Good | 1.88 KM |
Images
Nearby Streets
| Name | Average Price | Average Sqft | Distance |
|---|---|---|---|
| Arbourfields Close | £ 0 | 0 | 0.00 KM |
| Dalebrook Place | £ 0 | 0 | 0.00 KM |
| Stoneleigh Avenue | £ 0 | 0 | 0.00 KM |
| Field Close | £ 0 | 0 | 0.00 KM |
| Glendale Avenue | £ 0 | 0 | 0.00 KM |
Nearby Transport
| Name | NLC | TLC | Distance |
|---|---|---|---|
| Kenilworth | 7985 | KNW | 1.91 KM |
| Canley | 1129 | CNL | 4.97 KM |
| Tile Hill | 1035 | THL | 5.43 KM |
| Coventry | 1030 | COV | 7.42 KM |
| Warwick | 4600 | WRW | 8.17 KM |
Nearby Listings
| Address | Price | Type | Score | Distance |
|---|---|---|---|---|
| Woodland Road, Kenilworth | £ 490,000 | BUY | 7 / 10 | 0.00 KM |
| Woodland Road, Kenilworth, CV8 | £ 630,000 | BUY | 7 / 10 | 0.07 KM |
| Leagh Close, Kenilworth, CV8 | £ 350,000 | BUY | 7 / 10 | 0.07 KM |
| Leagh Close, Kenilworth | £ 380,000 | BUY | 6 / 10 | 0.07 KM |
| Leagh Close, Kenilworth, CV8 | £ 375,000 | BUY | Unknown | 0.09 KM |
Nearby Properties
| Address | Price | Distance |
|---|---|---|
| 8 Leagh Close | £ 286,105 | 0.07 KM |
| 16 Leagh Close | £ 295,000 | 0.07 KM |
| 7 Leagh Close | £ 360,000 | 0.07 KM |
| 6 Leagh Close | £ 373,000 | 0.07 KM |
| 11 Leagh Close | £ 300,000 | 0.07 KM |