Dexters says ..
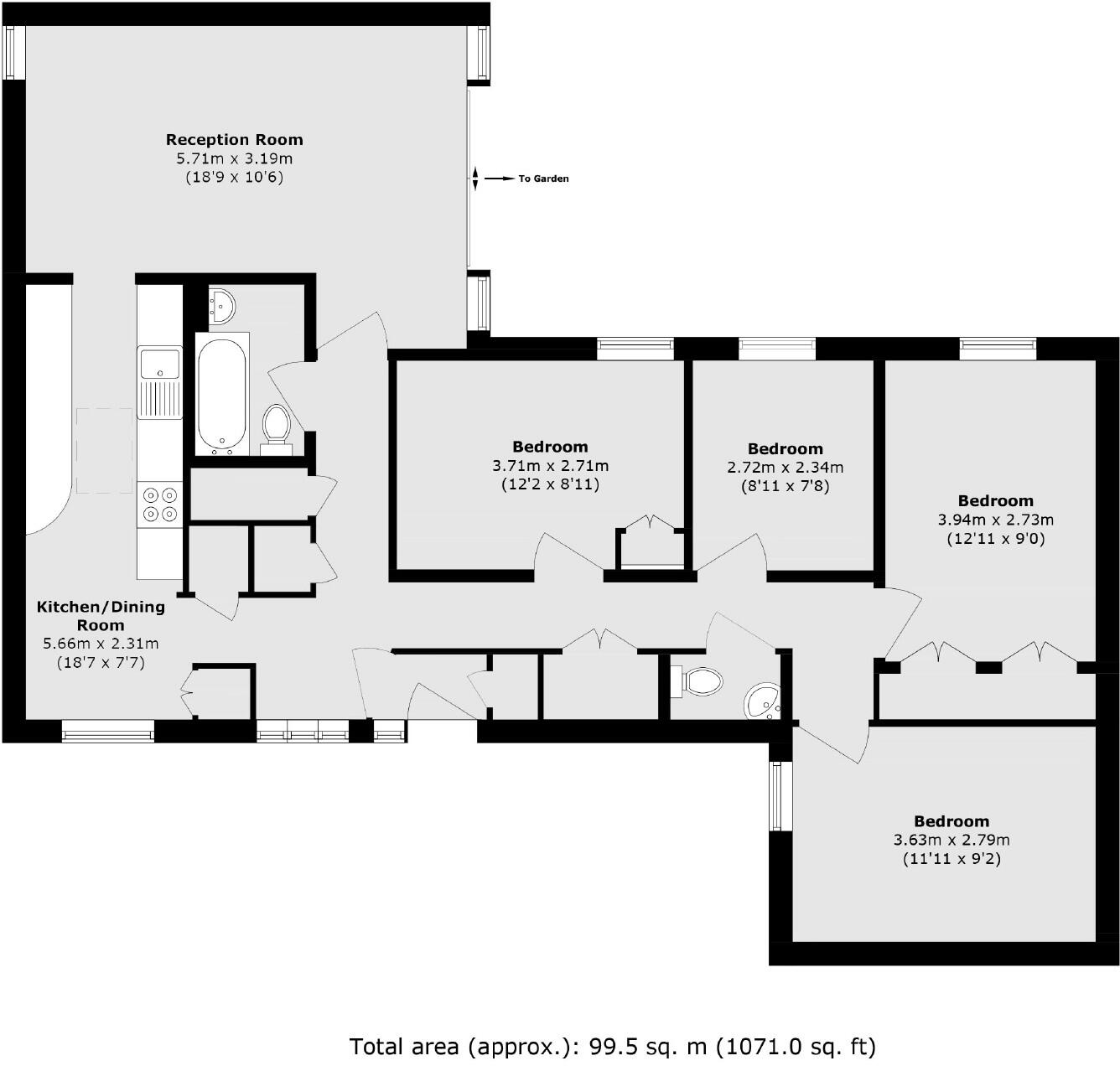
A four double bedroom bungalow measuring over 1000 sq ft within the sought after Trowbridge Estate. The property has a secluded south east facing private garden, galley kitchen, ample storage and private entrance. This property is being offered chain free.
Property Oracle says ..
Therefore, we give this property 6 / 10. *Disclaimer: This is our option and does constitute a recommendation or financial advice. Do your own research. *
- Price
- 6
- Condition
- 5
- Location
- 7
- Land
- 6
- Bedrooms
- 4
- Bathrooms
- 2
- Sqft (est)
- 1,071.01
The heatmap indicates the level of crime in the area. The color of the heatmap indicates the crime severity and recency.
Metrics Year-on-Year
- Average area value
- 465,625.00 £Decreased by 23.81 %
- Est sale value
- 634,037.92 £Decreased by 23.12 %
- Average area rental value
- 2,831.00 £/moIncreased by 5.44 %
- Est letting value
- 3,213.03 £/moUnchanged by 0.00 %
- Est rental Yield
- 7.30 %Increased by 38.52 %
- Crime Rate
- 7.00 %Unchanged by 0.00 %
from 611,158.00 £
from 824,677.70 £
from 2,685.00 £/mo
from 3,213.03 £/mo
from 5.27 %
from 7.00 %
Agent Activity
Dexters created the listing.
Nearby Schools
| Name | Type | Ofsted | Distance |
|---|---|---|---|
| Gainsborough Primary School | Community School | Good | 0.22 KM |
| Mossbourne Riverside Academy | Academy Sponsor Led | Outstanding | 0.62 KM |
| Ickburgh School | Community Special School | Good | 1.05 KM |
| St. Dominic'S Catholic Primary School | Voluntary Aided School | Good | 1.11 KM |
| Kingsmead Primary School | Community School | Outstanding | 1.16 KM |
Images
Nearby Streets
| Name | Average Price | Average Sqft | Distance |
|---|---|---|---|
| Meadow Close | £ 0 | 0 | 0.00 KM |
| Silk Mills Square | £ 395,000 | 0 | 0.00 KM |
| Cadogan Close | £ 0 | 0 | 0.00 KM |
| East Cross Route | £ 0 | 0 | 0.00 KM |
| East Bay Lane | £ 0 | 0 | 0.00 KM |
Nearby Transport
| Name | NLC | TLC | Distance |
|---|---|---|---|
| Hackney Wick | 6978 | HKW | 0.46 KM |
| Homerton | 6979 | HMN | 1.59 KM |
| Stratford International | 7222 | SFA | 2.13 KM |
| Lea Bridge | 6927 | LEB | 2.46 KM |
| Stratford | 6969 | SRA | 2.76 KM |
Nearby Listings
| Address | Price | Type | Score | Distance |
|---|---|---|---|---|
| Inglesham Walk, Homerton | £ 750,000 | BUY | 6 / 10 | 0.00 KM |
| Brinkworth Way, Hackney Wick, London, E9 | £ 825,000 | BUY | 6 / 10 | 0.09 KM |
| Chisledon Walk, Hackney | £ 900,000 | BUY | 8 / 10 | 0.10 KM |
| Brinkworth Way, Hackney Wick, E9 | £ 700,000 | BUY | 5 / 10 | 0.12 KM |
| Chisledon Walk, London E9 | £ 700,000 | BUY | 6 / 10 | 0.13 KM |
Nearby Properties
| Address | Price | Distance |
|---|---|---|
| 7 Inglesham Walk | £ 755,000 | 0.00 KM |
| 4 Inglesham Walk | £ 340,000 | 0.00 KM |
| 3 Inglesham Walk | £ 725,000 | 0.00 KM |
| 12 Inglesham Walk | £ 347,000 | 0.00 KM |
| 46 Osborne Road | £ 475,000 | 0.03 KM |