holland & odam says ..
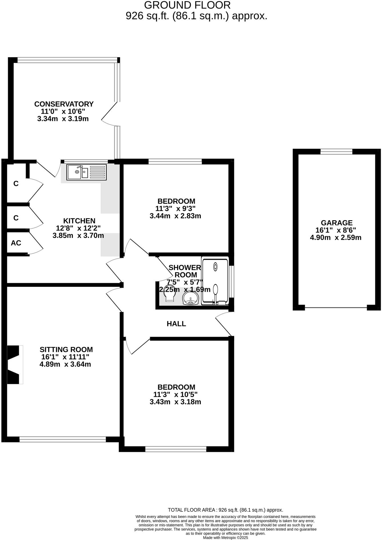
Offered to the market with no onward chain and vacant possession, this neatly presented two-bedroom semi-detached bungalow provides an excellent opportunity for downsizers, first-time buyers, or those seeking a peaceful retreat. Well maintained throughout, the home offers comfortable single-leve...
Property Oracle says ..
Therefore, we give this property 5 / 10. *Disclaimer: This is our option and does constitute a recommendation or financial advice. Do your own research. *
- Price
- 5
- Condition
- 6
- Location
- 7
- Land
- 5
- Bedrooms
- 2
- Bathrooms
- 1
- Sqft (est)
- 864.60
The heatmap indicates the level of crime in the area. The color of the heatmap indicates the crime severity and recency.
Metrics Year-on-Year
- Average area value
- 211,990.00 £Decreased by 57.21 %
- Est sale value
- 254,192.40 £Decreased by 9.82 %
- Average area rental value
- 1,750.00 £/moIncreased by 95.75 %
- Est letting value
- 1,729.20 £/mo
- Est rental Yield
- 9.91 %Increased by 356.68 %
- Crime Rate
- 10.00 %Unchanged by 0.00 %
from 495,407.00 £
from 281,859.60 £
from 894.00 £/mo
from 0.00 £/mo
from 2.17 %
from 10.00 %
Agent Activity
holland & odam created the listing.
Nearby Schools
| Name | Type | Ofsted | Distance |
|---|---|---|---|
| Hindhayes Infant School | Community School | Good | 0.40 KM |
| Elmhurst Junior School | Community School | Requires improvement | 0.80 KM |
| Millfield School | Other Independent School | 1.01 KM | |
| Strode College | Further Education | Outstanding | 1.21 KM |
| Crispin School Academy | Academy Converter | Good | 1.23 KM |
Images
Nearby Streets
| Name | Average Price | Average Sqft | Distance |
|---|---|---|---|
| Portway | £ 0 | 0 | 0.00 KM |
| Oriel Road | £ 0 | 0 | 0.00 KM |
| Portway Crescent | £ 729,950 | 0 | 0.00 KM |
| Park Road | £ 0 | 0 | 0.00 KM |
| Beech Road | £ 0 | 0 | 0.00 KM |
Nearby Listings
| Address | Price | Type | Score | Distance |
|---|---|---|---|---|
| Seymour Road, Street | £ 299,950 | BUY | 5 / 10 | 0.00 KM |
| Seymour Road, Street | £ 300,000 | BUY | 6 / 10 | 0.04 KM |
| Seymour Road, Street | £ 385,000 | BUY | 6 / 10 | 0.11 KM |
| A unique opportunity to create a dream home on the edge of Street | £ 495,000 | BUY | 5 / 10 | 0.14 KM |
| A unique opportunity to create a dream home on the edge of Street | £ 495,000 | BUY | 5 / 10 | 0.14 KM |
Nearby Properties
| Address | Price | Distance |
|---|---|---|
| 26 Portway | £ 452,500 | 0.04 KM |
| Medlar Cottage | £ 31,800 | 0.04 KM |
| 20 Portway | £ 285,000 | 0.04 KM |
| 24 Portway | £ 390,000 | 0.04 KM |
| Meadow End | £ 432,000 | 0.04 KM |