SE
Robin Hood Crescent, Knaphill, Woking, Surrey, GU21
By Seymours Estate Agents
£ 345,000
Reviews
3 out of 5 stars
Seymours Estate Agents says ..
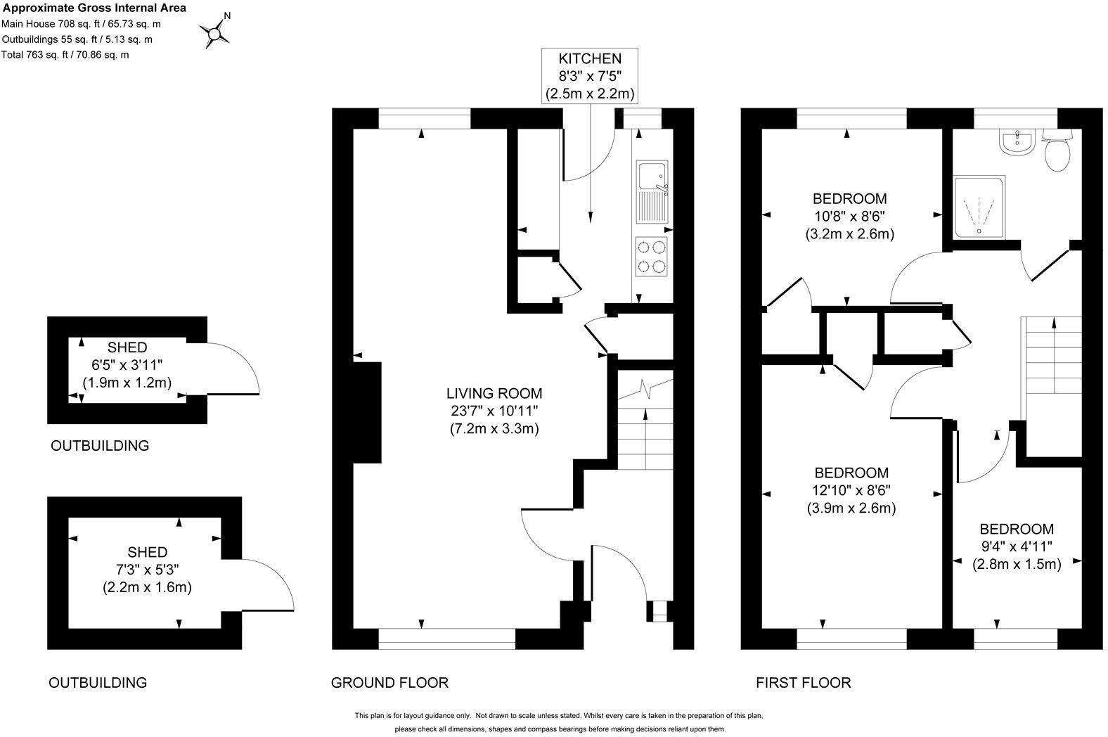
This end of terrace home is located in popular cul de sac in Knaphill and is offered to the market with no onward chain. The property requires modernisation throughout presenting the ideal opportunity for those looking to put their own stamp on somewhere. The existing accommodation comprises thre...
Property Oracle says ..
Therefore, we give this property 6 / 10. *Disclaimer: This is our option and does constitute a recommendation or financial advice. Do your own research. *
- Price
- 7
- Condition
- 3
- Location
- 7
- Land
- 7
- Bedrooms
- 3
- Bathrooms
- 1
- Sqft (est)
- 621.29
The heatmap indicates the level of crime in the area. The color of the heatmap indicates the crime severity and recency.
Metrics Year-on-Year
- Average area value
- 586,400.00 £Increased by 18.76 %
- Est sale value
- 295,734.04 £Increased by 6.01 %
- Average area rental value
- 2,150.00 £/moIncreased by 9.47 %
- Est letting value
- 621.29 £/moUnchanged by 0.00 %
- Est rental Yield
- 4.40 %Decreased by 7.76 %
- Crime Rate
- 2.00 %Unchanged by 0.00 %
from 493,776.00 £
from 278,959.21 £
from 1,964.00 £/mo
from 621.29 £/mo
from 4.77 %
from 2.00 %
Agent Activity
Seymours Estate Agents marked this listing as sold.
Seymours Estate Agents created the listing.
Nearby Schools
| Name | Type | Ofsted | Distance |
|---|---|---|---|
| St John'S Primary School | Academy Sponsor Led | Requires improvement | 0.34 KM |
| St John'S Primary School And Sure Start Children'S Centre | Children's Centre | 0.34 KM | |
| St Hugh Of Lincoln Catholic Primary School | Academy Converter | Good | 0.87 KM |
| The Winston Churchill School A Specialist Sports College | Foundation School | Good | 0.92 KM |
| The Oaktree School | Academy Converter | 0.97 KM |
Images
Nearby Streets
| Name | Average Price | Average Sqft | Distance |
|---|---|---|---|
| Beechwood Close | £ 0 | 0 | 0.00 KM |
| Oakway | £ 475,000 | 0 | 0.00 KM |
| Elmgrove Close | £ 425,000 | 0 | 0.00 KM |
| Robin Hood Roundabout cycle path | £ 0 | 0 | 0.00 KM |
| Lockfield Drive cycle path | £ 0 | 0 | 0.00 KM |
Nearby Transport
| Name | NLC | TLC | Distance |
|---|---|---|---|
| Brookwood | 5687 | BKO | 3.54 KM |
| Worplesdon | 5686 | WPL | 4.29 KM |
| Woking | 5685 | WOK | 5.58 KM |
| Longcross | 5674 | LNG | 7.55 KM |
| Sunningdale | 5671 | SNG | 8.64 KM |
Nearby Listings
| Address | Price | Type | Score | Distance |
|---|---|---|---|---|
| Robin Hood Crescent, Knaphill, Woking, Surrey, GU21 | £ 345,000 | BUY | 6 / 10 | 0.00 KM |
| Robin Hood Crescent, Knaphill, Woking, Surrey, GU21 | £ 525,000 | BUY | 7 / 10 | 0.02 KM |
| Robin Hood Crescent, Knaphill, Woking, GU21 | £ 417,500 | BUY | 6 / 10 | 0.02 KM |
| West End Village, Nr Woking | £ 975,000 | BUY | 7 / 10 | 0.04 KM |
| Robin Hood Crescent, Knaphill, Woking, Surrey, GU21 | £ 425,000 | BUY | 7 / 10 | 0.06 KM |
Nearby Properties
| Address | Price | Distance |
|---|---|---|
| 12 Robin Hood Crescent | £ 355,000 | 0.01 KM |
| 8 Robin Hood Crescent | £ 237,500 | 0.01 KM |
| 16 Robin Hood Crescent | £ 310,000 | 0.01 KM |
| 36 Robin Hood Crescent | £ 242,000 | 0.01 KM |
| 26 Robin Hood Crescent | £ 355,000 | 0.01 KM |