Islwyn Street, ABERCARN, NP114SR
By Cariad Property
£ 120,000
Reviews
3 out of 5 stars
Cariad Property says ..
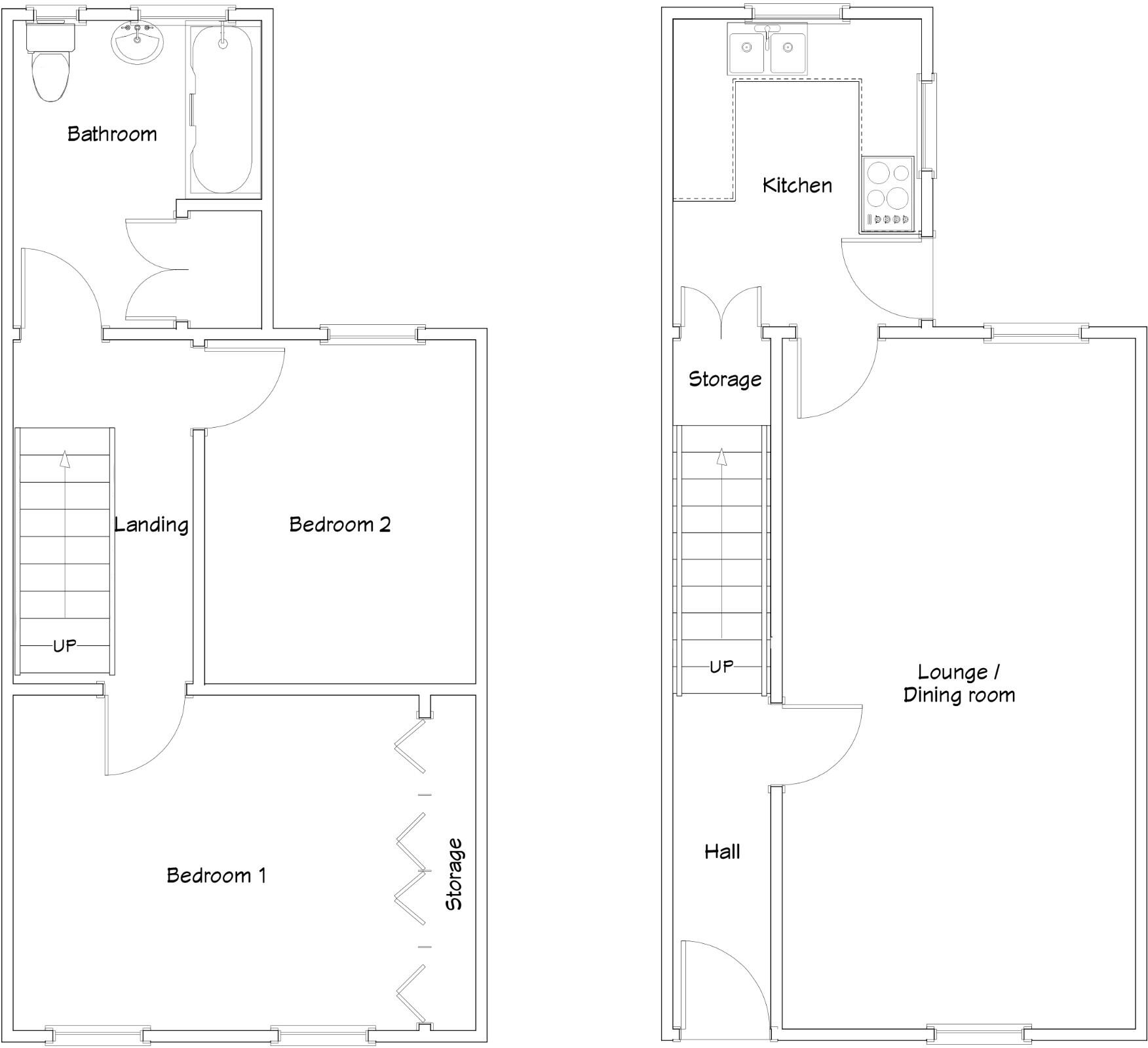
SIMPLY PERFECT FIRST TIME HOME! Adorable stone cottage, village position, two double bedrooms, spacious lounge/diner, large bathroom, modern kitchen, no chain, it could be your real soon.
Property Oracle says ..
This is a two-bedroom terraced house located on Woodland Terrace, Abercarn. The property offers 581.14 sqft of living space and includes one bathroom. The house appears to be in generally good condition, with a modern kitchen and bathroom. While the outdoor space is limited, the property is situated within a reasonable distance of local schools and transportation links. The asking price of £120,000 seems competitive for the area, making it an attractive option for first-time buyers or investors. The property retains some traditional features while incorporating modern updates.
Therefore, we give this property 6 / 10. *Disclaimer: This is our option and does constitute a recommendation or financial advice. Do your own research. *
- Price
- 8
- Condition
- 7
- Location
- 6
- Land
- 4
- Bedrooms
- 2
- Bathrooms
- 1
- Sqft (est)
- 581.14
The heatmap indicates the level of crime in the area. The color of the heatmap indicates the crime severity and recency.
Metrics Year-on-Year
- Average area value
- 186,686.00 £Decreased by 9.88 %
- Est sale value
- 44,166.64 £Decreased by 70.43 %
- Average area rental value
- 907.00 £/moIncreased by 11.98 %
- Est letting value
- 0.00 £/moDecreased by 100.00 %
- Est rental Yield
- 5.83 %Increased by 24.31 %
- Crime Rate
- 38.00 %Unchanged by 0.00 %
Agent Activity
Cariad Property created the listing.
Nearby Schools
| Name | Type | Ofsted | Distance |
|---|---|---|---|
| Y.G. Cwm Gwyddon | Welsh Establishment | 0.76 KM | |
| Abercarn Primary School | Welsh Establishment | 0.82 KM | |
| Newbridge School | Welsh Establishment | 1.55 KM | |
| Cwmcarn Primary School | Welsh Establishment | 2.07 KM | |
| Tynewydd Primary School | Welsh Establishment | 2.20 KM |
Images
Nearby Streets
| Name | Average Price | Average Sqft | Distance |
|---|---|---|---|
| Royal Close | £ 240,000 | 0 | 0.00 KM |
| Pant-Y-Resk Road | £ 270,000 | 0 | 0.00 KM |
| High Street | £ 0 | 0 | 0.00 KM |
| Hafod Fach View | £ 270,000 | 0 | 0.00 KM |
| Woodland Drive | £ 0 | 0 | 0.00 KM |
Nearby Transport
| Name | NLC | TLC | Distance |
|---|---|---|---|
| Newbridge | 9919 | NBE | 1.72 KM |
| Crosskeys | 9902 | CKY | 3.62 KM |
| Llanhilleth | 9916 | LTH | 5.50 KM |
| Risca And Pontymister | 9920 | RCA | 7.18 KM |
| Hengoed | 4028 | HNG | 9.46 KM |
Nearby Listings
| Address | Price | Type | Score | Distance |
|---|---|---|---|---|
| Islwyn Street, ABERCARN, NP114SR | £ 120,000 | BUY | 6 / 10 | 0.00 KM |
| Islwyn Street, Abercarn, Newport, NP11 | £ 150,000 | BUY | 5 / 10 | 0.01 KM |
| Islwyn Street, Abercarn, NP11 | £ 60,000 | BUY | 5 / 10 | 0.04 KM |
| Troed-Y-Rhiw, NEWPORT | £ 225,000 | BUY | 7 / 10 | 0.10 KM |
| Woodland Terrace, Abercarn, Newport | £ 180,000 | BUY | 7 / 10 | 0.11 KM |
Nearby Properties
| Address | Price | Distance |
|---|---|---|
| 5 Islwyn Street | £ 56,500 | 0.00 KM |
| 39 Islwyn Street | £ 110,000 | 0.00 KM |
| 40 Islwyn Street | £ 111,380 | 0.00 KM |
| 48 Islwyn Street | £ 148,000 | 0.00 KM |
| 4 Islwyn Street | £ 70,000 | 0.00 KM |