Towngate, Eccleston, PR7 5QR
By Maria B Evans Estate Agents
£ 270,000
Reviews
2 out of 5 stars
Maria B Evans Estate Agents says ..
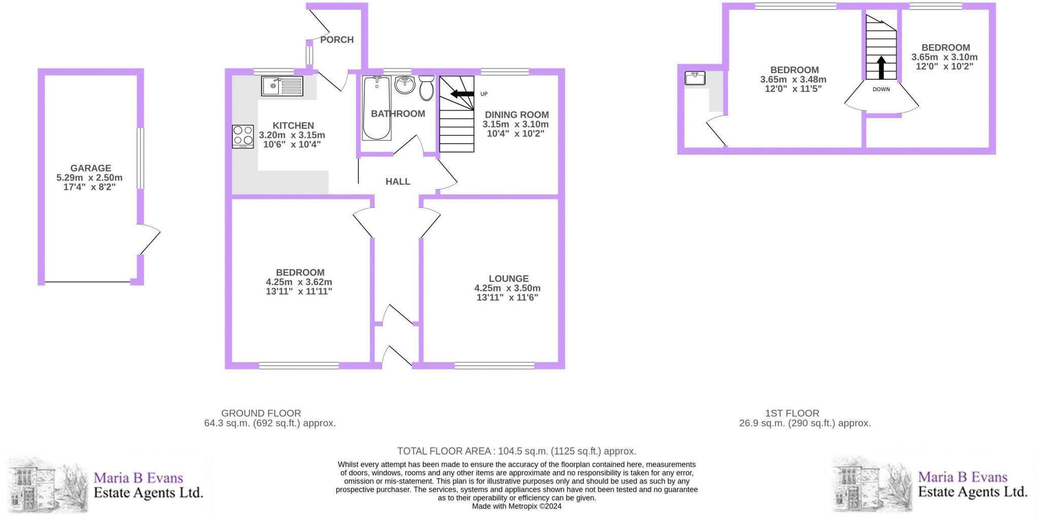
Set beyond a low retaining wall with inset timber double gates, this attractive, detached and well-maintained three-bedroom residence has a neat resin driveway providing parking for three to four cars and leads to a detached brick-built single garage with up-and-over door, power and light, and do...
Property Oracle says ..
This three-bedroom detached house in Eccleston, Lancashire, is presented in a clean and well-maintained state, although it shows a degree of age reflected in the interior décor. The property benefits from a good location, close to local amenities including well-regarded primary schools. Transport links to nearby towns are also available. While the property’s exterior is tidy, the photographs reveal an interior that would benefit from some modernisation to enhance its appeal. The garden is of modest size, primarily paved, providing an outdoor space but not a large amount of land. Overall, the property presents a solid, family-friendly home in a desirable location but would benefit from updating to align with contemporary standards. The asking price is reasonable relative to comparable properties in the vicinity, though limitations in the availability of precise price per square foot figures prevent a more definitive conclusion on its value for money.
Therefore, we give this property 5 / 10. *Disclaimer: This is our option and does constitute a recommendation or financial advice. Do your own research. *
- Price
- 7
- Condition
- 5
- Location
- 7
- Land
- 4
- Bedrooms
- 3
- Bathrooms
- 1
- Sqft (est)
- 1,124.83
The heatmap indicates the level of crime in the area. The color of the heatmap indicates the crime severity and recency.
Metrics Year-on-Year
- Average area value
- 445,205.00 £Decreased by 3.69 %
- Est sale value
- 725,515.35 £Increased by 20.34 %
- Average area rental value
- 1,836.00 £/moIncreased by 4.79 %
- Est letting value
- 2,249.66 £/moUnchanged by 0.00 %
- Est rental Yield
- 4.95 %Increased by 8.79 %
- Crime Rate
- 11.00 %Unchanged by 0.00 %
Agent Activity
Maria B Evans Estate Agents created the listing.
Nearby Schools
| Name | Type | Ofsted | Distance |
|---|---|---|---|
| Eccleston Primary School | Community School | Good | 0.78 KM |
| Eccleston St Mary'S Church Of England Primary School | Voluntary Aided School | Good | 1.32 KM |
| Blossomfields Children'S Centre | Children's Centre | 1.34 KM | |
| St Peter And Paul Catholic Primary School, Mawdesley | Voluntary Aided School | Good | 3.20 KM |
| Bishop Rawstorne Church Of England Academy | Academy Converter | 3.92 KM |
Images
Nearby Streets
| Name | Average Price | Average Sqft | Distance |
|---|---|---|---|
| Ecclestone Bridge | £ 795,000 | 0 | 0.00 KM |
| Lawrence Close | £ 0 | 0 | 0.00 KM |
| Warwick Road | £ 0 | 0 | 0.00 KM |
| Ince Lane | £ 475,000 | 0 | 0.00 KM |
| Park Street | £ 0 | 0 | 0.00 KM |
Nearby Transport
| Name | NLC | TLC | Distance |
|---|---|---|---|
| Croston | 2313 | CSO | 5.20 KM |
| Euxton Balshaw Lane | 2080 | EBA | 6.88 KM |
| Leyland | 2710 | LEY | 7.35 KM |
| Parbold | 2402 | PBL | 7.91 KM |
| Appley Bridge | 2396 | APB | 8.26 KM |
Nearby Listings
| Address | Price | Type | Score | Distance |
|---|---|---|---|---|
| Towngate, Eccleston, PR7 5QR | £ 270,000 | BUY | 5 / 10 | 0.00 KM |
| Towngate, Eccleston, CHORLEY PR7 5QR | £ 220,000 | BUY | 7 / 10 | 0.03 KM |
| Towngate, Eccleston, Chorley | £ 220,000 | BUY | 7 / 10 | 0.03 KM |
| Towngate, Eccleston, PR7 5QR | £ 240,000 | BUY | 7 / 10 | 0.03 KM |
| Anchor Fields, Eccleston, PR7 5UW | £ 250,000 | BUY | Unknown | 0.06 KM |
Nearby Properties
| Address | Price | Distance |
|---|---|---|
| 14 Anchor Fields | £ 375,000 | 0.07 KM |
| 22 Anchor Fields | £ 152,000 | 0.07 KM |
| 1 Anchor Fields | £ 201,500 | 0.07 KM |
| 15 Anchor Fields | £ 315,000 | 0.07 KM |
| 20 Anchor Fields | £ 310,000 | 0.07 KM |