Strakers says ..
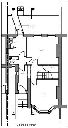
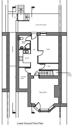
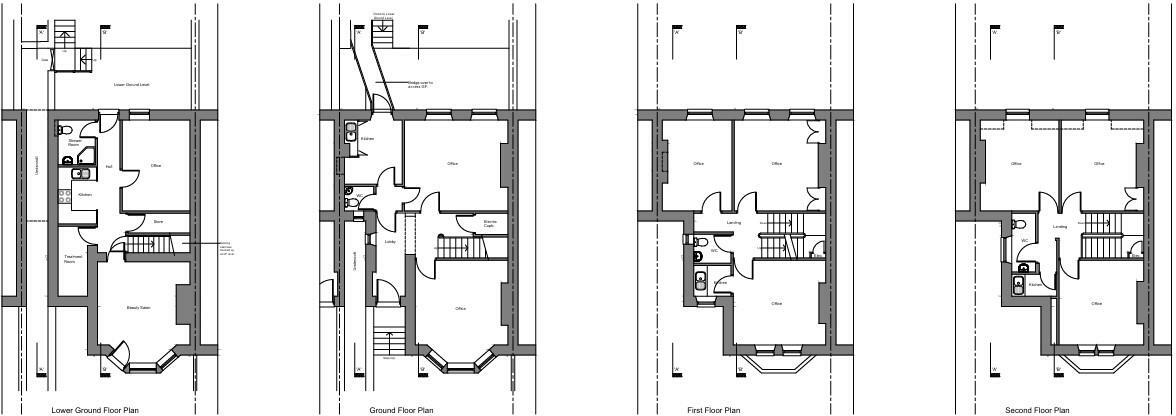
Attractive 4 storey period building which has detailed planning permission for conversion to a 9 bedroom HMO. Sought after Old Town address. Currently 3 floors of offices with nail bar on the lower ground floor. The nail bar is let on a rolling contract at £5,400pa with the remainder of ...
Property Oracle says ..
This property in Old Town, Swindon is a large, four-storey building currently configured as offices and a nail bar. The detailed planning permission for conversion into a nine-bedroom HMO makes it an attractive option for investors looking for rental income. The location in Old Town is a plus, with close proximity to schools and a railway station making it relatively convenient. However, the property requires significant modernisation. While it shows potential due to the sheer number of potential bedrooms and its location, buyers should factor in the extensive renovation costs. The pictures display a mix of well-preserved period features and areas that need attention. The external space is minimal, which is a drawback. The asking price is reasonable given the current market, but the costs of conversion and updating should be fully assessed before purchasing. A thorough survey and professional valuation are strongly recommended to confirm the price accuracy and the extent of any necessary renovations. Overall, the property presents significant upside potential for a buyer with the capital and expertise to take on the renovation project. Potential investors should perform due diligence to properly assess both the renovation costs and rental income streams before making an offer.
Therefore, we give this property 5 / 10. *Disclaimer: This is our option and does constitute a recommendation or financial advice. Do your own research. *
- Price
- 7
- Condition
- 5
- Location
- 7
- Land
- 2
- Bedrooms
- 9
- Bathrooms
- 0
- Sqft (est)
- 700.00
The heatmap indicates the level of crime in the area. The color of the heatmap indicates the crime severity and recency.
Metrics Year-on-Year
- Average area value
- 364,023.00 £Increased by 8.60 %
- Est sale value
- 288,400.00 £Increased by 57.25 %
- Average area rental value
- 1,137.00 £/moDecreased by 2.15 %
- Est letting value
- 700.00 £/mo
- Est rental Yield
- 3.75 %Decreased by 9.86 %
- Crime Rate
- 6.00 %Unchanged by 0.00 %
Agent Activity
Strakers created the listing.
Nearby Schools
| Name | Type | Ofsted | Distance |
|---|---|---|---|
| King William Street Church Of England Primary School | Academy Converter | Good | 0.19 KM |
| Lethbridge Primary School | Academy Converter | Good | 0.27 KM |
| Holy Rood Catholic Primary School | Academy Converter | Requires improvement | 0.64 KM |
| The Croft Primary School | Academy Sponsor Led | Outstanding | 0.78 KM |
| The Commonweal School | Academy Converter | Good | 1.05 KM |
Images
Nearby Streets
| Name | Average Price | Average Sqft | Distance |
|---|---|---|---|
| The Mews | £ 0 | 0 | 0.00 KM |
| Queensbury House | £ 140,000 | 0 | 0.00 KM |
| Bow Court | £ 0 | 0 | 0.00 KM |
| Acril Court | £ 0 | 0 | 0.00 KM |
| Michael's Way | £ 0 | 0 | 0.00 KM |
Nearby Transport
| Name | NLC | TLC | Distance |
|---|---|---|---|
| Swindon (Wilts) | 3333 | SWI | 1.62 KM |
Nearby Listings
| Address | Price | Type | Score | Distance |
|---|---|---|---|---|
| Bath Road, Swindon | £ 495,000 | BUY | 5 / 10 | 0.00 KM |
| Bath Road, Old Town, Swindon, Wiltshire, SN1 | £ 260,000 | BUY | 6 / 10 | 0.04 KM |
| Bath Road, Old Town, Swindon, Wiltshire, SN1 | £ 250,000 | BUY | 6 / 10 | 0.04 KM |
| Bath Road, Old Town, Swindon, Wiltshire, SN1 | £ 260,000 | BUY | 5 / 10 | 0.04 KM |
| Bath Road, Old Town, Swindon, SN1 4BF | £ 87,000 | BUY | 6 / 10 | 0.04 KM |
Nearby Properties
| Address | Price | Distance |
|---|---|---|
| 14a Bath Road | £ 200,000 | 0.07 KM |
| 14 Bath Road | £ 143,000 | 0.07 KM |
| 22b Bath Road | £ 360,000 | 0.07 KM |
| 8 The Shearings | £ 150,000 | 0.07 KM |
| 3 The Shearings | £ 180,000 | 0.07 KM |