Cresswell Road, Newbury, RG14
By Cricketts Of Berkshire
£ 275,000
Reviews
2 out of 5 stars
Cricketts Of Berkshire says ..
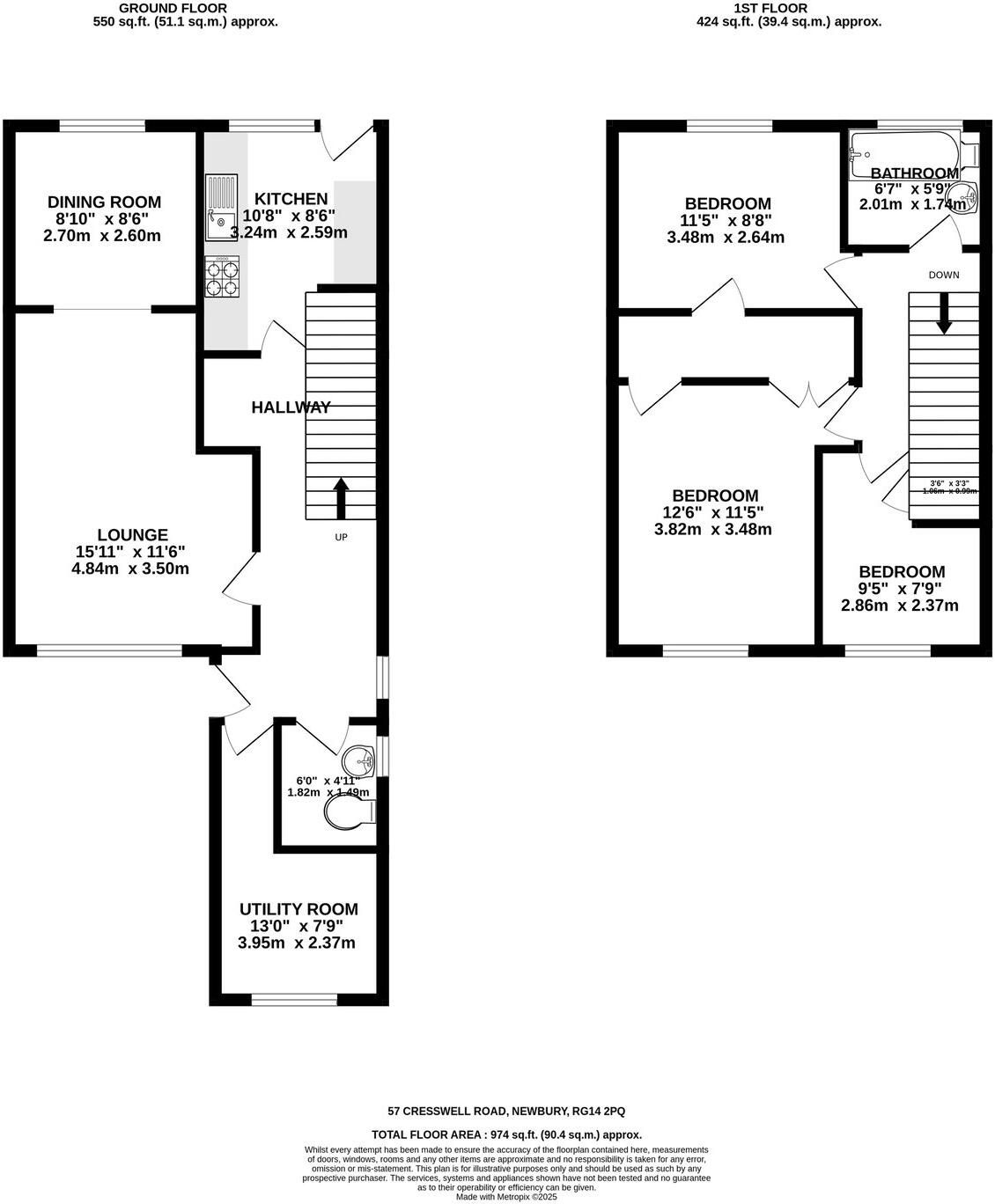
This 3-bedroom terraced home on Cresswell Road, Newbury is the perfect renovation project – offering a generous layout, garden, parking, utility room, and downstairs WC. A fantastic opportunity to create your ideal home in a great location!
Property Oracle says ..
This is a 3-bedroom terraced house in Newbury, Clay Hill. The property is in need of renovation and modernisation. The property benefits from a garden. The property is located close to local schools and amenities. The nearest train station is 1.66KM away. The property is listed for £275,000, which is below the average price for the area, this is likely due to the condition of the property.
Therefore, we give this property 5 / 10. *Disclaimer: This is our option and does constitute a recommendation or financial advice. Do your own research. *
- Price
- 7
- Condition
- 3
- Location
- 6
- Land
- 6
- Bedrooms
- 3
- Bathrooms
- 2
- Sqft (est)
- 974.00
The heatmap indicates the level of crime in the area. The color of the heatmap indicates the crime severity and recency.
Metrics Year-on-Year
- Average area value
- 348,750.00 £Increased by 3.39 %
- Est sale value
- 294,148.00 £Decreased by 15.64 %
- Average area rental value
- 1,243.00 £/moIncreased by 0.73 %
- Est letting value
- 974.00 £/moUnchanged by 0.00 %
- Est rental Yield
- 4.28 %Decreased by 2.51 %
- Crime Rate
- 24.00 %Unchanged by 0.00 %
Agent Activity
Cricketts Of Berkshire created the listing.
Nearby Schools
| Name | Type | Ofsted | Distance |
|---|---|---|---|
| Fir Tree Primary School And Nursery | Academy Sponsor Led | Requires improvement | 0.22 KM |
| Engaging Potential | Other Independent Special School | Good | 0.38 KM |
| St Joseph'S Catholic Primary School | Voluntary Aided School | Good | 2.03 KM |
| Parsons Down Junior School | Community School | Good | 2.30 KM |
| Parsons Down Infant School | Community School | Good | 2.38 KM |
Images
Nearby Streets
| Name | Average Price | Average Sqft | Distance |
|---|---|---|---|
| Alder Close | £ 0 | 0 | 0.00 KM |
| Pinder Place | £ 430,000 | 0 | 0.00 KM |
| Wyndham Road | £ 361,250 | 0 | 0.00 KM |
| Lakeview | £ 0 | 0 | 0.00 KM |
| Southdown Road | £ 425,000 | 0 | 0.00 KM |
Nearby Transport
| Name | NLC | TLC | Distance |
|---|---|---|---|
| Newbury Racecourse | 3071 | NRC | 1.66 KM |
| Newbury | 3074 | NBY | 3.18 KM |
| Thatcham | 3152 | THA | 6.02 KM |
Nearby Listings
| Address | Price | Type | Score | Distance |
|---|---|---|---|---|
| Cresswell Road, Newbury, RG14 | £ 275,000 | BUY | 5 / 10 | 0.00 KM |
| Cresswell Road, Newbury, RG14 2PQ | £ 330,000 | BUY | Unknown | 0.05 KM |
| Turnpike Road, Newbury, RG14 | £ 450,000 | BUY | 7 / 10 | 0.09 KM |
| Turnpike Road, Newbury, RG14 | £ 350,000 | BUY | 6 / 10 | 0.09 KM |
| Turnpike Road, Newbury, Berkshire, RG14 | £ 350,000 | BUY | Unknown | 0.11 KM |
Nearby Properties
| Address | Price | Distance |
|---|---|---|
| 115 Cresswell Road | £ 160,000 | 0.05 KM |
| 117 Cresswell Road | £ 217,000 | 0.05 KM |
| 43 Cresswell Road | £ 175,000 | 0.05 KM |
| 41 Cresswell Road | £ 239,950 | 0.05 KM |
| 15 Cresswell Road | £ 256,000 | 0.05 KM |