Manchester Road, Warrington, Cheshire
By Leaders Sales
£ 200,000
Reviews
2 out of 5 stars
Leaders Sales says ..
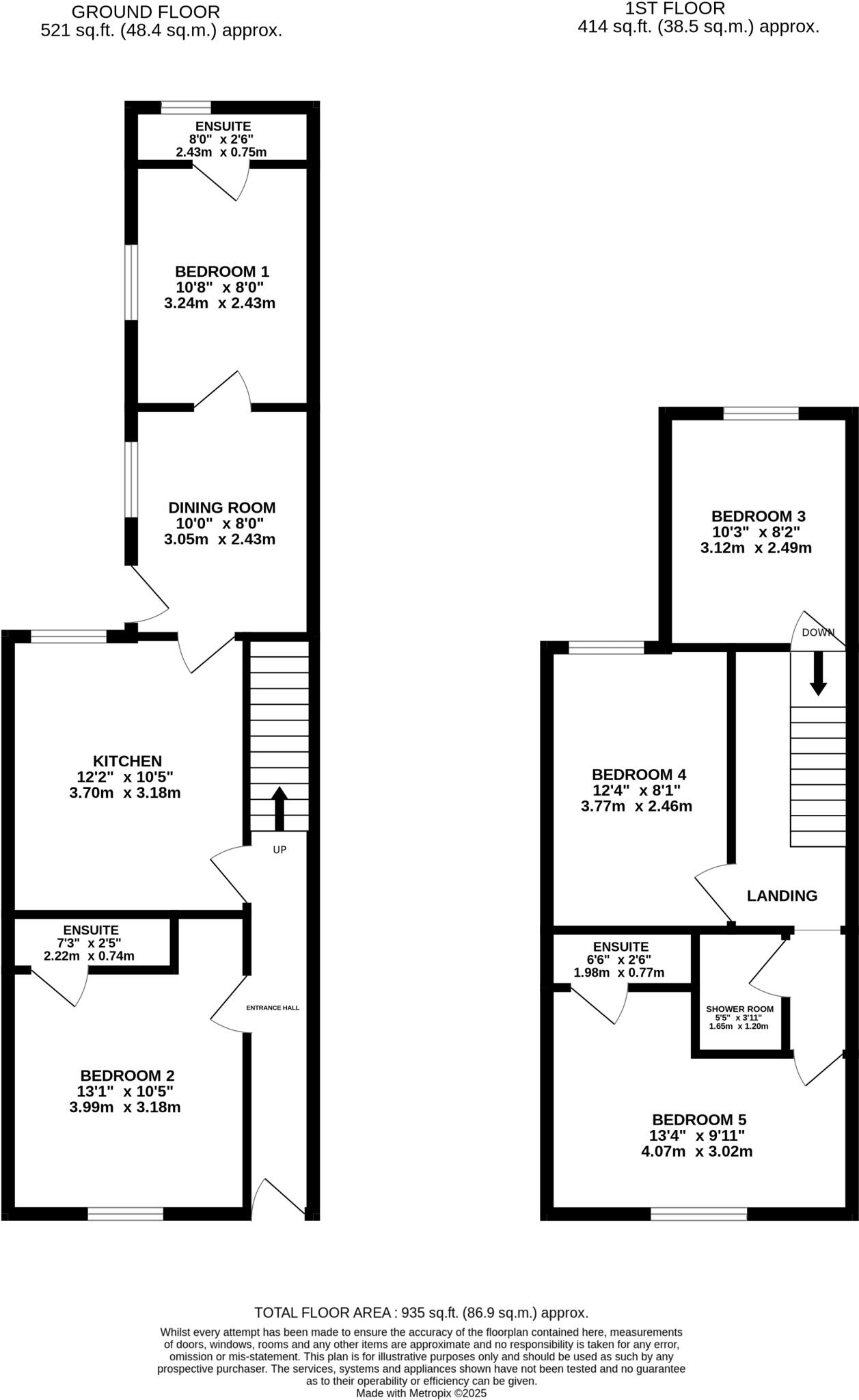
Available for sale is this five bedroom HMO property located close to Warrington town centre boasting an approx annual return of £26,600 (13.3%) The property is listed for sale as an ideal investment for those seeking a substantial return. It boasts a generous number of rooms, in...
Property Oracle says ..
This property is a 5 bedroom, 4 bathroom terraced house located on Manchester Road in Warrington, Cheshire. The property benefits from being close to several primary schools, including St Elphin’s Cofe Voluntary Aided Primary School (rated Good by Ofsted) and is within a reasonable distance of Warrington Central train station. The area has an average house price of £138,101 and an average price per sqft of £174. However, nearby comparable properties on Manchester Road range in price from £90,000 to £260,000, indicating significant price variability in the immediate vicinity. The list price of £200,000 falls within this range, but further analysis is needed to determine if it represents good value considering the property’s condition and size. The property itself is relatively small at 261 sqft, with a plot size of 935 sqft. The images suggest the property may require some modernisation or updating, which could impact its overall value. More information on the property’s condition and any potential repairs needed would be beneficial in determining a fair market value.
Therefore, we give this property 5 / 10. *Disclaimer: This is our option and does constitute a recommendation or financial advice. Do your own research. *
- Price
- 6
- Condition
- 6
- Location
- 7
- Land
- 4
- Bedrooms
- 5
- Bathrooms
- 4
- Sqft (est)
- 261.00
- Lot (est)
- 935.00
The heatmap indicates the level of crime in the area. The color of the heatmap indicates the crime severity and recency.
Metrics Year-on-Year
- Average area value
- 184,000.00 £Increased by 28.34 %
- Est sale value
- 37,323.00 £Decreased by 24.34 %
- Average area rental value
- 739.00 £/moDecreased by 11.18 %
- Est letting value
- 0.00 £/moDecreased by 100.00 %
- Est rental Yield
- 4.82 %Decreased by 30.75 %
- Crime Rate
- 5.00 %Unchanged by 0.00 %
Agent Activity
Leaders Sales created the listing.
Nearby Schools
| Name | Type | Ofsted | Distance |
|---|---|---|---|
| Oakwood Avenue Community Primary School | Academy Converter | 0.34 KM | |
| St Elphin'S (Fairfield) Cofe Voluntary Aided Primary School | Voluntary Aided School | Good | 0.46 KM |
| St Benedict'S Catholic Primary School | Voluntary Aided School | Good | 0.50 KM |
| Sunshine Children'S Centre | Children's Centre | 0.88 KM | |
| Beamont Primary School | Academy Converter | 0.93 KM |
Images
Nearby Streets
| Name | Average Price | Average Sqft | Distance |
|---|---|---|---|
| Arnold Street | £ 0 | 0 | 0.00 KM |
| Ford Street | £ 249,950 | 0 | 0.00 KM |
| Manchester Road | £ 248,564 | 0 | 0.00 KM |
| Elmwood Avenue | £ 150,000 | 0 | 0.00 KM |
| Pinewood Avenue | £ 152,498 | 0 | 0.00 KM |
Nearby Transport
| Name | NLC | TLC | Distance |
|---|---|---|---|
| Warrington Central | 2390 | WAC | 2.10 KM |
| Padgate | 2387 | PDG | 2.24 KM |
| Warrington Bank Quay | 2384 | WBQ | 3.27 KM |
| Birchwood | 2304 | BWD | 5.76 KM |
| Warrington West | 6583 | WAW | 7.02 KM |
Nearby Listings
| Address | Price | Type | Score | Distance |
|---|---|---|---|---|
| Manchester Road, Warrington, Cheshire | £ 200,000 | BUY | 5 / 10 | 0.00 KM |
| Manchester Road, Warrington, Cheshire | £ 200,000 | BUY | 5 / 10 | 0.11 KM |
| Fothergill Street, Warrington | £ 180,000 | BUY | 5 / 10 | 0.13 KM |
| Marsh House Lane, Warrington, Cheshire, WA1 | £ 190,000 | BUY | 7 / 10 | 0.14 KM |
| Marsh House Lane, Warrington, Cheshire, WA1 | £ 179,950 | BUY | 6 / 10 | 0.14 KM |
Nearby Properties
| Address | Price | Distance |
|---|---|---|
| 220 Manchester Road | £ 188,500 | 0.01 KM |
| 224 Manchester Road | £ 91,950 | 0.01 KM |
| 222 Manchester Road | £ 190,000 | 0.01 KM |
| 218 Manchester Road | £ 90,000 | 0.01 KM |
| 1 Marsh Street | £ 91,950 | 0.07 KM |