RI
Wharf Lane, Kempsford, Fairford, GL7
By Richard James
£ 445,000
Reviews
3 out of 5 stars
Richard James says ..
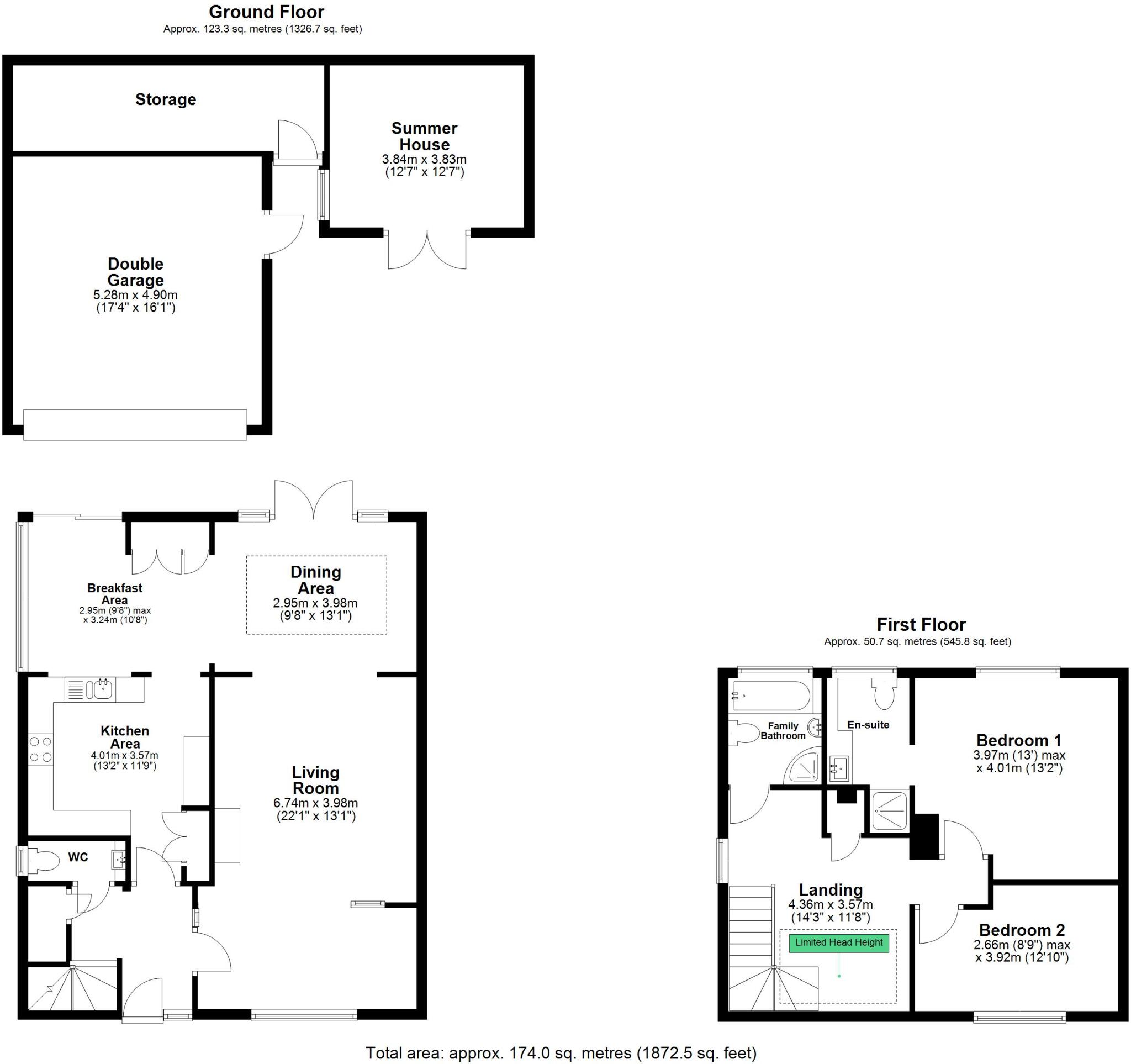
Charming two-bedroom detached home on a peaceful private lane in Kempsford. Set on a generous plot with double garage, secluded garden, and flexible living space. Features include ensuite, modern boiler, and outbuildings—offering superb potential in a sought-after village location.
Property Oracle says ..
Therefore, we give this property 7 / 10. *Disclaimer: This is our option and does constitute a recommendation or financial advice. Do your own research. *
- Price
- 8
- Condition
- 7
- Location
- 7
- Land
- 7
- Bedrooms
- 2
- Bathrooms
- 2
- Sqft (est)
- 1,560.03
The heatmap indicates the level of crime in the area. The color of the heatmap indicates the crime severity and recency.
Metrics Year-on-Year
- Average area value
- 523,333.00 £Decreased by 13.42 %
- Est sale value
- 638,052.27 £Decreased by 16.87 %
- Average area rental value
- 1,350.00 £/moDecreased by 0.74 %
- Est letting value
- 1,560.03 £/moUnchanged by 0.00 %
- Est rental Yield
- 3.10 %Increased by 14.81 %
- Crime Rate
- 28.00 %Unchanged by 0.00 %
from 604,470.00 £
from 767,534.76 £
from 1,360.00 £/mo
from 1,560.03 £/mo
from 2.70 %
from 28.00 %
Agent Activity
Richard James created the listing.
Nearby Schools
| Name | Type | Ofsted | Distance |
|---|---|---|---|
| Kempsford Church Of England Primary School | Voluntary Controlled School | Good | 0.77 KM |
| Fairford Church Of England Primary School | Voluntary Controlled School | Outstanding | 5.06 KM |
| Farmor'S School | Academy Converter | Good | 5.14 KM |
| St Leonard'S Church Of England Primary Academy | Academy Converter | 6.38 KM | |
| Westrop Primary & Nursery School | Community School | Good | 7.29 KM |
Images
Nearby Streets
| Name | Average Price | Average Sqft | Distance |
|---|---|---|---|
| Wharf Lane | £ 0 | 0 | 0.00 KM |
| The Grove | £ 417,500 | 0 | 0.00 KM |
| St Mary's Close | £ 700,000 | 0 | 0.00 KM |
| Ham Lane | £ 775,000 | 0 | 0.00 KM |
| Lancaster Road | £ 0 | 0 | 0.00 KM |
Nearby Listings
| Address | Price | Type | Score | Distance |
|---|---|---|---|---|
| Wharf Lane, Kempsford, Fairford, GL7 | £ 445,000 | BUY | 7 / 10 | 0.00 KM |
| High Street, Kempsford, Fairford, Gloucestershire, GL7 | £ 475,000 | BUY | Unknown | 0.07 KM |
| High Street, Kempsford, Gloucestershire | £ 650,000 | BUY | Unknown | 0.17 KM |
| John Of Gaunt Road, Kempsford, GL7 | £ 450,000 | BUY | Unknown | 0.20 KM |
| Tuckwell, Kempsford, Gloucestershire, GL7 | £ 400,000 | BUY | 7 / 10 | 0.21 KM |
Nearby Properties
| Address | Price | Distance |
|---|---|---|
| 6 The Wharfings | £ 235,000 | 0.05 KM |
| 5 The Wharfings | £ 123,000 | 0.06 KM |
| 9 Swynford Close | £ 181,000 | 0.13 KM |
| 5 Swynford Close | £ 240,000 | 0.13 KM |
| 12 Swynford Close | £ 453,000 | 0.13 KM |