Robin Hood Road, Knaphill, Woking, GU21
By Seymours Estate Agents
£ 499,950
Reviews
3 out of 5 stars
Seymours Estate Agents says ..
** LAUNCH DAY SATURDAY 17th MAY ** A generously proportioned semi-detached family home located in an extremely popular residential road with NO ONWARD CHAIN. The vibrant Knaphill high street is within easy reach as well as excellent local primary schools and Winston Churchill secondary school.
Property Oracle says ..
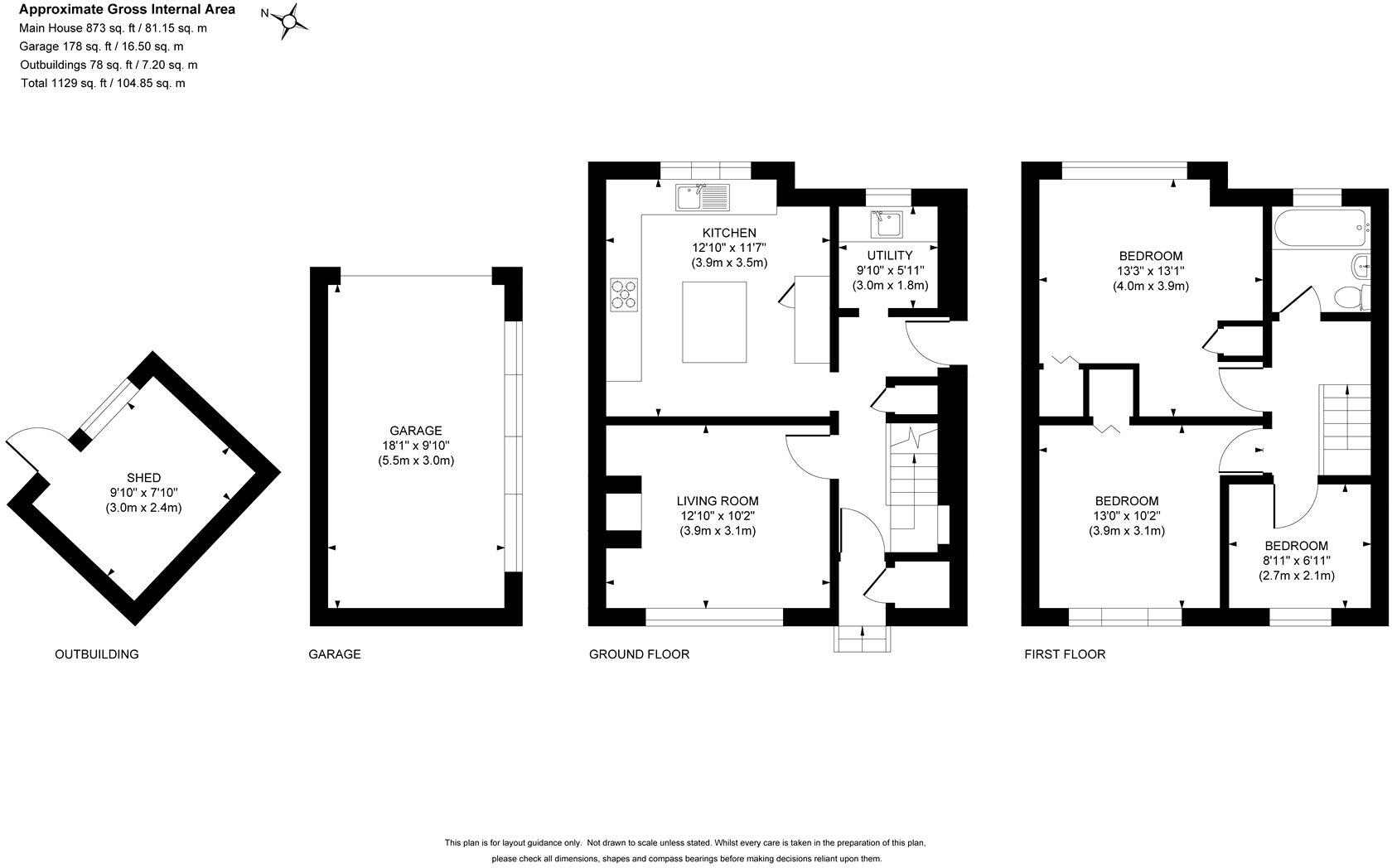
This property is a 3-bedroom semi-detached house located in Knaphill, Woking. The location benefits from being relatively close to several primary schools, with St John’s Primary School being the closest at 0.64km. The property itself appears to be in good condition, with a recently modernised kitchen and updated bathroom. The garden is of a reasonable size, although it could benefit from some landscaping. The asking price of £499,950 is slightly below the average price for the area (£511,523), and considering the property’s condition and location, it seems to be a reasonable price. However, the lack of plot size data makes a definitive statement on value difficult.
Therefore, we give this property 7 / 10. *Disclaimer: This is our option and does constitute a recommendation or financial advice. Do your own research. *
- Price
- 7
- Condition
- 8
- Location
- 7
- Land
- 6
- Bedrooms
- 3
- Bathrooms
- 1
- Sqft (est)
- 873.00
The heatmap indicates the level of crime in the area. The color of the heatmap indicates the crime severity and recency.
Metrics Year-on-Year
- Average area value
- 586,400.00 £Increased by 18.76 %
- Est sale value
- 415,548.00 £Increased by 6.01 %
- Average area rental value
- 2,150.00 £/moIncreased by 9.47 %
- Est letting value
- 873.00 £/moUnchanged by 0.00 %
- Est rental Yield
- 4.40 %Decreased by 7.76 %
- Crime Rate
- 10.00 %Unchanged by 0.00 %
Agent Activity
Seymours Estate Agents created the listing.
Nearby Schools
| Name | Type | Ofsted | Distance |
|---|---|---|---|
| St John'S Primary School And Sure Start Children'S Centre | Children's Centre | 0.64 KM | |
| St John'S Primary School | Academy Sponsor Led | Requires improvement | 0.64 KM |
| St Hugh Of Lincoln Catholic Primary School | Academy Converter | Good | 1.06 KM |
| Beaufort Primary School | Academy Converter | Good | 1.20 KM |
| The Winston Churchill School A Specialist Sports College | Foundation School | Good | 1.23 KM |
Images
Nearby Streets
| Name | Average Price | Average Sqft | Distance |
|---|---|---|---|
| Beechwood Close | £ 0 | 0 | 0.00 KM |
| Elmgrove Close | £ 425,000 | 0 | 0.00 KM |
| Oakway | £ 475,000 | 0 | 0.00 KM |
| Rose Lodge | £ 0 | 0 | 0.00 KM |
| Robin Hood Roundabout cycle path | £ 0 | 0 | 0.00 KM |
Nearby Transport
| Name | NLC | TLC | Distance |
|---|---|---|---|
| Brookwood | 5687 | BKO | 3.50 KM |
| Worplesdon | 5686 | WPL | 4.60 KM |
| Woking | 5685 | WOK | 5.78 KM |
| Longcross | 5674 | LNG | 7.34 KM |
| Sunningdale | 5671 | SNG | 8.34 KM |
Nearby Listings
| Address | Price | Type | Score | Distance |
|---|---|---|---|---|
| Robin Hood Road, Knaphill, Woking, GU21 | £ 499,950 | BUY | 7 / 10 | 0.00 KM |
| Robin Hood Road, Knaphill, Woking, Surrey, GU21 | £ 199,950 | BUY | 7 / 10 | 0.00 KM |
| Robin Hood Road, Knaphill, Woking, GU21 | £ 190,000 | BUY | Unknown | 0.03 KM |
| Barnby Road, Knaphill, Woking, Surrey, GU21 | £ 599,950 | BUY | Unknown | 0.09 KM |
| Barnby Road, Knaphill, Woking, Surrey, GU21 | £ 435,000 | BUY | 6 / 10 | 0.09 KM |
Nearby Properties
| Address | Price | Distance |
|---|---|---|
| 148 Robin Hood Road | £ 140,000 | 0.01 KM |
| 144 Robin Hood Road | £ 450,000 | 0.01 KM |
| 81a Robin Hood Road | £ 345,000 | 0.01 KM |
| 140 Robin Hood Road | £ 115,000 | 0.01 KM |
| 134 Robin Hood Road | £ 475,000 | 0.01 KM |