5/7 Piershill Terrace, Piershill, Edinburgh, EH8 7ES
Warners Solicitors logo

5/7 Piershill Terrace, Piershill, Edinburgh, EH8 7ES

By Warners Solicitors

£ 265,000

Reviews

3 out of 5 stars

Warners Solicitors says ..

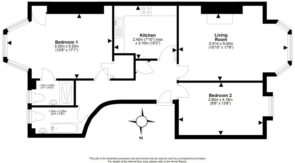
Warners are delighted to present this beautifully maintained and generously proportioned two-bedroom top floor flat, set within a traditional tenement building in the highly desirable Piershill area of Edinburgh. Ideally located to the east of the city, this property offers excellent transport li...

Property Oracle says ..

This property is a 2 bedroom, 2 bathroom flat located in Piershill, Edinburgh. The flat is in good condition and benefits from a modern kitchen and bathrooms. The property is located close to several train stations, making it convenient for commuters. The list price of £265,000 seems reasonable considering the average price per square foot in the area.

Therefore, we give this property 7 / 10. *Disclaimer: This is our option and does constitute a recommendation or financial advice. Do your own research. *

Price
7
Condition
8
Location
7
Land
7
Bedrooms
2
Bathrooms
2
Sqft (est)
613.76

The heatmap indicates the level of crime in the area. The color of the heatmap indicates the crime severity and recency.

Metrics Year-on-Year

Average area value
276,818.00 £
Increased by 3.64 %
from 267,100.00 £
Est sale value
270,668.16 £
Increased by 39.12 %
from 194,561.92 £
Average area rental value
1,163.00 £/mo
Decreased by 14.11 %
from 1,354.00 £/mo
Est letting value
613.76 £/mo
Unchanged by 0.00 %
from 613.76 £/mo
Est rental Yield
5.04 %
Decreased by 17.11 %
from 6.08 %
Crime Rate
0.00 %
from 0.00 %

Agent Activity

  • Warners Solicitors created the listing.

Images

Primary Property Image Property Image 2 Property Image 3 Property Image 4 Property Image 5 Property Image 6 Property Image 7 Property Image 9 Property Image 10 Property Image 11 Property Image 12 Property Image 13 Property Image 14 Property Image 15 Property Image 16 Property Image 17 Property Image 18 Property Image 19 Property Image 20

Nearby Streets

NameAverage PriceAverage SqftDistance
Academy Court £ 000.00 KM
Piershill Square East £ 000.00 KM
Willowbrae Gardens £ 295,00000.00 KM
Abercorn Grove £ 000.00 KM
Wolseley Crescent £ 252,33300.00 KM

Nearby Transport

NameNLCTLCDistance
Edinburgh9328EDB4.63 KM
Brunstane8807BSU5.20 KM
Newcraighall8808NEW6.59 KM
Haymarket9419HYM8.03 KM
Shawfair6963SFI8.42 KM

Nearby Listings

AddressPriceTypeScoreDistance
5/7 Piershill Terrace, Piershill, Edinburgh, EH8 7ES £ 265,000BUY7 / 100.00 KM
11/6 Piershill Terrace, Piershill, Edinburgh, EH8 7EY £ 280,000BUY6 / 100.06 KM
12 Piershill Terrace, Edinburgh, EH8 7EU £ 260,000BUY7 / 100.06 KM
11/8 Piershill Terrace, Willowbrae, Edinburgh, EH8 7EY £ 290,000BUY7 / 100.09 KM
73 Willowbrae Road, Willowbrae, Edinburgh, EH8 7EZ £ 275,000BUY6 / 100.11 KM