Raeburn Avenue, Columbia, Washington, Tyne and Wear, NE38
JI

Raeburn Avenue, Columbia, Washington, Tyne and Wear, NE38

By Jill Moore Select Properties

£ 100,000

Reviews

4 out of 5 stars

Jill Moore Select Properties says ..

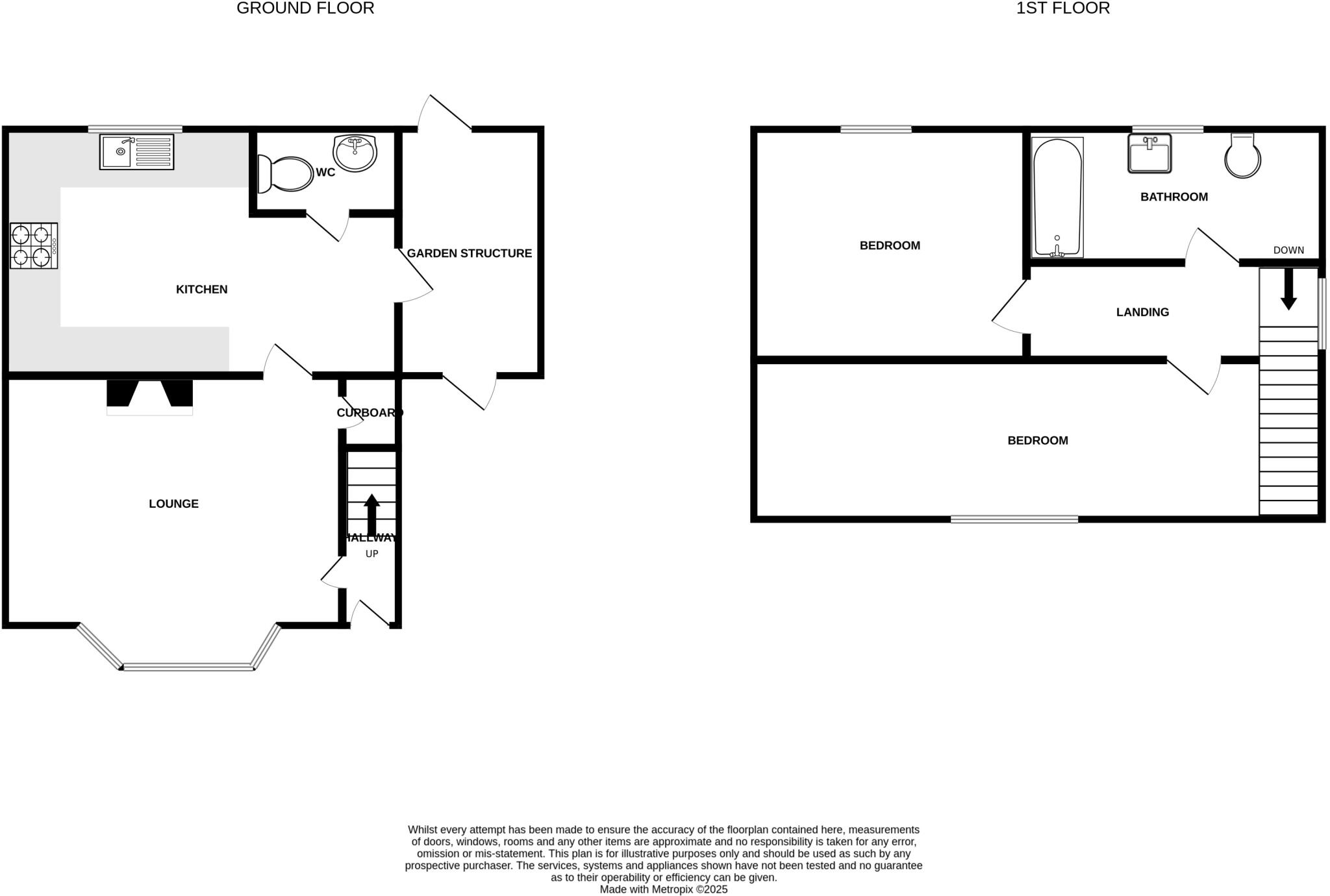
Jill Moore present this charming two-bedroom semi-detached home in the quiet and sought-after area of Raebrun Ave, Columbia, to the sales market. Featuring two spacious double bedrooms and enclosed front and rear gardens, this property offers a comfortable and convenient living space with a range...

Property Oracle says ..

This end of terrace property is located in Washington, Tyne and Wear, and benefits from being close to several schools, including Columbia Grange School (Outstanding Ofsted rating) and John F Kennedy Primary School (Good Ofsted rating). The property itself is presented well and appears to be in good condition, with a modern kitchen and bathroom. There is also a good sized garden to the rear, with additional sheds providing ample storage. The list price of £100,000 is significantly below the average price for the area (£198,296), and while the property is smaller than average (725 sqft vs 826 sqft average), this could represent good value for money, particularly given its condition and the inclusion of a garden. However, potential buyers should be aware that the average price per sqft in the area is £240, and this property is priced lower, potentially indicating a need for some minor improvements or repairs.

Therefore, we give this property 8 / 10. *Disclaimer: This is our option and does constitute a recommendation or financial advice. Do your own research. *

Price
9
Condition
8
Location
8
Land
7
Bedrooms
2
Bathrooms
0
Sqft (est)
725.00

The heatmap indicates the level of crime in the area. The color of the heatmap indicates the crime severity and recency.

Metrics Year-on-Year

Average area value
197,600.00 £
Increased by 0.12 %
from 197,369.00 £
Est sale value
181,975.00 £
Increased by 18.40 %
from 153,700.00 £
Average area rental value
1,200.00 £/mo
Increased by 42.69 %
from 841.00 £/mo
Est letting value
725.00 £/mo
from 0.00 £/mo
Est rental Yield
7.29 %
Increased by 42.66 %
from 5.11 %
Crime Rate
13.00 %
Unchanged by 0.00 %
from 13.00 %

Agent Activity

  • Jill Moore Select Properties created the listing.

Nearby Schools

NameTypeOfstedDistance
Columbia Grange SchoolCommunity Special SchoolOutstanding0.21 KM
John F Kennedy Primary SchoolAcademy ConverterGood0.61 KM
Biddick AcademyAcademy ConverterRequires improvement0.71 KM
Barmston Village Primary SchoolCommunity SchoolGood1.04 KM
St Robert Of Newminster Catholic School And Sixth Form CollegeAcademy Converter1.15 KM

Images

Picture No. 33 Picture No. 43 Picture No. 39 Picture No. 41 Picture No. 45 Picture No. 44 Picture No. 46 Picture No. 36 Picture No. 40 Picture No. 48 Picture No. 52 Picture No. 51 Picture No. 42 Picture No. 37 Picture No. 34 Picture No. 47 Picture No. 38 Picture No. 49 Picture No. 50 Picture No. 53 Picture No. 35

Nearby Streets

NameAverage PriceAverage SqftDistance
Northumberland Way £ 60,00000.00 KM
Reynolds Avenue £ 000.00 KM
Hugh Street £ 000.00 KM
Oliver Street £ 000.00 KM
Grasmere Gardens £ 89,95000.00 KM

Nearby Transport

NameNLCTLCDistance
Heworth7766HEW8.16 KM
Chester-Le-Street7736CLS8.44 KM

Nearby Listings

AddressPriceTypeScoreDistance
Raeburn Avenue, Columbia, Washington, Tyne and Wear, NE38 £ 100,000BUY8 / 100.00 KM
Freesia Grange, Columbia, Washington £ 290,000BUY7 / 100.16 KM
Thornbridge, Teal Farm, Washington, Sunderland, NE38 £ 325,000BUY7 / 100.18 KM
Burnway, Washington, Tyne and Wear, NE37 £ 50,000BUY6 / 100.18 KM
Delton Close, The Pastures, Fatfield, Washington, NE38 £ 340,000BUY6 / 100.24 KM

Nearby Properties

AddressPriceDistance
9 Biddick Terrace £ 37,9500.09 KM
4 Biddick Terrace £ 67,0000.09 KM
3 Biddick Terrace £ 47,0000.09 KM
26 Raeburn Avenue £ 119,0000.13 KM
12 Raeburn Avenue £ 86,0000.13 KM