Tudor & Co says ..
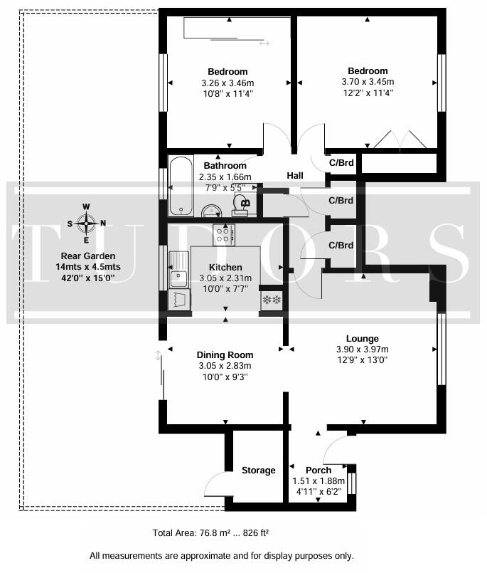
Tudors are pleased to offer for sale this rare to the market, 1960s Wates development built, two double bedroom ground floor maisonette with the benefit of having direct access to a private southerly facing garden.
Property Oracle says ..
This maisonette is located in West Molesey, Surrey, a desirable area known for its proximity to the River Thames and good transport links. The property itself is a two-bedroom maisonette with a small garden. While the images show the property to be in reasonable condition and well-maintained, there is no evidence of significant upgrades or renovations. The list price of £385,000 is significantly below the average price for the area (£848,325), but it is important to note that the average sqft and price per sqft are based on larger properties. This maisonette is smaller at 644 sqft, and the average price per sqft in the area is £623. This means that the price of this property is lower than average, which could be attributed to its size and type. The nearby listings show a range of prices, but the lack of sqft data for those listings makes a direct comparison difficult. However, considering the condition, location, and size of the property, the price appears reasonable.
Therefore, we give this property 7 / 10. *Disclaimer: This is our option and does constitute a recommendation or financial advice. Do your own research. *
- Price
- 8
- Condition
- 7
- Location
- 8
- Land
- 6
- Bedrooms
- 2
- Bathrooms
- 1
- Sqft (est)
- 644.00
- Lot (est)
- 826.00
The heatmap indicates the level of crime in the area. The color of the heatmap indicates the crime severity and recency.
Metrics Year-on-Year
- Average area value
- 736,658.00 £Decreased by 7.15 %
- Est sale value
- 466,256.00 £Increased by 11.56 %
- Average area rental value
- 2,100.00 £/moDecreased by 8.93 %
- Est letting value
- 1,288.00 £/moIncreased by 100.00 %
- Est rental Yield
- 3.42 %Decreased by 2.01 %
- Crime Rate
- 5.00 %Unchanged by 0.00 %
Agent Activity
Tudor & Co created the listing.
Nearby Schools
| Name | Type | Ofsted | Distance |
|---|---|---|---|
| Hurst Park Primary School | Community School | Good | 0.66 KM |
| Fox Grove School | Free Schools Special | 0.75 KM | |
| Chandlers Field Primary School | Foundation School | Good | 0.82 KM |
| Three Rivers Sure Start Children'S Centre | Children's Centre | 0.95 KM | |
| St Alban'S Catholic Primary School | Academy Converter | Good | 0.96 KM |
Images
Nearby Streets
| Name | Average Price | Average Sqft | Distance |
|---|---|---|---|
| Lavender Court | £ 0 | 0 | 0.00 KM |
| The Fairway | £ 536,667 | 0 | 0.00 KM |
| Windsor Avenue | £ 0 | 0 | 0.00 KM |
| Lower Sunbury Road | £ 70,000 | 0 | 0.00 KM |
| Park Way | £ 890,000 | 0 | 0.00 KM |
Nearby Transport
| Name | NLC | TLC | Distance |
|---|---|---|---|
| Hampton | 5560 | HMP | 1.21 KM |
| Hampton Court | 5561 | HMC | 2.78 KM |
| Esher | 5558 | ESH | 3.31 KM |
| Thames Ditton | 5610 | THD | 3.67 KM |
| Fulwell | 5587 | FLW | 3.70 KM |
Nearby Listings
| Address | Price | Type | Score | Distance |
|---|---|---|---|---|
| Kelvinbrook, West Molesey, KT8 | £ 385,000 | BUY | 7 / 10 | 0.00 KM |
| Kelvinbrook, West Molesey, KT8 | £ 375,000 | BUY | 6 / 10 | 0.00 KM |
| Cherimoya Gardens, West Molesey, KT8 | £ 675,000 | BUY | 8 / 10 | 0.10 KM |
| Spurfield, West Molesey, KT8 | £ 385,000 | BUY | Unknown | 0.14 KM |
| Land at Linkfield, West Molesey, Surrey, KT8 1SD | £ 1,000 | BUY | 4 / 10 | 0.14 KM |
Nearby Properties
| Address | Price | Distance |
|---|---|---|
| 51 Kelvinbrook | £ 164,500 | 0.01 KM |
| 47 Kelvinbrook | £ 367,500 | 0.01 KM |
| 35 Kelvinbrook | £ 585,000 | 0.01 KM |
| 37 Kelvinbrook | £ 355,000 | 0.01 KM |
| 27 Kelvinbrook | £ 435,000 | 0.01 KM |