P&H Estates says ..
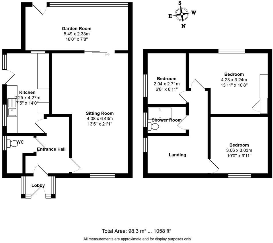
Three bedroom semi detached house located in the East of Ipswich. The property offers gardens to front and rear, garage, off road parking, open plan living/dining room, kitchen, and conservatory.
Property Oracle says ..
Therefore, we give this property 6 / 10. *Disclaimer: This is our option and does constitute a recommendation or financial advice. Do your own research. *
- Price
- 7
- Condition
- 4
- Location
- 7
- Land
- 6
- Bedrooms
- 3
- Bathrooms
- 0
- Sqft (est)
- 830.32
The heatmap indicates the level of crime in the area. The color of the heatmap indicates the crime severity and recency.
Metrics Year-on-Year
- Average area value
- 255,769.00 £Decreased by 9.91 %
- Est sale value
- 235,810.88 £Increased by 1.79 %
- Average area rental value
- 1,124.00 £/moIncreased by 8.18 %
- Est letting value
- 830.32 £/moUnchanged by 0.00 %
- Est rental Yield
- 5.27 %Increased by 20.05 %
- Crime Rate
- 6.00 %Unchanged by 0.00 %
from 283,905.00 £
from 231,659.28 £
from 1,039.00 £/mo
from 830.32 £/mo
from 4.39 %
from 6.00 %
Agent Activity
P&H Estates created the listing.
Nearby Schools
| Name | Type | Ofsted | Distance |
|---|---|---|---|
| East Ipswich Children'S Centre | Children's Centre | 0.35 KM | |
| Murrayfield Primary - A Paradigm Academy | Academy Sponsor Led | Good | 0.74 KM |
| Sir Bobby Robson School | Free Schools Special | 0.87 KM | |
| Britannia Primary School And Nursery | Academy Sponsor Led | 1.05 KM | |
| Rose Hill Primary | Academy Converter | 1.12 KM |
Images
Nearby Streets
| Name | Average Price | Average Sqft | Distance |
|---|---|---|---|
| Bantoft Terrace | £ 230,000 | 0 | 0.00 KM |
| Queen's Way | £ 265,000 | 0 | 0.00 KM |
| The Boiler House | £ 311,500 | 0 | 0.00 KM |
| Shenley Road | £ 0 | 0 | 0.00 KM |
| Coronation Road | £ 231,667 | 0 | 0.00 KM |
Nearby Transport
| Name | NLC | TLC | Distance |
|---|---|---|---|
| Derby Road (Ipswich) | 7212 | DBR | 1.12 KM |
| Westerfield | 7226 | WFI | 4.91 KM |
| Ipswich | 7217 | IPS | 5.16 KM |
Nearby Listings
| Address | Price | Type | Score | Distance |
|---|---|---|---|---|
| Felixstowe Road, Ipswich | £ 220,000 | BUY | 6 / 10 | 0.00 KM |
| Ramsgate Drive, Ipswich | £ 270,000 | BUY | 6 / 10 | 0.06 KM |
| Margate Road, Ipswich | £ 300,000 | BUY | 6 / 10 | 0.11 KM |
| Ramsgate Drive, Ipswich | £ 300,000 | BUY | 6 / 10 | 0.13 KM |
| Shackleton Road, Ipswich | £ 230,000 | BUY | Unknown | 0.13 KM |
Nearby Properties
| Address | Price | Distance |
|---|---|---|
| 7 Ramsgate Drive | £ 161,000 | 0.04 KM |
| 3 Badshah Avenue | £ 120,000 | 0.08 KM |
| 22 Badshah Avenue | £ 187,000 | 0.08 KM |
| 16 Badshah Avenue | £ 134,995 | 0.08 KM |
| 24 Badshah Avenue | £ 122,500 | 0.08 KM |