Balcarres Avenue, Whelley, Wigan
By Morgan H Lewis
£ 190,000
Reviews
2 out of 5 stars
Morgan H Lewis says ..
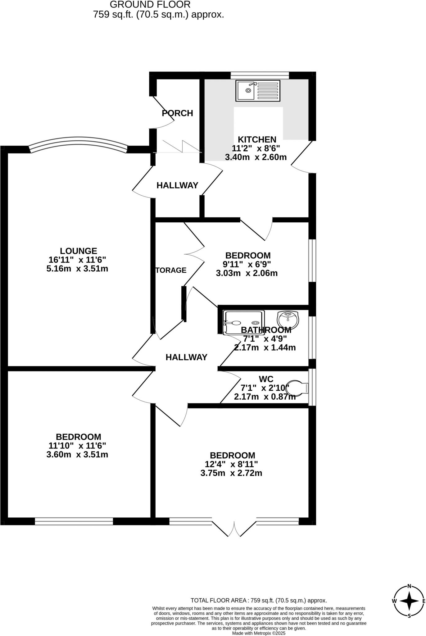
Balcarres Avenue, Whelley – Beautifully Presented True Bungalow in a Fantastic LocationSituated in the ever-popular area of Whelley, this well-maintained true bungalow offers comfortable living, modern finishes and superb convenience. Perfect for downsizers, first-time buyers or anyone seek...
Property Oracle says ..
This two-bedroom semi-detached bungalow in Whelley, Wigan, presents a renovation opportunity. While the location offers access to schools and transport, the property itself requires modernisation. The garden needs landscaping, and the interior is dated. However, the asking price of £190,000 reflects the condition and provides potential for adding value through improvements. The property is 759 sqft, and the average price per sqft in the area is £346.
Therefore, we give this property 5 / 10. *Disclaimer: This is our option and does constitute a recommendation or financial advice. Do your own research. *
- Price
- 7
- Condition
- 4
- Location
- 6
- Land
- 3
- Bedrooms
- 2
- Bathrooms
- 1
- Sqft (est)
- 759.00
The heatmap indicates the level of crime in the area. The color of the heatmap indicates the crime severity and recency.
Metrics Year-on-Year
- Average area value
- 207,843.00 £Decreased by 20.29 %
- Est sale value
- 262,614.00 £Increased by 55.86 %
- Average area rental value
- 491.00 £/moDecreased by 29.56 %
- Est letting value
- 0.00 £/mo
- Est rental Yield
- 2.83 %Decreased by 11.84 %
- Crime Rate
- 0.00 %
Agent Activity
Morgan H Lewis created the listing.
Nearby Schools
| Name | Type | Ofsted | Distance |
|---|---|---|---|
| Canon Sharples Church Of England Primary School And Nursery | Academy Sponsor Led | Good | 0.27 KM |
| Douglas Valley Nursery School | Local Authority Nursery School | Outstanding | 1.10 KM |
| Douglas Valley Sure Start Children'S Centre | Children's Centre Linked Site | 1.11 KM | |
| St Catharine'S Cofe Primary School | Voluntary Aided School | Good | 1.15 KM |
| Dean Trust Rose Bridge | Academy Sponsor Led | 1.27 KM |
Images
Nearby Streets
| Name | Average Price | Average Sqft | Distance |
|---|---|---|---|
| Hawthorn Rise | £ 0 | 0 | 0.00 KM |
| Wild Cherry Close | £ 0 | 0 | 0.00 KM |
| Highfield Avenue | £ 0 | 0 | 0.00 KM |
| Walnut Avenue | £ 0 | 0 | 0.00 KM |
| Essex Street | £ 0 | 0 | 0.00 KM |
Nearby Transport
| Name | NLC | TLC | Distance |
|---|---|---|---|
| Ince (Manchester) | 2236 | INC | 1.99 KM |
| Wigan Wallgate | 2406 | WGW | 2.21 KM |
| Wigan North Western | 2363 | WGN | 2.30 KM |
| Hindley | 2398 | HIN | 4.81 KM |
| Adlington (Lancashire) | 2641 | ADL | 6.53 KM |
Nearby Listings
| Address | Price | Type | Score | Distance |
|---|---|---|---|---|
| Balcarres Avenue, Whelley, Wigan | £ 190,000 | BUY | 5 / 10 | 0.00 KM |
| Balniel Walk, Wigan, WN1 | £ 230,000 | BUY | 7 / 10 | 0.11 KM |
| Balniel Walk, Whelley, WN1 3UU | £ 279,950 | BUY | 7 / 10 | 0.12 KM |
| Balcarres Avenue, Wigan, WN1 | £ 250,000 | BUY | 7 / 10 | 0.12 KM |
| Balniel Walk, Wigan | £ 230,000 | BUY | 6 / 10 | 0.14 KM |
Nearby Properties
| Address | Price | Distance |
|---|---|---|
| 5 Balniel Walk | £ 145,000 | 0.14 KM |
| 19 Balniel Walk | £ 200,000 | 0.14 KM |
| 25 Balniel Walk | £ 210,000 | 0.14 KM |
| 7 Balniel Walk | £ 168,500 | 0.14 KM |
| 12 Balniel Walk | £ 130,000 | 0.14 KM |