Hunters says ..
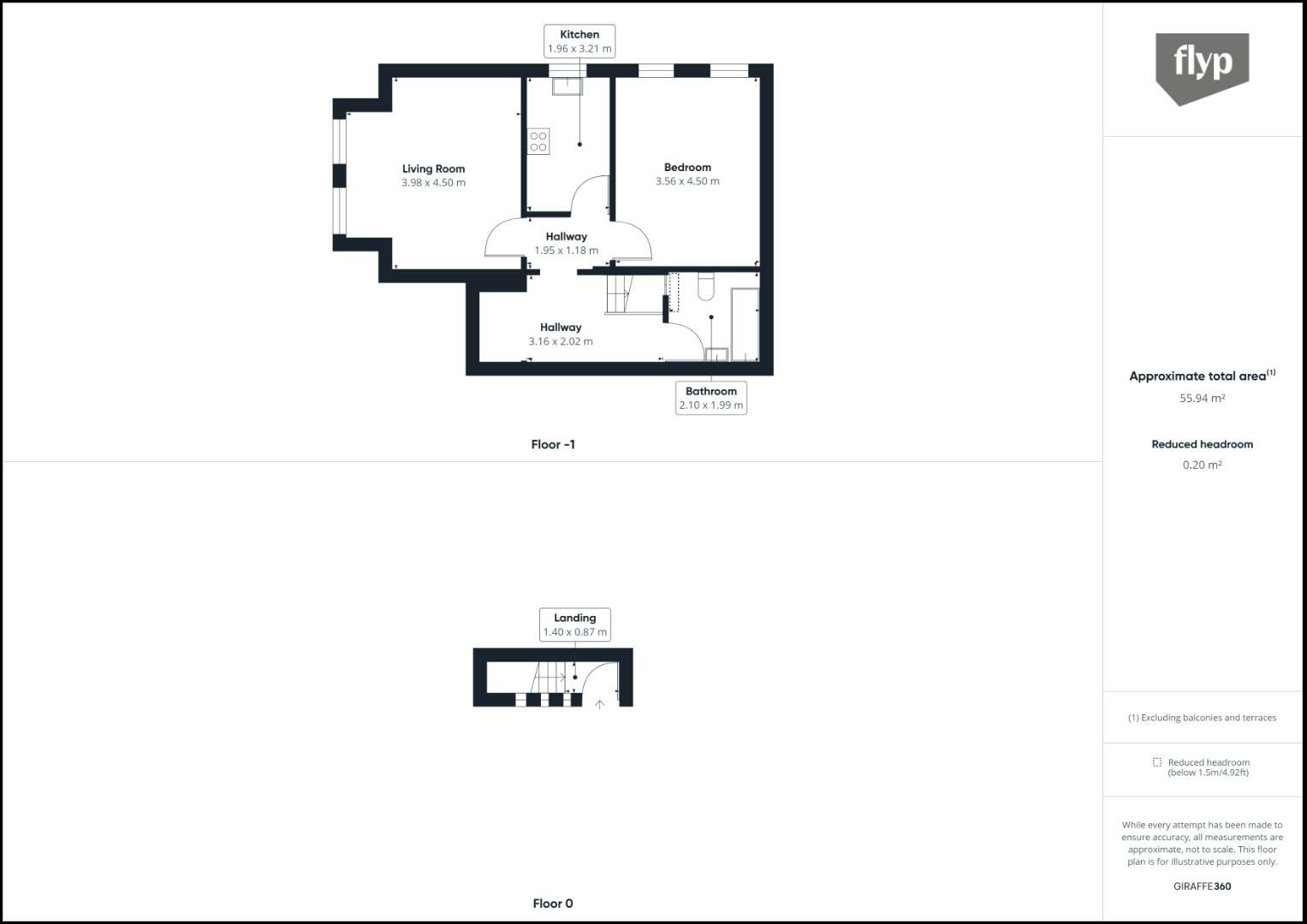
NO ONWARD CHAIN! Welcome to this charming ONE BEDROOM, LOWER GROUND FLOOR apartment located on North Street in Carshalton! Situated in a stunning character building within a secure, gated boundary, this apartment offers a unique blend of historic charm and modern convenience. With 602 sq ft of li...
Property Oracle says ..
This one-bedroom apartment located on North Street, Carshalton, offers a blend of modern convenience and historic charm, situated within a secure gated boundary. The property’s interior is presented well in the photographs, with updated kitchen and bathroom fixtures. The flooring is of good quality throughout. While the available photos don’t provide a clear view of the garden’s size or condition, it appears adequate for a one-bedroom apartment. The location is a key selling point, offering proximity to Carshalton train station, good schools, and local shops. However, the lack of extensive land and a limited number of comparable properties on the market makes a definitive determination of value difficult. The asking price of £250,000 seems generally appropriate for the market based on the available data, although a more comprehensive property valuation may be beneficial for a definitive price analysis. Potential buyers should carefully consider the size of the property and garden against their individual needs and budget.
Therefore, we give this property 6 / 10. *Disclaimer: This is our option and does constitute a recommendation or financial advice. Do your own research. *
- Price
- 7
- Condition
- 6
- Location
- 7
- Land
- 4
- Bedrooms
- 1
- Bathrooms
- 1
- Sqft (est)
- 602.13
The heatmap indicates the level of crime in the area. The color of the heatmap indicates the crime severity and recency.
Metrics Year-on-Year
- Average area value
- 403,333.00 £Decreased by 10.97 %
- Est sale value
- 174,015.57 £Decreased by 44.10 %
- Average area rental value
- 1,450.00 £/moDecreased by 6.45 %
- Est letting value
- 602.13 £/moUnchanged by 0.00 %
- Est rental Yield
- 4.31 %Increased by 4.87 %
- Crime Rate
- 10.00 %Unchanged by 0.00 %
Agent Activity
Hunters created the listing.
Nearby Schools
| Name | Type | Ofsted | Distance |
|---|---|---|---|
| Harris Junior Academy Carshalton | Academy Sponsor Led | Good | 0.19 KM |
| Victor Seymour Infants' School | Academy Converter | Outstanding | 0.20 KM |
| Carshalton High School For Girls | Academy Converter | Good | 0.40 KM |
| Victor Seymour Children'S Centre | Children's Centre | 0.49 KM | |
| St Mary'S Rc Infants School | Voluntary Aided School | Good | 0.54 KM |
Images
Nearby Streets
| Name | Average Price | Average Sqft | Distance |
|---|---|---|---|
| Tyrell Court | £ 0 | 0 | 0.00 KM |
| Palmerston Road | £ 415,000 | 0 | 0.00 KM |
| William Street | £ 370,000 | 0 | 0.00 KM |
| Green Close | £ 0 | 0 | 0.00 KM |
| Old Swan Yard | £ 0 | 0 | 0.00 KM |
Nearby Transport
| Name | NLC | TLC | Distance |
|---|---|---|---|
| Carshalton | 5405 | CSH | 0.30 KM |
| Hackbridge | 5364 | HCB | 1.53 KM |
| Carshalton Beeches | 5406 | CSB | 1.58 KM |
| Wallington | 5394 | WLT | 2.06 KM |
| Mitcham Junction | 5427 | MIJ | 2.60 KM |
Nearby Listings
| Address | Price | Type | Score | Distance |
|---|---|---|---|---|
| North Street, Carshalton | £ 250,000 | BUY | 6 / 10 | 0.00 KM |
| North Street, Carshalton | £ 300,000 | BUY | 6 / 10 | 0.00 KM |
| North Street, Carshalton | £ 320,000 | BUY | 7 / 10 | 0.06 KM |
| North Street, Carshalton | £ 500,000 | BUY | 6 / 10 | 0.10 KM |
| North Street, Carshalton | £ 550,000 | BUY | 6 / 10 | 0.11 KM |
Nearby Properties
| Address | Price | Distance |
|---|---|---|
| 82 North Street | £ 425,000 | 0.10 KM |
| 60 North Street | £ 409,950 | 0.10 KM |
| 62 North Street | £ 249,950 | 0.10 KM |
| 68 North Street | £ 337,000 | 0.10 KM |
| 54 North Street | £ 205,000 | 0.10 KM |