Little Footway, Langton Green, TN3
By Alexandre Boyes
£ 825,000
Reviews
3 out of 5 stars
Alexandre Boyes says ..
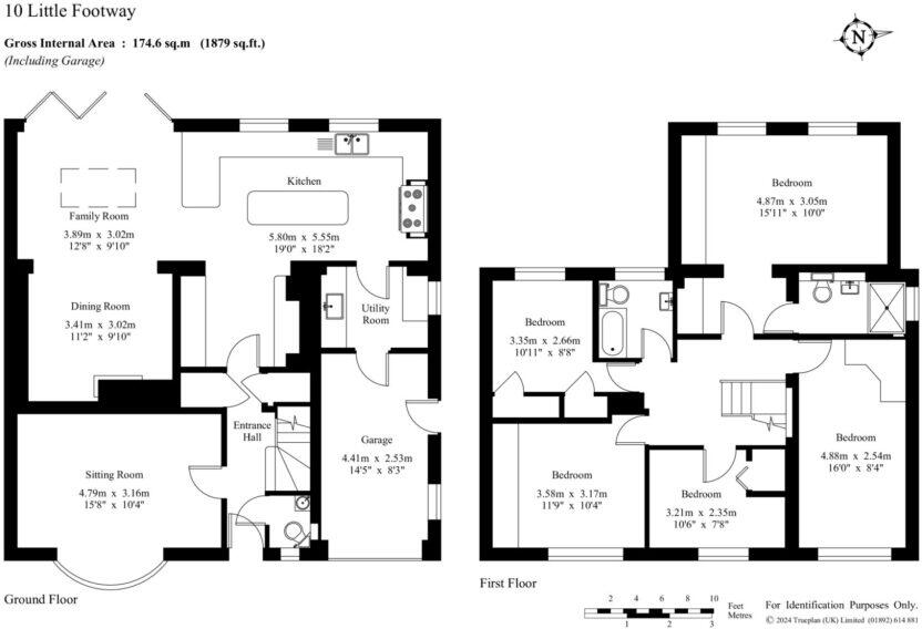
A well proportioned detached family house located in this popular road within a short walk of the village centre. The property has been extended by the present owners and is ideal for family living, offering spacious and versatile accommodation throughout with close proximity to local schools and...
Property Oracle says ..
This is a detached property in Langton Green, Kent, featuring five bedrooms and two bathrooms. The house appears to be in good condition, with a modern kitchen and bathrooms. It also benefits from a garden with a shed and patio area. The location is desirable, with good access to schools and transportation. The asking price of £825,000 seems reasonable for the area and the property’s features. The property also benefits from off street parking and a garage.
Therefore, we give this property 7 / 10. *Disclaimer: This is our option and does constitute a recommendation or financial advice. Do your own research. *
- Price
- 7
- Condition
- 8
- Location
- 8
- Land
- 7
- Bedrooms
- 5
- Bathrooms
- 2
- Sqft (est)
- 1,326.08
The heatmap indicates the level of crime in the area. The color of the heatmap indicates the crime severity and recency.
Metrics Year-on-Year
- Average area value
- 655,000.00 £Decreased by 40.52 %
- Est sale value
- 546,344.96 £Decreased by 46.70 %
- Average area rental value
- 2,442.00 £/moDecreased by 15.27 %
- Est letting value
- 1,326.08 £/moDecreased by 50.00 %
- Est rental Yield
- 4.47 %Increased by 42.36 %
- Crime Rate
- 12.00 %Unchanged by 0.00 %
Agent Activity
Alexandre Boyes created the listing.
Nearby Schools
| Name | Type | Ofsted | Distance |
|---|---|---|---|
| Langton Green Primary School | Community School | Outstanding | 0.88 KM |
| Holmewood House School | Other Independent School | 0.92 KM | |
| Harmony Children'S Centre | Children's Centre | 1.65 KM | |
| Rusthall St Paul'S Cofe Va Primary School | Voluntary Aided School | Good | 1.65 KM |
| Speldhurst Church Of England Voluntary Aided Primary School | Voluntary Aided School | Outstanding | 2.03 KM |
Images
Nearby Streets
| Name | Average Price | Average Sqft | Distance |
|---|---|---|---|
| Barrow Lane | £ 0 | 0 | 0.00 KM |
| Oxlea | £ 895,000 | 0 | 0.00 KM |
| Watson Court | £ 0 | 0 | 0.00 KM |
| Tunbridge Wells Circular Walk | £ 0 | 0 | 0.00 KM |
Nearby Transport
| Name | NLC | TLC | Distance |
|---|---|---|---|
| Eridge | 5459 | ERI | 5.05 KM |
| Tunbridge Wells | 5230 | TBW | 5.58 KM |
| Ashurst (Kent) | 5398 | AHS | 6.63 KM |
| Leigh (Kent) | 5294 | LIH | 6.79 KM |
| High Brooms | 5235 | HIB | 7.40 KM |
Nearby Listings
| Address | Price | Type | Score | Distance |
|---|---|---|---|---|
| Little Footway, Langton Green, TN3 | £ 825,000 | BUY | 7 / 10 | 0.00 KM |
| Great Footway, Langton Green, TN3 | £ 995,000 | BUY | 7 / 10 | 0.09 KM |
| Langton Green | £ 1,100,000 | BUY | 7 / 10 | 0.18 KM |
| Stonewall Park Road, Langton Green, TN3 | £ 675,000 | BUY | 7 / 10 | 0.21 KM |
| Great Footway, Langton Green, TN3 | £ 1,150,000 | BUY | 8 / 10 | 0.24 KM |
Nearby Properties
| Address | Price | Distance |
|---|---|---|
| 6 Little Footway | £ 775,000 | 0.04 KM |
| 8 Little Footway | £ 545,000 | 0.04 KM |
| 19 Little Footway | £ 175,000 | 0.04 KM |
| 10 Little Footway | £ 350,000 | 0.04 KM |
| 1 Little Footway | £ 380,000 | 0.04 KM |