LO
The Poplars Charlestown, Ackworth, Pontefract
By Logic Real Estate
£ 595,000
Reviews
3 out of 5 stars
Logic Real Estate says ..
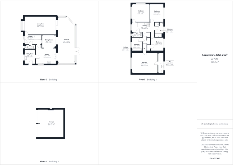
Exclusively Distinctive Five Bedroom Detached Home in a Private Ackworth Setting Tucked away at the end of an exclusive private driveway shared with just a select few bespoke residences, this remarkable five-bedroom detached home offers privacy, space, and undeniable elegance. Situated in the hea...
Property Oracle says ..
Therefore, we give this property 6 / 10. *Disclaimer: This is our option and does constitute a recommendation or financial advice. Do your own research. *
- Price
- 5
- Condition
- 6
- Location
- 7
- Land
- 6
- Bedrooms
- 5
- Bathrooms
- 3
- Sqft (est)
- 1,078.54
The heatmap indicates the level of crime in the area. The color of the heatmap indicates the crime severity and recency.
Metrics Year-on-Year
- Average area value
- 254,000.00 £Decreased by 21.84 %
- Est sale value
- 262,085.22 £Increased by 38.86 %
- Average area rental value
- 1,007.00 £/moIncreased by 14.17 %
- Est letting value
- 0.00 £/mo
- Est rental Yield
- 4.76 %Increased by 46.01 %
- Crime Rate
- 4.00 %Unchanged by 0.00 %
from 324,975.00 £
from 188,744.50 £
from 882.00 £/mo
from 0.00 £/mo
from 3.26 %
from 4.00 %
Agent Activity
Logic Real Estate created the listing.
Nearby Schools
| Name | Type | Ofsted | Distance |
|---|---|---|---|
| Oakfield Park School | Community Special School | Outstanding | 0.26 KM |
| Ackworth Mill Dam School | Academy Converter | 0.60 KM | |
| Outwood Primary Academy Bell Lane | Academy Converter | 0.90 KM | |
| Ackworth School | Other Independent School | 1.15 KM | |
| Ackworth Howard Church Of England Voluntary Controlled Junior And Infant School | Voluntary Controlled School | Requires improvement | 1.93 KM |
Images
Nearby Streets
| Name | Average Price | Average Sqft | Distance |
|---|---|---|---|
| Boycott Drive | £ 0 | 0 | 0.00 KM |
| Fair View | £ 0 | 0 | 0.00 KM |
| Quarry Street | £ 0 | 0 | 0.00 KM |
| Mill Close | £ 0 | 0 | 0.00 KM |
| Bell Lane Terrace | £ 190,000 | 0 | 0.00 KM |
Nearby Transport
| Name | NLC | TLC | Distance |
|---|---|---|---|
| Fitzwilliam | 8583 | FZW | 4.49 KM |
| Featherstone | 8544 | FEA | 5.26 KM |
| Moorthorpe | 8539 | MRP | 5.81 KM |
| Pontefract Tanshelf | 8541 | POT | 6.42 KM |
| Pontefract Baghill | 8540 | PFR | 6.85 KM |
Nearby Listings
| Address | Price | Type | Score | Distance |
|---|---|---|---|---|
| The Poplars Charlestown, Ackworth, Pontefract | £ 595,000 | BUY | 6 / 10 | 0.00 KM |
| Charlestown, Ackworth, WF7 | £ 200,000 | BUY | 6 / 10 | 0.00 KM |
| Charlestown, Ackworth, Pontefract | £ 200,000 | BUY | Unknown | 0.02 KM |
| Charlestown, Ackworth, Pontefract, West Yorkshire | £ 260,000 | BUY | 7 / 10 | 0.03 KM |
| Orchard Drive, Ackworth, WF7 | £ 475,000 | BUY | 7 / 10 | 0.16 KM |
Nearby Properties
| Address | Price | Distance |
|---|---|---|
| The Croft | £ 278,000 | 0.01 KM |
| 36 Charlestown | £ 96,000 | 0.01 KM |
| 34 Charlestown | £ 114,000 | 0.01 KM |
| 23 Charlestown | £ 174,950 | 0.01 KM |
| 39 Charlestown | £ 108,500 | 0.01 KM |