Dennis Lane, Stanmore, HA7
By Stone Butters Residential
£ 3,500,000
Reviews
4 out of 5 stars
Stone Butters Residential says ..
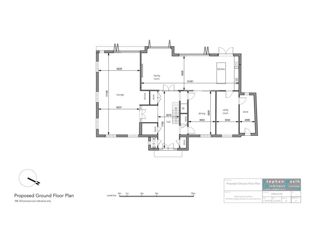
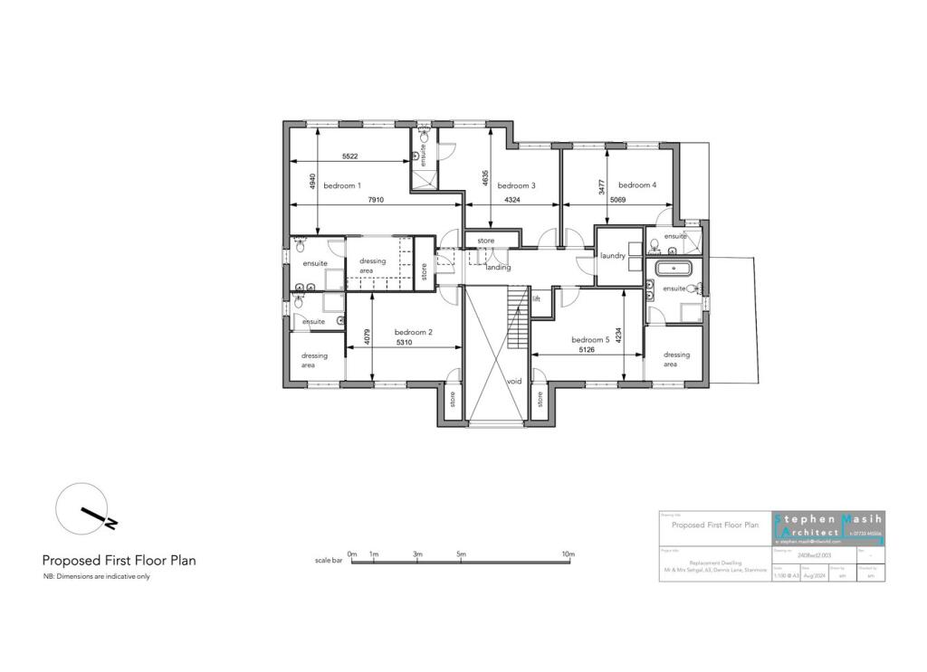
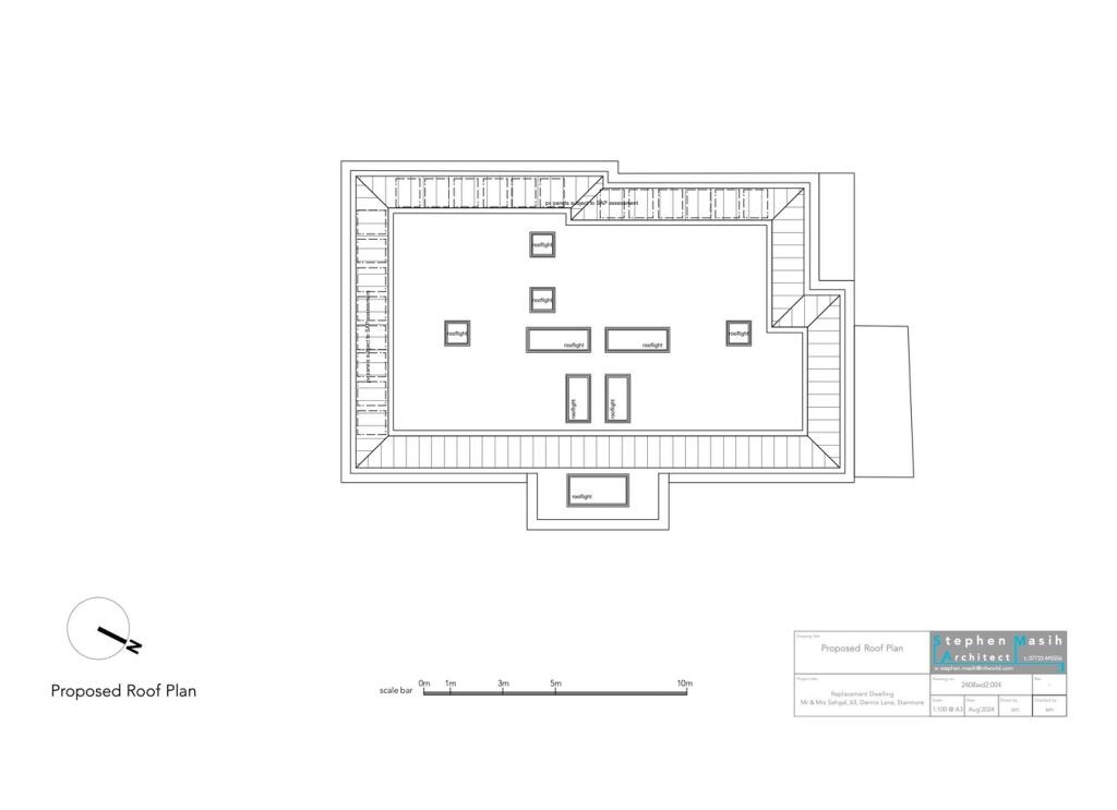
An opportunity to acquire a plot to build your own house of approximately 6886 sq ft 640 sqm over 3 floors in a highly desirable location in the heart of Stanmore.Lower Ground Floor 2066sq ft 192 sqm....Ground Floor 2539sq f 235 sqm...First floor 2281 sqf 212 sq m
Property Oracle says ..
This property is a new build detached house located in Stanmore, Harrow. The location benefits from being close to good schools and transport links. The property is a substantial size and is likely to be of high quality given the plans. However, the lack of information regarding the actual size and condition makes it difficult to provide a comprehensive assessment. The list price is significantly higher than the average price for the area, but this is not unexpected given the property type and potential size. More information is needed to give a precise evaluation.
Therefore, we give this property 8 / 10. *Disclaimer: This is our option and does constitute a recommendation or financial advice. Do your own research. *
- Price
- 0
- Condition
- 0
- Location
- 8
- Land
- 0
- Bedrooms
- 4
- Bathrooms
- 4
The heatmap indicates the level of crime in the area. The color of the heatmap indicates the crime severity and recency.
Metrics Year-on-Year
- Average area value
- 892,211.00 £Increased by 5.89 %
- Average area rental value
- 2,230.00 £/moDecreased by 30.05 %
- Est rental Yield
- 3.00 %Decreased by 33.92 %
- Crime Rate
- 0.00 %
Agent Activity
Stone Butters Residential created the listing.
Nearby Schools
| Name | Type | Ofsted | Distance |
|---|---|---|---|
| St John'S Cofe School | Voluntary Aided School | Good | 0.52 KM |
| Stanmore Park | Children's Centre Linked Site | 1.04 KM | |
| Stanmore College | Further Education | Good | 1.24 KM |
| Stanburn Primary School | Community School | Good | 1.98 KM |
| Aylward Primary School | Academy Sponsor Led | Good | 2.05 KM |
Images
Nearby Streets
| Name | Average Price | Average Sqft | Distance |
|---|---|---|---|
| Ray Gardens | £ 350,000 | 0 | 0.00 KM |
| Holland Close | £ 1,416,667 | 0 | 0.00 KM |
| Laburnum Court | £ 450,000 | 0 | 0.00 KM |
| Linden Close | £ 1,650,000 | 0 | 0.00 KM |
| Glyn Court | £ 0 | 0 | 0.00 KM |
Nearby Transport
| Name | NLC | TLC | Distance |
|---|---|---|---|
| Harrow And Wealdstone | 1397 | HRW | 4.11 KM |
| Kenton | 1399 | KNT | 4.64 KM |
| Elstree And Borehamwood | 1542 | ELS | 5.06 KM |
| Headstone Lane | 1434 | HDL | 5.23 KM |
| Harrow-On-The-Hill | 598 | HOH | 5.51 KM |
Nearby Listings
| Address | Price | Type | Score | Distance |
|---|---|---|---|---|
| Hall Farm Close, Stanmore | £ 3,350,000 | BUY | 7 / 10 | 0.07 KM |
| Dennis Lane, Stanmore, HA7 | £ 3,500,000 | BUY | Unknown | 0.12 KM |
| Spring Lake, Stanmore, HA7 | £ 2,500,000 | BUY | Unknown | 0.23 KM |
| An Exceptional Newly Built Residence in a Quiet Stanmore cul-de-sac | £ 6,950,000 | BUY | Unknown | 0.24 KM |
| Hill Close, Stanmore | £ 400,000 | BUY | 6 / 10 | 0.27 KM |
Nearby Properties
| Address | Price | Distance |
|---|---|---|
| 9 Hall Farm Close | £ 550,000 | 0.09 KM |
| 2 Hall Farm Close | £ 1,350,000 | 0.09 KM |
| 5 Hall Farm Close | £ 1,500,000 | 0.09 KM |
| 69 Dennis Lane | £ 1,995,000 | 0.23 KM |
| 51 Dennis Lane | £ 2,400,000 | 0.23 KM |