Marathon Close, Everton, Liverpool, L6
By Move Residential
£ 230,000
Reviews
3 out of 5 stars
Move Residential says ..
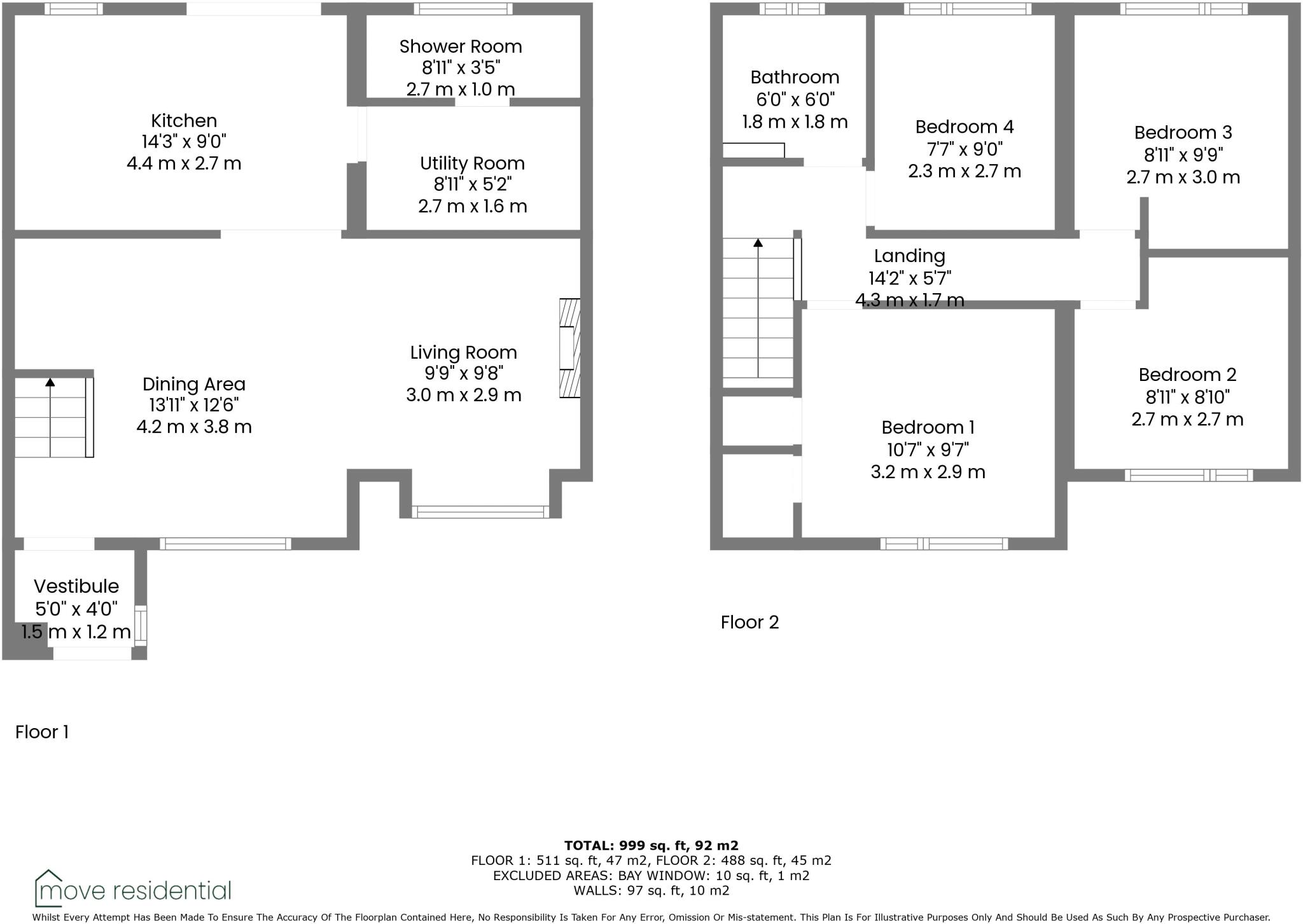
Located on Marathon Close, peaceful cul-de-sac in the popular residential area of Everton, L6, is this fantastic four bedroom semi detached property, offered for sale with no onward chain courtesy of appointed agents Move Residential. Having been substantially extended, this property boasts gener...
Property Oracle says ..
Therefore, we give this property 7 / 10. *Disclaimer: This is our option and does constitute a recommendation or financial advice. Do your own research. *
- Price
- 8
- Condition
- 7
- Location
- 8
- Land
- 7
- Bedrooms
- 4
- Bathrooms
- 2
The heatmap indicates the level of crime in the area. The color of the heatmap indicates the crime severity and recency.
Metrics Year-on-Year
- Average area value
- 233,633.00 £Increased by 18.24 %
- Average area rental value
- 900.00 £/moIncreased by 37.40 %
- Est rental Yield
- 4.62 %Increased by 16.08 %
- Crime Rate
- 1.00 %Unchanged by 0.00 %
from 197,584.00 £
from 655.00 £/mo
from 3.98 %
from 1.00 %
Agent Activity
Move Residential created the listing.
Nearby Schools
| Name | Type | Ofsted | Distance |
|---|---|---|---|
| Everton Nursery School And Family Centre | Local Authority Nursery School | Outstanding | 0.06 KM |
| Everton Children'S Centre | Children's Centre | 0.09 KM | |
| North Liverpool Academy | Academy Sponsor Led | Good | 0.73 KM |
| Whitefield Primary School | Community School | Outstanding | 0.90 KM |
| The Beacon Church Of England Primary School | Academy Converter | 1.03 KM |
Images
Nearby Streets
| Name | Average Price | Average Sqft | Distance |
|---|---|---|---|
| Lytton Street | £ 0 | 0 | 0.00 KM |
| Landseer Road | £ 159,995 | 0 | 0.00 KM |
| Mill Road | £ 0 | 0 | 0.00 KM |
| Churton Court | £ 0 | 0 | 0.00 KM |
| Henglers Close | £ 0 | 0 | 0.00 KM |
Nearby Transport
| Name | NLC | TLC | Distance |
|---|---|---|---|
| Liverpool Lime Street | 2246 | LIV | 1.80 KM |
| Liverpool Central | 2242 | LVC | 2.12 KM |
| Edge Hill | 2169 | EDG | 2.73 KM |
| Moorfields | 2226 | MRF | 2.81 KM |
| Kirkdale | 2245 | KKD | 3.06 KM |
Nearby Listings
| Address | Price | Type | Score | Distance |
|---|---|---|---|---|
| Marathon Close, Everton, Liverpool, L6 | £ 230,000 | BUY | 7 / 10 | 0.00 KM |
| Hodson Place, Liverpool, L6 | £ 100,000 | BUY | 6 / 10 | 0.17 KM |
| Marsworth Drive, Liverpool, Merseyside, L6 | £ 210,000 | BUY | 7 / 10 | 0.20 KM |
| Hodson Place, Anfield, Liverpool, L6 | £ 100,000 | BUY | 5 / 10 | 0.21 KM |
| Marsworth Drive, Liverpool, L6 | £ 260,000 | BUY | 6 / 10 | 0.21 KM |
Nearby Properties
| Address | Price | Distance |
|---|---|---|
| 10 Marathon Close | £ 49,950 | 0.00 KM |
| 14 Marathon Close | £ 89,000 | 0.00 KM |
| 3 Marathon Close | £ 79,950 | 0.00 KM |
| 11 Marathon Close | £ 108,000 | 0.00 KM |
| 6 Marathon Close | £ 130,000 | 0.00 KM |