Aylett's Green, Kelvedon
By Oakheart Property, Land & New Homes
£ 574,950
Reviews
3 out of 5 stars
Oakheart Property, Land & New Homes says ..
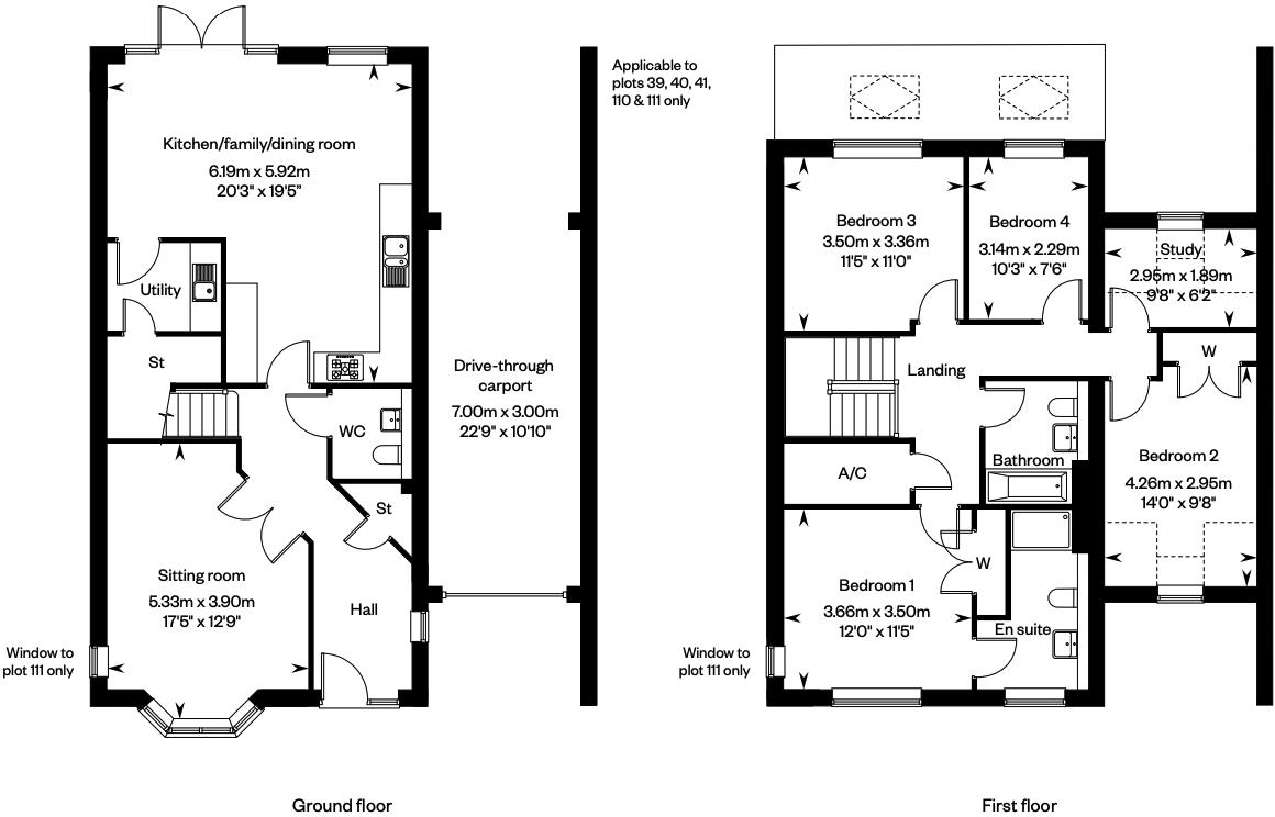
An elegant 4-bedroom family home located in the historic village of Kelvedon, Essex. This family home offers 1,718 sq. ft. of living space, featuring a stunning kitchen/family/dining area with roof lights and French doors, a separate sitting room with a bay window, and study area, perfect for wor...
Property Oracle says ..
The property is located in Aylett’s Green, Kelvedon, a village in Essex. Based on the provided information and images, the property appears to be a newly built, four-bedroom home in excellent condition. The interior is modern and well-finished. The location benefits from proximity to Kelvedon train station (0.36km), providing convenient access to Colchester and London. There are also several primary schools within a reasonable distance, including Kelvedon St Mary’s Church of England Primary Academy (0.82km), which is rated as Outstanding by Ofsted. While the plot size is not specified, the images suggest a small garden or patio area. The list price of £574,950 seems reasonable given the property’s condition, location, and size, although a precise comparison is difficult due to a lack of detailed information regarding the average price per square foot in the area. Nearby comparable properties are listed at similar price points, but their square footage is not provided for comparison.
Therefore, we give this property 7 / 10. *Disclaimer: This is our option and does constitute a recommendation or financial advice. Do your own research. *
- Price
- 7
- Condition
- 10
- Location
- 8
- Land
- 4
- Bedrooms
- 4
- Bathrooms
- 2
- Sqft (est)
- 1,600.59
The heatmap indicates the level of crime in the area. The color of the heatmap indicates the crime severity and recency.
Metrics Year-on-Year
- Average area value
- 510,000.00 £Decreased by 5.75 %
- Est sale value
- 768,283.20 £Increased by 20.00 %
- Average area rental value
- 1,648.00 £/moIncreased by 23.54 %
- Est letting value
- 1,600.59 £/mo
- Est rental Yield
- 3.88 %Increased by 31.08 %
- Crime Rate
- 0.00 %
Agent Activity
Oakheart Property, Land & New Homes created the listing.
Nearby Schools
| Name | Type | Ofsted | Distance |
|---|---|---|---|
| Kelvedon St Mary'S Church Of England Primary Academy | Academy Converter | Outstanding | 0.82 KM |
| Feering Church Of England Primary School | Academy Sponsor Led | 2.01 KM | |
| St Peter'S Church Of England Voluntary Controlled Primary School, Coggeshall | Voluntary Controlled School | Good | 3.66 KM |
| The Honywood Community Science School | Academy Converter | Good | 4.14 KM |
| Baynards Primary School | Community School | Good | 5.17 KM |
Images
Nearby Streets
| Name | Average Price | Average Sqft | Distance |
|---|---|---|---|
| Rowe Close | £ 0 | 0 | 0.00 KM |
| Doughton Road | £ 263,750 | 0 | 0.00 KM |
| Garrard Way | £ 0 | 0 | 0.00 KM |
| Petley Way | £ 0 | 0 | 0.00 KM |
| Kings Meadow Court | £ 0 | 0 | 0.00 KM |
Nearby Transport
| Name | NLC | TLC | Distance |
|---|---|---|---|
| Kelvedon | 6838 | KEL | 0.36 KM |
| Witham | 6844 | WTM | 7.76 KM |
Nearby Listings
| Address | Price | Type | Score | Distance |
|---|---|---|---|---|
| Spenceley Lane, Kelvedon | £ 220,000 | BUY | 6 / 10 | 0.04 KM |
| 23 Spenceley Lane, Kelvedon, Colchester | £ 230,000 | BUY | Unknown | 0.06 KM |
| Seabrook Road, Kelvedon, Colchester, Essex, CO5 | £ 435,000 | BUY | 7 / 10 | 0.10 KM |
| Doughton Road, Kelvedon | £ 96,250 | BUY | 6 / 10 | 0.12 KM |
| Doughton Road, Kelvedon | £ 950,000 | BUY | 9 / 10 | 0.12 KM |
Nearby Properties
| Address | Price | Distance |
|---|---|---|
| Kerami | £ 750,000 | 0.23 KM |
| Cornerways | £ 450,000 | 0.23 KM |
| 4 Observer Way | £ 385,000 | 0.24 KM |
| 20 Observer Way | £ 230,000 | 0.24 KM |
| 13 Observer Way | £ 265,000 | 0.24 KM |