St. James Street, Narberth
FI

St. James Street, Narberth

By Finest

£ 260,000

Reviews

3 out of 5 stars

Finest says ..

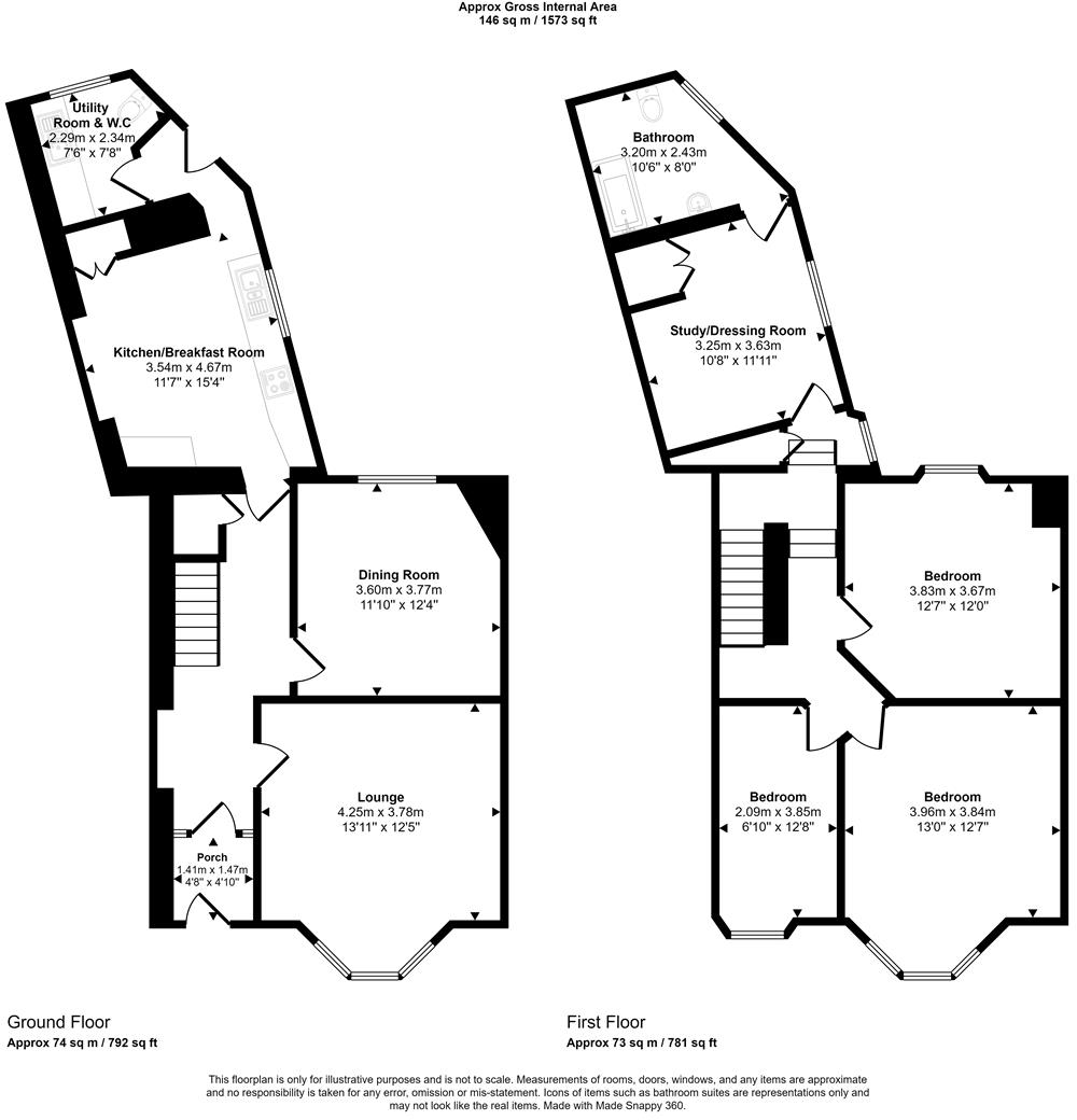
NO FORWARD CHAIN ......... An opportunity to acquire a three/four bedroom house that is beautifully presented, full of charm and character offering flexible living accommodation . Early viewing is highly recommended to appreciate this well appointed home that offers ample family accommodation sit...

Property Oracle says ..

This three-bedroom terraced house is located in Narberth, Pembrokeshire. The property benefits from a convenient location, being within walking distance of local amenities and schools. The asking price of £260,000 is slightly above the average price for the area, but the larger than average size of the property (1,571.53 sqft compared to the average of 878 sqft) might justify this. The property appears to be well-maintained and in good condition, although more information on the specifics would be useful. The presence of a garden is a positive feature. Additional information regarding the property’s condition, and a more detailed description of the garden would allow for a more comprehensive analysis.

Therefore, we give this property 7 / 10. *Disclaimer: This is our option and does constitute a recommendation or financial advice. Do your own research. *

Price
7
Condition
8
Location
9
Land
6
Bedrooms
3
Bathrooms
1
Sqft (est)
1,571.53

The heatmap indicates the level of crime in the area. The color of the heatmap indicates the crime severity and recency.

Metrics Year-on-Year

Average area value
140,000.00 £
Decreased by 43.56 %
from 248,071.00 £
Est sale value
501,318.07 £
Increased by 26.59 %
from 396,025.56 £
Average area rental value
807.00 £/mo
Decreased by 3.00 %
from 832.00 £/mo
Est letting value
1,571.53 £/mo
from 0.00 £/mo
Est rental Yield
6.92 %
Increased by 72.14 %
from 4.02 %
Crime Rate
38.00 %
Unchanged by 0.00 %
from 38.00 %

Agent Activity

  • Finest created the listing.

Nearby Schools

NameTypeOfstedDistance
Landsker EducationWelsh Establishment0.48 KM
Narberth Cp SchoolWelsh Establishment0.56 KM
Templeton C.P. SchoolWelsh Establishment2.71 KM
Redhill High SchoolWelsh Establishment5.91 KM
Brynconin CpWelsh Establishment6.79 KM

Images

DSC_0054.jpg DSC_0053.jpg DSC_0038.jpg DSC_0039.jpg DSC_0056.jpg DSC_0057.jpg DSC_0037.jpg DSC_0055.jpg DSC_0040.jpg DSC_0042.jpg DSC_0043.jpg DSC_0041.jpg DSC_0048.jpg DSC_0049.jpg DSC_0044.jpg DSC_0050.jpg DSC_0047.jpg DSC_0045.jpg DSC_0046.jpg DSC_0052.jpg DSC_0051.jpg

Nearby Streets

NameAverage PriceAverage SqftDistance
The Crescent £ 425,00000.00 KM
Redstone Court £ 000.00 KM
Church Street £ 170,00000.00 KM
Moorfield Road £ 450,00000.00 KM
Jesse Road £ 316,66700.00 KM

Nearby Transport

NameNLCTLCDistance
Narberth4098NAR1.38 KM
Clunderwen4070CUW4.59 KM
Kilgetty4083KGT8.00 KM
Saundersfoot4108SDF9.00 KM

Nearby Listings

AddressPriceTypeScoreDistance
St. James Street, Narberth £ 260,000BUY7 / 100.00 KM
St. James Street, Narberth £ 270,000BUY6 / 100.00 KM
The Crescent, Narberth £ 425,000BUY7 / 100.07 KM
St. James Street, Narberth, Pembrokeshire, SA67 £ 325,000BUYUnknown0.14 KM
St. James Street, Narberth, SA67 £ 265,000BUYUnknown0.14 KM

Nearby Properties

AddressPriceDistance
4 The Crescent £ 220,0000.07 KM
3 The Crescent £ 187,5000.07 KM
1 The Crescent £ 168,0000.07 KM
Bryngwyn £ 215,0000.07 KM
5 The Crescent £ 183,0000.07 KM