Greenford Avenue, London, W7
By Castle Residential
£ 350,000
Reviews
3 out of 5 stars
Castle Residential says ..
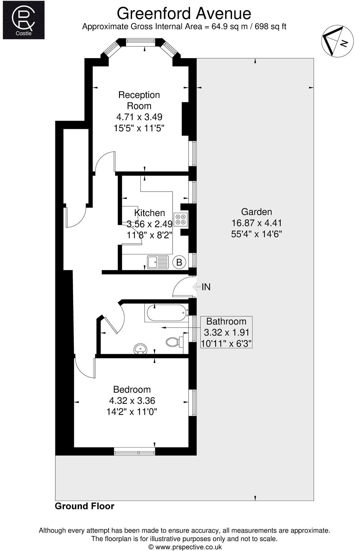
A larger-than-average, well-presented 1 bedroom ground floor maisonette with a wraparound garden, private entrance, long lease (900+ years) and chain-free sale. Features include a bay-fronted lounge, separate kitchen and spacious double bedroom. Ideally located on Greenford Avenue close to sho...
Property Oracle says ..
This is a one-bedroom maisonette in Greenford Avenue, London. The property is in a good location, close to schools and transportation. While the property is in reasonable condition, it could benefit from some modernisation. It features a garden, which is a plus. The asking price of £350,000 seems reasonable, given the location and size of the property.
Therefore, we give this property 7 / 10. *Disclaimer: This is our option and does constitute a recommendation or financial advice. Do your own research. *
- Price
- 8
- Condition
- 6
- Location
- 7
- Land
- 7
- Bedrooms
- 1
- Bathrooms
- 1
- Sqft (est)
- 698.58
The heatmap indicates the level of crime in the area. The color of the heatmap indicates the crime severity and recency.
Metrics Year-on-Year
- Average area value
- 488,738.00 £Decreased by 13.43 %
- Est sale value
- 750,274.92 £Increased by 78.11 %
- Average area rental value
- 2,037.00 £/moIncreased by 29.66 %
- Est letting value
- 2,794.32 £/moIncreased by 300.00 %
- Est rental Yield
- 5.00 %Increased by 49.70 %
- Crime Rate
- 9.00 %Unchanged by 0.00 %
Agent Activity
Castle Residential created the listing.
Nearby Schools
| Name | Type | Ofsted | Distance |
|---|---|---|---|
| Brentside Primary School | Academy Converter | 0.30 KM | |
| Brentside High School | Foundation School | Good | 0.35 KM |
| Ysgol Gymraeg Llundain, London Welsh School | Other Independent School | Good | 0.66 KM |
| Mayfield Primary School | Community School | Good | 0.84 KM |
| Hobbayne Primary School | Community School | Requires improvement | 0.88 KM |
Images
Nearby Streets
| Name | Average Price | Average Sqft | Distance |
|---|---|---|---|
| Hall Drive | £ 512,500 | 0 | 0.00 KM |
| Chadwick Close | £ 0 | 0 | 0.00 KM |
| The Fairway | £ 0 | 0 | 0.00 KM |
| Spring Meadows | £ 0 | 0 | 0.00 KM |
| Runnymede Gardens | £ 600,000 | 0 | 0.00 KM |
Nearby Transport
| Name | NLC | TLC | Distance |
|---|---|---|---|
| Castle Bar Park | 3098 | CBP | 1.05 KM |
| South Greenford | 3138 | SGN | 1.23 KM |
| Hanwell | 3191 | HAN | 1.33 KM |
| Drayton Green | 3099 | DRG | 1.42 KM |
| Greenford | 3136 | GFD | 2.15 KM |
Nearby Listings
| Address | Price | Type | Score | Distance |
|---|---|---|---|---|
| Greenford Avenue, London, W7 | £ 350,000 | BUY | 7 / 10 | 0.00 KM |
| Greenford Avenue, Hanwell, London, W7 | £ 439,950 | BUY | 5 / 10 | 0.05 KM |
| Greenford Avenue, London, W7 | £ 439,950 | BUY | 6 / 10 | 0.07 KM |
| Greenford Avenue, Hanwell | £ 460,000 | BUY | Unknown | 0.09 KM |
| Greenford Avenue, Ealing, W7 | £ 439,950 | BUY | 5 / 10 | 0.10 KM |
Nearby Properties
| Address | Price | Distance |
|---|---|---|
| 408 Greenford Avenue | £ 120,000 | 0.06 KM |
| 394 Greenford Avenue | £ 75,000 | 0.06 KM |
| 392 Greenford Avenue | £ 182,000 | 0.06 KM |
| 390 Greenford Avenue | £ 236,000 | 0.06 KM |
| 396 Greenford Avenue | £ 237,000 | 0.06 KM |