Glenarm Road, Lower Clapton, Hackney, London, E5
By Scotts
£ 2,500,000
Reviews
3 out of 5 stars
Scotts says ..
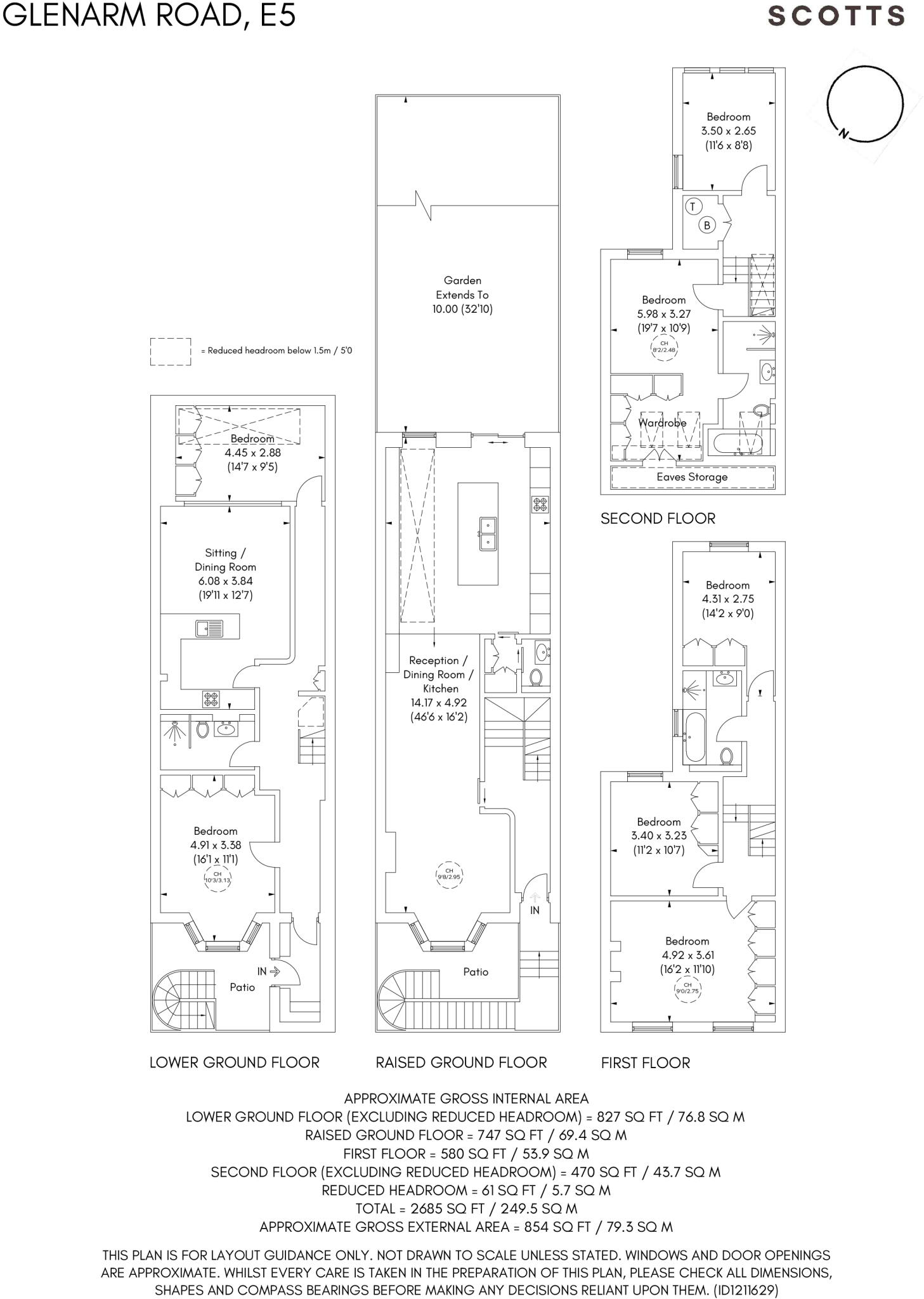
An exceptional six-bedroom Victorian house spanning over 2,600 sq ft, beautifully reimagined through a bold and thoughtful architectural renovation. This handsome terraced home combines period character with contemporary volume, featuring a show-stopping open-plan kitchen, landscaped garden, and ...
Property Oracle says ..
Therefore, we give this property 6 / 10. *Disclaimer: This is our option and does constitute a recommendation or financial advice. Do your own research. *
- Price
- 4
- Condition
- 8
- Location
- 7
- Land
- 7
- Bedrooms
- 6
- Bathrooms
- 3
The heatmap indicates the level of crime in the area. The color of the heatmap indicates the crime severity and recency.
Metrics Year-on-Year
- Average area value
- 786,667.00 £Decreased by 0.96 %
- Average area rental value
- 2,720.00 £/moDecreased by 8.48 %
- Est rental Yield
- 4.15 %Decreased by 7.57 %
- Crime Rate
- 3.00 %Unchanged by 0.00 %
from 794,286.00 £
from 2,972.00 £/mo
from 4.49 %
from 3.00 %
Agent Activity
Scotts created the listing.
Nearby Schools
| Name | Type | Ofsted | Distance |
|---|---|---|---|
| Rushmore Primary School | Community School | Good | 0.50 KM |
| Mandeville Primary School | Community School | Good | 0.53 KM |
| Daubeney Primary School | Community School | Requires improvement | 0.53 KM |
| Daubeney Children'S Centre | Children's Centre | 0.55 KM | |
| Clapton Park Children'S Centre | Children's Centre Linked Site | 0.70 KM |
Images
Nearby Streets
| Name | Average Price | Average Sqft | Distance |
|---|---|---|---|
| Thyme Walk | £ 0 | 0 | 0.00 KM |
| Fisher Close | £ 0 | 0 | 0.00 KM |
| Chowdhury Walk | £ 625,000 | 0 | 0.00 KM |
| Banister House | £ 415,000 | 0 | 0.00 KM |
| Crozier Terrace | £ 0 | 0 | 0.00 KM |
Nearby Transport
| Name | NLC | TLC | Distance |
|---|---|---|---|
| Homerton | 6979 | HMN | 0.73 KM |
| Lea Bridge | 6927 | LEB | 1.60 KM |
| Hackney Central | 6977 | HKC | 1.64 KM |
| Clapton | 6926 | CPT | 1.82 KM |
| Hackney Downs | 6867 | HAC | 2.07 KM |
Nearby Listings
| Address | Price | Type | Score | Distance |
|---|---|---|---|---|
| Glenarm Road, Lower Clapton, Hackney, London, E5 | £ 2,500,000 | BUY | 6 / 10 | 0.00 KM |
| Glenarm Road, London, E5 | £ 1,250,000 | BUY | 6 / 10 | 0.03 KM |
| Dunlace Road, E5 | £ 485,000 | BUY | 6 / 10 | 0.05 KM |
| Dunlace Road, E5 | £ 425,000 | BUY | 6 / 10 | 0.05 KM |
| Glenarm Road, London, E5 | £ 1,150,000 | BUY | 6 / 10 | 0.07 KM |
Nearby Properties
| Address | Price | Distance |
|---|---|---|
| 174 Glenarm Road | £ 1,592,500 | 0.06 KM |
| 143 Glenarm Road | £ 197,000 | 0.06 KM |
| 169a Glenarm Road | £ 768,430 | 0.06 KM |
| 132a Glenarm Road | £ 800,000 | 0.06 KM |
| 170 Glenarm Road | £ 210,000 | 0.06 KM |