Laurel Way, Bramhall, SK7
By Snapes Estate Agents
£ 550,000
Reviews
3 out of 5 stars
Snapes Estate Agents says ..
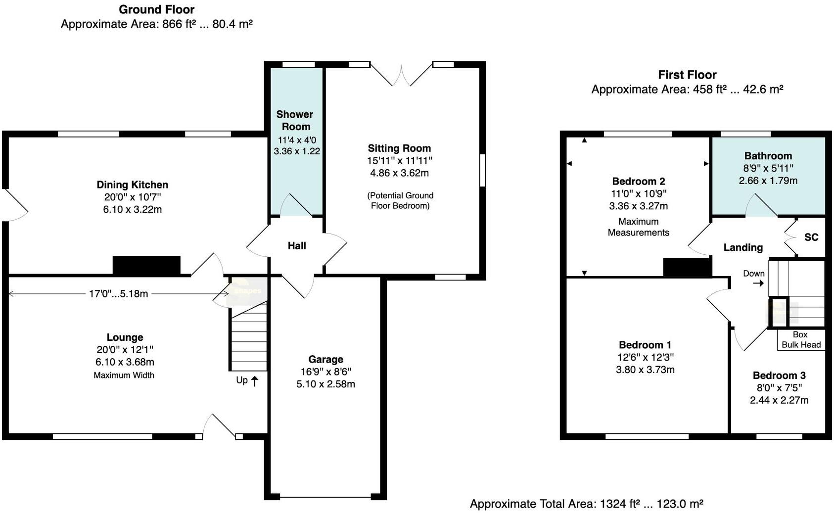
No Seller Chain | 3 Good Size Bedrooms | Detached Home | 2 Large Reception Rooms | Dining Kitchen | Downstairs Shower Room | Attached Garage | Upstairs Bathroom | Well Presented Accommodation | Cul-De-Sac Location | Huge Potential to Develop (stpp) | Beautiful Rear Garden | Ample Driveway Parking
Property Oracle says ..
This property is a 3 bedroom, 2 bathroom detached house located in Bramhall, Stockport. The property benefits from a good size garden and is located within easy reach of local amenities and transport links. The house itself appears to be in good condition, although some modernisation may be desirable to increase its value. The asking price seems reasonable when compared to other properties in the area, however it is slightly above average price per sqft. Overall, this is a well-located property that would suit a family buyer.
Therefore, we give this property 7 / 10. *Disclaimer: This is our option and does constitute a recommendation or financial advice. Do your own research. *
- Price
- 7
- Condition
- 7
- Location
- 9
- Land
- 8
- Bedrooms
- 3
- Bathrooms
- 2
- Sqft (est)
- 1,324.00
The heatmap indicates the level of crime in the area. The color of the heatmap indicates the crime severity and recency.
Metrics Year-on-Year
- Average area value
- 646,429.00 £Increased by 3.01 %
- Est sale value
- 622,280.00 £Increased by 44.62 %
- Average area rental value
- 2,000.00 £/moDecreased by 6.06 %
- Est letting value
- 1,324.00 £/moUnchanged by 0.00 %
- Est rental Yield
- 3.71 %Decreased by 8.85 %
- Crime Rate
- 0.00 %
Agent Activity
Snapes Estate Agents created the listing.
Nearby Schools
| Name | Type | Ofsted | Distance |
|---|---|---|---|
| Hursthead Junior School | Academy Converter | Good | 0.67 KM |
| Hursthead Infant School | Community School | Outstanding | 0.77 KM |
| Lane End Primary School | Community School | Good | 0.94 KM |
| Cheadle Hulme High School | Academy Converter | Outstanding | 1.03 KM |
| Moss Hey Primary School | Community School | Good | 1.37 KM |
Images
Nearby Streets
| Name | Average Price | Average Sqft | Distance |
|---|---|---|---|
| Oak Drive | £ 672,500 | 0 | 0.00 KM |
| Hastings Close | £ 385,000 | 0 | 0.00 KM |
| Church Road | £ 340,000 | 0 | 0.00 KM |
| Linley Road | £ 0 | 0 | 0.00 KM |
| Hall Road | £ 0 | 0 | 0.00 KM |
Nearby Transport
| Name | NLC | TLC | Distance |
|---|---|---|---|
| Cheadle Hulme | 2870 | CHU | 1.47 KM |
| Bramhall | 2944 | BML | 1.77 KM |
| Davenport | 2770 | DVN | 3.78 KM |
| Woodsmoor | 2773 | WSR | 4.48 KM |
| Stockport | 2771 | SPT | 4.52 KM |
Nearby Listings
| Address | Price | Type | Score | Distance |
|---|---|---|---|---|
| Laurel Way, Bramhall, SK7 | £ 550,000 | BUY | 7 / 10 | 0.00 KM |
| Rowan Drive, Cheadle Hulme, SK8 | £ 460,000 | BUY | 8 / 10 | 0.22 KM |
| Rowan Drive, Cheadle Hulme, SK8 | £ 465,000 | BUY | 7 / 10 | 0.23 KM |
| Cherry Walk, Cheadle Hulme | £ 535,000 | BUY | 8 / 10 | 0.26 KM |
| Selwyn Drive, Cheadle Hulme, Cheadle, Greater Manchester, SK8 | £ 575,000 | BUY | 7 / 10 | 0.27 KM |
Nearby Properties
| Address | Price | Distance |
|---|---|---|
| 58 Thornway | £ 550,000 | 0.09 KM |
| 92 Thornway | £ 240,000 | 0.09 KM |
| 82 Thornway | £ 355,000 | 0.09 KM |
| 62 Thornway | £ 380,000 | 0.09 KM |
| 70 Thornway | £ 395,000 | 0.09 KM |