Plots 74 and 75, Barn Owl Close, Fleckney, Leicestershire, Fleckney, Leicestershire, LE8 8FB
By The Shared Ownership Shop
£ 110,000
Reviews
3 out of 5 stars
The Shared Ownership Shop says ..
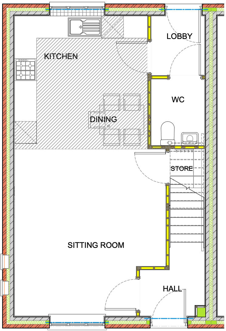
The Shared Ownership Shop are delighted to offer to the market this three-bedroom semi-detached house at Brook Fields, in the popular village of Fleckney. Available on the shared ownership scheme with shares available from 40%.
Property Oracle says ..
The property is a semi-detached house located in Fleckney, Leicestershire. It features 3 bedrooms and 1 bathroom, with a total area of 764 sqft. The property seems to be in good condition and is likely a new build. The location offers access to local schools, including one with an ‘Outstanding’ Ofsted rating. The property is listed as a shared ownership opportunity.
Therefore, we give this property 7 / 10. *Disclaimer: This is our option and does constitute a recommendation or financial advice. Do your own research. *
- Price
- 7
- Condition
- 9
- Location
- 7
- Land
- 5
- Bedrooms
- 3
- Bathrooms
- 1
- Sqft (est)
- 764.00
The heatmap indicates the level of crime in the area. The color of the heatmap indicates the crime severity and recency.
Metrics Year-on-Year
- Average area value
- 299,571.00 £Decreased by 14.57 %
- Est sale value
- 248,300.00 £Decreased by 2.99 %
- Average area rental value
- 1,368.00 £/moIncreased by 42.65 %
- Est letting value
- 764.00 £/mo
- Est rental Yield
- 5.48 %Increased by 67.07 %
- Crime Rate
- 30.00 %Unchanged by 0.00 %
Agent Activity
The Shared Ownership Shop created the listing.
Nearby Schools
| Name | Type | Ofsted | Distance |
|---|---|---|---|
| Fleckney Sure Start Children'S Centre | Children's Centre | 0.46 KM | |
| The Lady Byron School | Other Independent Special School | 0.69 KM | |
| Fleckney Church Of England Primary School | Voluntary Controlled School | Outstanding | 0.81 KM |
| Stoneygate School | Other Independent School | 4.67 KM | |
| Kilby St Mary'S Church Of England Primary School | Voluntary Aided School | Good | 4.86 KM |
Images
Nearby Streets
| Name | Average Price | Average Sqft | Distance |
|---|---|---|---|
| Blackbird Road | £ 0 | 0 | 0.00 KM |
| Richmond Close | £ 310,000 | 0 | 0.00 KM |
| Orchard Street | £ 218,809 | 0 | 0.00 KM |
| Western Avenue | £ 300,000 | 0 | 0.00 KM |
| Short Close | £ 0 | 0 | 0.00 KM |
Nearby Listings
| Address | Price | Type | Score | Distance |
|---|---|---|---|---|
| Plot 82, Chaffinch Road, Fleckney, Leicestershire, Fleckney, Leicestershire, LE8 8FA | £ 126,000 | BUY | 7 / 10 | 0.00 KM |
| Plots 74 and 75, Barn Owl Close, Fleckney, Leicestershire, Fleckney, Leicestershire, LE8 8FB | £ 110,000 | BUY | 7 / 10 | 0.00 KM |
| Plot 67, Chaffinch Road, Fleckney, Leicestershire, Fleckney, Leicestershire, LE8 8FB | £ 97,000 | BUY | 6 / 10 | 0.04 KM |
| Edward Road, Fleckney, Leicester | £ 365,000 | BUY | Unknown | 0.11 KM |
| Edward Road, Fleckney, Leicester, Leicestershire, LE8 8AD | £ 350,000 | BUY | 7 / 10 | 0.19 KM |
Nearby Properties
| Address | Price | Distance |
|---|---|---|
| 1 Richmond Close | £ 117,800 | 0.14 KM |
| 2 Richmond Close | £ 145,000 | 0.14 KM |
| 28 Edward Road | £ 152,000 | 0.18 KM |
| 2 Edward Road | £ 179,000 | 0.18 KM |
| 18 Edward Road | £ 166,000 | 0.18 KM |