Chancellors says ..
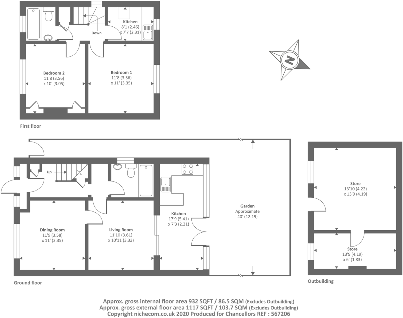
This three bedroom semi detached family home situated just 0.5 miles from Herschel Grammar School. Comprises a driveway for two, two reception rooms and out-house in the rear garden.
Property Oracle says ..
Therefore, we give this property 5 / 10. *Disclaimer: This is our option and does constitute a recommendation or financial advice. Do your own research. *
- Price
- 4
- Condition
- 3
- Location
- 7
- Land
- 7
- Bedrooms
- 3
- Bathrooms
- 2
- Sqft (est)
- 1,098.23
The heatmap indicates the level of crime in the area. The color of the heatmap indicates the crime severity and recency.
Metrics Year-on-Year
- Average area value
- 266,250.00 £Decreased by 18.69 %
- Est sale value
- 308,602.63 £Increased by 0.36 %
- Average area rental value
- 1,013.00 £/moIncreased by 3.58 %
- Est letting value
- 1,098.23 £/mo
- Est rental Yield
- 4.57 %Increased by 27.65 %
- Crime Rate
- 9.00 %Unchanged by 0.00 %
from 327,468.00 £
from 307,504.40 £
from 978.00 £/mo
from 0.00 £/mo
from 3.58 %
from 9.00 %
Agent Activity
Chancellors created the listing.
Nearby Schools
| Name | Type | Ofsted | Distance |
|---|---|---|---|
| Phoenix Infant Academy | Academy Converter | Good | 0.05 KM |
| Baylis Court Nursery School | Local Authority Nursery School | Good | 0.19 KM |
| The Godolphin Junior Academy | Academy Converter | Good | 0.19 KM |
| Baylis Court School | Academy Converter | 0.29 KM | |
| Herschel Grammar School | Academy Converter | Outstanding | 0.48 KM |
Images
Nearby Streets
| Name | Average Price | Average Sqft | Distance |
|---|---|---|---|
| Devon Avenue | £ 530,000 | 0 | 0.00 KM |
| Waverley Road | £ 0 | 0 | 0.00 KM |
| Gloucester Avenue | £ 0 | 0 | 0.00 KM |
| Carlisle Road | £ 0 | 0 | 0.00 KM |
| Farnham Road | £ 0 | 0 | 0.00 KM |
Nearby Transport
| Name | NLC | TLC | Distance |
|---|---|---|---|
| Slough | 3172 | SLO | 2.49 KM |
| Burnham | 3176 | BNM | 3.98 KM |
| Windsor And Eton Riverside | 5672 | WNR | 4.29 KM |
| Windsor And Eton Central | 3175 | WNC | 4.54 KM |
| Datchet | 5668 | DAT | 5.70 KM |
Nearby Listings
| Address | Price | Type | Score | Distance |
|---|---|---|---|---|
| Slough, Berkshire, SL1 | £ 425,000 | BUY | 5 / 10 | 0.00 KM |
| Warrington Avenue, Slough, Berkshire | £ 725,000 | BUY | Unknown | 0.10 KM |
| 3 York Avenue, Slough, Buckinghamshire, SL1 3HP | £ 470,000 | BUY | 5 / 10 | 0.10 KM |
| York Avenue, Slough, SL1 | £ 540,000 | BUY | Unknown | 0.12 KM |
| Rutland Avenue, Slough, SL1 3AL | £ 210,000 | BUY | 5 / 10 | 0.14 KM |
Nearby Properties
| Address | Price | Distance |
|---|---|---|
| 15a Warrington Avenue | £ 330,000 | 0.10 KM |
| 15b Warrington Avenue | £ 150,000 | 0.10 KM |
| 57 Warrington Avenue | £ 162,000 | 0.10 KM |
| 31 Warrington Avenue | £ 36,000 | 0.10 KM |
| 27 Warrington Avenue | £ 240,000 | 0.10 KM |